GRÍN GRIN Salad Bar
Obedová jedáleň ponúka polievku a mix šalátov. Toto má silnú základňu fanúšikov v celej Bratislave. Potrebuje tento produkt „dizajnový“ interiér? Výsledkom diskusie s pánmi kuchyne je stavebný interiér ako vedomý prvoplán. Sedenie, steny, podlaha… Dobrú chuť.
- Autoři: Katarína Príkopská, Ivan Príkopský, Tomáš Szöke
- Země: Slovensko
- Realizace: 2014
- Město: Bratislava - Ružinov
- Ulice, číslo: Budovateľská 1062/27
- PSČ: 821 08
- Datum projektu: 2014
- Realizace: 2014
- Foto ©: Katarína Príkopská
Mohlo by vás zajímat
1/16
toito architekti, GRÍN GRIN Salad Bar – foto
Foto: Katarína Príkopská
2/16
toito architekti, GRÍN GRIN Salad Bar – foto
Foto: Katarína Príkopská
3/16
toito architekti, GRÍN GRIN Salad Bar – foto
Foto: Katarína Príkopská
4/16
toito architekti, GRÍN GRIN Salad Bar – foto
Foto: Katarína Príkopská
5/16
toito architekti, GRÍN GRIN Salad Bar – foto
Foto: Katarína Príkopská
6/16
toito architekti, GRÍN GRIN Salad Bar – foto
Foto: Katarína Príkopská
7/16
toito architekti, GRÍN GRIN Salad Bar – foto
Foto: Katarína Príkopská
8/16
toito architekti, GRÍN GRIN Salad Bar – foto
Foto: Katarína Príkopská
9/16
toito architekti, GRÍN GRIN Salad Bar – foto
Foto: Katarína Príkopská
10/16
toito architekti, GRÍN GRIN Salad Bar – foto
Foto: Katarína Príkopská
11/16
toito architekti, GRÍN GRIN Salad Bar – foto
Foto: Katarína Príkopská
12/16
toito architekti, GRÍN GRIN Salad Bar – foto
Foto: Katarína Príkopská
13/16
toito architekti, GRÍN GRIN Salad Bar – foto
Foto: Katarína Príkopská
14/16
toito architekti, GRÍN GRIN Salad Bar – foto
Foto: Katarína Príkopská
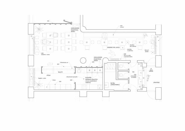
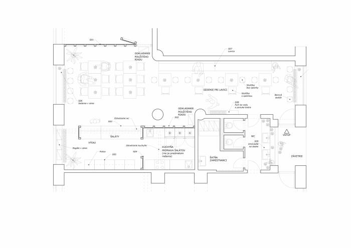
15/16
toito architekti, GRÍN GRIN Salad Bar, půdorys – foto
Foto: archiv autorů
16/16