H

Hast Retail - Kontejnerová stěna prodejny Kolovna

Prodejna se nachází v Avion Shopping Parku, OC Ostrava-Jih. Interiér obchodu se nachází v hale o výšce 6 m a v nájemní jednotce umístěné v krajní části haly o ploše 1444 m2. Obchod se měl rozdělit na prodejní a skladovací plochu, na kterou zákazník nemá mít přístup a nesmí ho tyto skladovací prostory nijak vizuálně rušit. Náš tým měl dále vymyslet řešení pro výdej zboží v e-shopu, bistro se zázemím a posezením, pokladny a kanceláře s meetingovou místností. Myšlenka ekologie – použití vyřazených lodních kontejnerů - zaujala investora natolik, že se rozhodl pro tuto variantu.

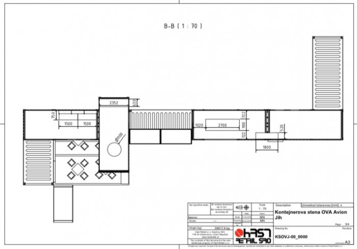
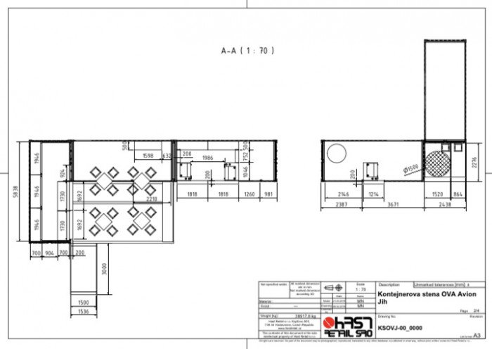
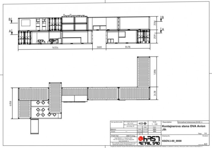
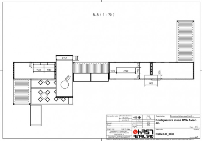
Ve vstupní části se nachází na zhruba 500 m2 prodejní plocha; kontejnerová stěna zabírá 111 m2 zastavěné a užitné plochy (přízemí) a 60 m2 užitné plochy v 1. patře. Zbývající plocha zhruba 800 m2 je použita pro skladovací účely. Celková kontejnerová užitná plocha činí zhruba 172 m2. Každý námořní kontejner má plochu 15 m2, velikost půdorysu 6 x 2,5 m. Celkově bylo na projekt použito 9ks ISO námořní kontejnerů + 1 sanitární kontejnerový modul na míru. 

Kontejnerová sestava stěny se skládá z 9ks ISO námořních kontejnerů a díky tomuto projektu jsme našli kontejnerům nový domov a použití. Investoři zohlednili v projektu i ekologickou stránku věci – v jejich zadání byla právě podmínka pro využití použitých námořních kontejnerů.

Design stavby (exteriér/interiér) byl navržen týmem společnosti HAST RETAIL s.r.o., většina prvků tedy jak stavebních, tak interiérových byla vyrobena přímo v našich výrobních prostorách.

Každý kontejner plní jinou funkci. Nábytek je (kromě kancelářských židlí) vyroben na míru, aby vyhovoval specifickému prostoru lodního kontejneru. Dominantním materiálem je břízová překližka, lakovaná v transparentním laku. Dále jsou použity kovové prvky z teplé černé oceli, taktéž lakované v transparentním laku. V kuchyňské přípravě bistra je námi dodána pracovní deska z umělého kamene Corian, vyrobeno zcela na míru. Barvy kontejnerů jsou nalakovány dle firemního manuálu. Překližka je rovněž firemním materiálem používaným v interiérech prodejen a dalších objektů firmy KOLOVNA.

Nejsme si vědomi o použití speciálních technologiích. Určitě je však zajímavé to, že na celou kontejnerovou stavbu bylo nutné vypracovat statický výpočet a zprávu. Jeden z kontejnerů je umístěn v převisu, tzn. že z menší poloviny tak visí ve vzduchu nad hlavami strávníků. Celou kontejnerovou stavbu musel posoudit a povolit z hlediska hygieny, požární bezpečnosti, statiky atd. tamní stavební úřad Ostrava-Jih. 

Na to, že se jednalo pouze o vybavení obchodu, byl rozsah administrativy značný. Veškeré facility rozvody jsou v prostorách kontejnerové sestavy přiznány. Interiér proto na některé působí velice industriálně. Našim cílem je inspirovat i ostatní investory, aby přemýšleli ekologičtěji, aby se pracovalo s materiály, které jsou volně k dispozici a společně tak snížili ve svých projektech svou uhlíkovou stopu.

Zároveň byl pro nás tento projekt příjemnou výzvou, neboť v retailovém pojetí je tento projekt prodejny v ČR výjimečný.

  • Země: Česká republika
  • Zodpovědný projektant: Iveta Přibylová
  • Město: Ostrava - Zábřeh
  • Ulice, číslo: Rudná 3186/73
  • PSČ: 70030
  • Duchovní otec projektu: Ing. Jan Přibyl
  • Návrh interiéru, zařízení: René Růžička, Ing. Michal Nagy
  • Investor: KOLOVNA KONCEPT s.r.o., IČO: 02612836, Rostislav Posker
  • Investor: ESPACE RETAIL s.r.o., IČO: 02294061, Ing. Petr Peřina
Generální partner
Hlavní partneři