Interiér bytu v Curychu

Důležitým aspektem byl výběr osvědčených firem a dodavatelů, kteří byli ochotni absolvovat několik schůzek na místě před samotnou realizací. Majitelé se velkou měrou podíleli na přípravě i vyřizování povolení, které není radno ve Švýcarsku podcenit – kontroly přišly během stavby několikrát.

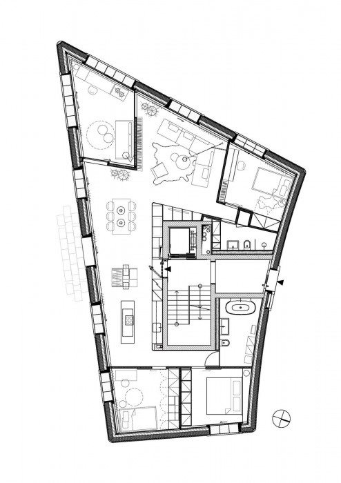
Samotný bytový dům je nízkoenergetická dřevostavba v blízkosti Curyšského jezera. Všechny místnosti kromě koupelen mají velká posuvná okna na celou výšku místnosti. Majitelé přízemního bytu tak mají přístup do zahrady ze všech obytných místností. Unikátní je celková dispozice, v domě není místnost, která by byla čistě pravoúhlá. Proto si v interiéru bytu ihned všimnete ostrých a tupých úhlů, které jsou pro návrh spíše výzvou než omezením.

Dům byl relativně nový a tak se majitelé dohodli pro zachování stávající dubové podlahy, dlažby v zimní zahradě s výrazným dekorem a rovněž se mnoho nezasahovalo do koupelen a části kuchyně, které byly z větší míry zařízené. „Majitelé bytu preferovali jednoduchý styl interiéru v bílých a šedých tónech s dubem. Velký důraz jsme kladli na nové dětské pokoje pro čtyřletého syna a starší dceru, obývací pokoj se zimní zahradou a pracovnu,“ odůvodňuje architektka Veronika Pánková, proč majitelé bytu oslovili právě jí.

Jedním z důležitých přání klientů bylo vytvořit u vstupu úložný prostor na kabáty a další nezbytnosti. Vstupními dveřmi se člověk dostane rovnou na rozhraní jídelny a kuchyně, a tak zde klienti trochu postrádali prostor zádveří. Při stavebních úpravách se zbourala příčka oddělující právě jídelnu od kuchyně a nahradila se větším podsvíceným nábytkovým boxem. Ten nabízí úložné prostory přístupné ze všech čtyř stran - ze strany kuchyně je to otevřená knihovna, ze strany vstupních dveří je otevřená nika se zrcadlem pro odlehčení hmoty nábytku, u obvodové stěny je schovaný prostor na pověšení kabátů a odložení tašek a u jídelny je v boxu menší podsvícená nika v betonovém povrchu a množství šuplíků. Box má stmívatelné LED podsvícení horní i spodní hrany a zajišťuje tak původně chybějící tlumené osvětlení jídelny, kuchyně a vstupního prostoru.

„U jídelny jsme společně s klienty hledali delší dobu optimální řešení. Nakonec jsme našli dubový jídelní stůl, který jako jediný není vyrobený v ČR, ale zakoupený ve Švýcarsku. Doplňují ho jednoduché černé židle, které barevně ladí s černými lustry nad stolem. Na stěně mezi okny je tapeta české výroby imitující starou oprýskanou zeď,“ popisuje architektka.

Tapetou se stylizovanou mapou světa je doplněná i stěna za postelí v pokoji dcery. Do tohoto pokoje architektka umístila postel šířky 120 cm, psací stůl, úložný prostor a knihovnu. Ty jsou umístěny na protější stěně postele, tyto jednotlivé kusy nábytku se vzájemně prolínají. Knihovna má variabilní uspořádání polic a několik uzavřených polí má zrcadlová dvířka. U obou dětských pokojů se jako noční stolky použily opracované dubové masivní špalky. V dětském pokoji pro čtyřletého Tomáška se stal dominantou nástěnný podsvícený obklad s motivem stromu a medvěda. Obklad má funkci ochrany stěny proti oděru, na větve stromů je možné cokoliv zavěsit a rohové podsvícení kmene stromu nahrazuje noční lampičku u postele – k večeru navozuje klidnou a příjemnou atmosféru pokoje. Zpestřením pro malého obyvatele pokoje je řešení vypínače v podobě dotykového bodu na obkladu, který je dle síly přiložení ruky schopný postupně měnit intenzitu podsvícení. Dalším výrazným prvkem tohoto pokoje je velká vestavná skříň a knihovna s vloženou dubovou nikou na sezení a odkládání oblíbených hraček. Zbytek pokoje je ponechán volný se stolkem na hraní, který jednou vystřídá pracovní stůl. Stěna nad stolkem je magnetická stejně tak jako stěna u stolu v pokoji dcery a čelní stěna u kuchyně. Rodina si na stěny ráda přidělává důležité poznámky, kresby od dětí, fotografie i školní rozvrhy.

V pracovně byla ponechána rozkládací sedačka, která slouží příležitostným návštěvám. Prostor byl ještě doplněn o kulaté nízké stolky s úložným prostorem a sestavou pracovního stolu se zásuvkami. Všechny obytné místnosti jsou sjednoceny šedými poloprůsvitnými závěsy z látkou z příměsí lnu.

V obývacím pokoji jsou umístěné dvě nástěnné grafiky od českých umělců. Velké plátno od Zuzany Růžičkové je na stěně za sedačkou. Plastiku s koly obepíná kovová knihovna s dubovými policemi. Majitelé vlastní velké množství knih, které tam postupně najdou své místo. Sedačka byla vyrobena na míru a kopíruje tupý úhel rohu místnosti. Na zemi ji doplňuje hovězí kůže z ekologického chovu.

Přes všechny nástrahy se nakonec vše podařilo a po necelé roční spolupráci se klienti těší novému interiéru ve svém přízemním bytě se zahradou.

  • Autoři: Veronika Pánková
  • Země: Švýcarsko
  • Realizace: 2017
  • Město: Curych
  • Datum projektu: 2016
  • Realizace: 2017
  • Užitná plocha: 137.00m2
Generální partner
Hlavní partneři