Kilo / Honč - Byt Svätoplukova

Výsledkom nášho riešenia je na jednej strane pretvorenie pôvodnej, štrukturovanej, dispozície bytu z tridsiatych rokov na otvorený a viac významový byt pre mladú rodinu na ploche 67m2, ktorý vedome argumentuje dôležitosťou sociálnej interakcie.
Na strane druhej je transformáciou našej dlhodobej internej diskusie o priestore, materiáloch, štruktúre a procese a miere použiteľnosti detailov ako takých. O tom, čo stačí, čo je nevyhnutné a čo napokon nemusí byť vôbec dôležité a prestáva to mať význam preto, aby sme sa zamerali hlavne na priestor, na zážitok, na moment a individuality a teda na ľudí, ktorí v ňom žijú.
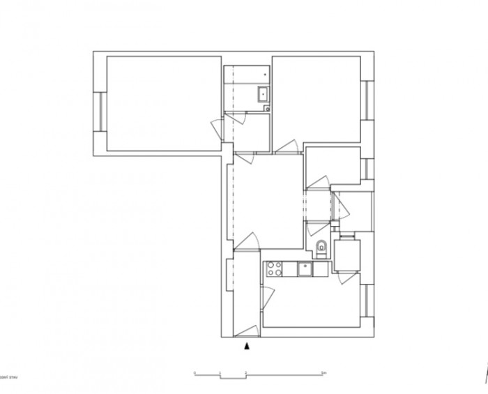
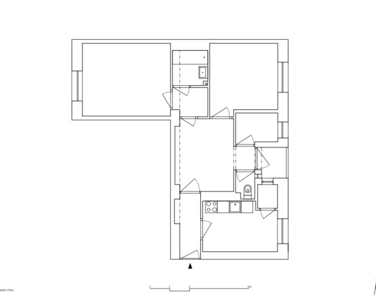
Pôvodná dispozícia bytu pozostávala z predsiene, na ktorú bola naviazaná kuchyňa s malou komorou a vstup do menšej obývacej miestnosti. Malá hosťovská izba, pôvodne však izba pre slúžku, boli spolu s toaletou opreté o loggiu. Kúpeľňa, ktorá bola umiestnená centrálne pri dvoch spálňach, sa nachádzala na konci dispozície.
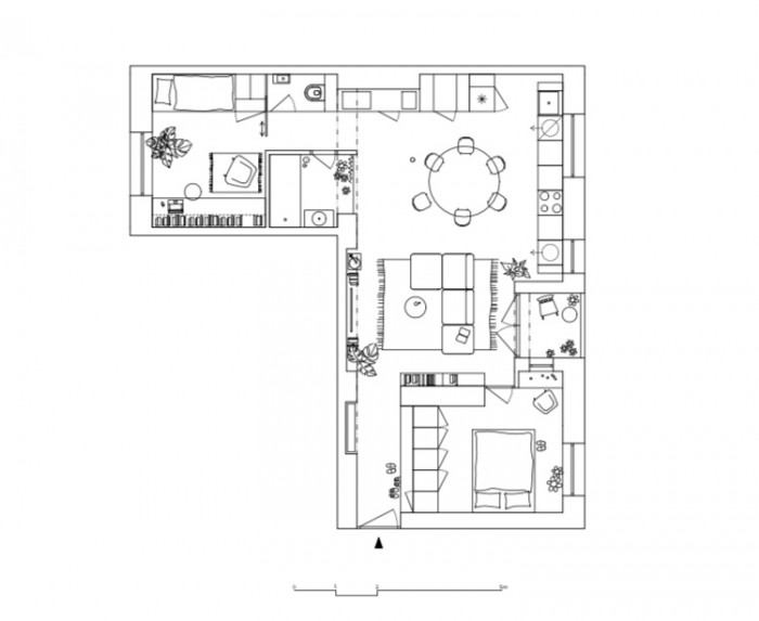
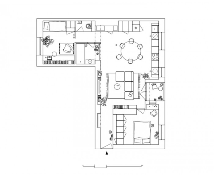
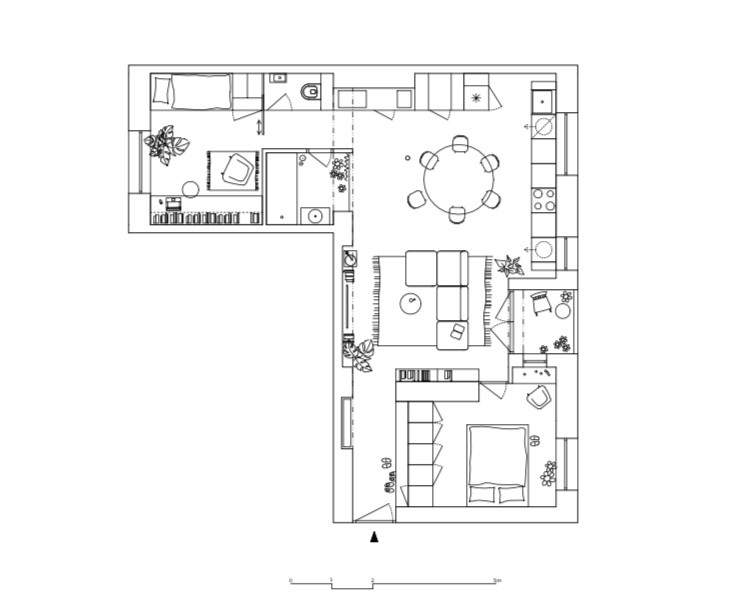
Naše riešenie byt vo svojej novej koncepcii otvára. V dispozícii, v materiáloch a konštrukciách, v rozvodoch, vo výške, „v hĺbke“, ale aj v šírke. Je navrhnutý ako priestor a kulisy, mobiliár je len symbolickým dopovedaním. Je rozdelený na dva trakty, ktoré nám definuje aj nosný systém samotného domu.
Byt je preplávajúci s orientáciou východ – západ. Otvorená, denná časť, sa nachádza v strede dispozície v nadväznosti na kúpeľňu, loggiu a vstupné zádverie. Jej súčasťou je veľká kuchynská linka, okrúhly jedálenský stôl, obývacia časť a preplávajúca zrkadlová kulisa, ktorá deformuje ohraničenie priestoru, prepája začiatok a koniec bytu a zároveň slúži ako vstup do wc a dvoch samostatných skladových priestorov. Vstupná časť je dosvetlená nadsvetlíkom, umiestneným nad skriňou v spálni. Tá sa nachádza na opačnom konci dispozície ako detská izba, čím vytvárame pre nočnú časť dostatočnú intimitu a súkromie. Priestorovo sú tieto dve izby koncipované tak, aby boli stále súčasťou dennej zóny. Kúpeľňa je úplne “otvorená“ do stredu dispozície cez rozmernú presklennú stenu, ktorá sa v prípade potreby zastrie závesom.
Mobiliár bytu je vo väčšej časti vyhotovený na mieru stolárom, niektoré prvky sú však typové, alebo vyrobené ako naše interné nábytkové experimenty.
- Autoři: Richard Kilo, Matej Honč
- Země: Slovensko
- Město: Bratislava
- Realizace: 2020
- Užitná plocha: 67.50m2
Mohlo by vás zajímat






















