Mimosa architekti - Restaurace Avocado Gang
Avokádo je skvělé syrové "jen tak” nebo upravené na 100+1 způsob
100% zdravé i poměrně slušný útok na žlučník
Výrazně barevné i „pastelově“ tlumené
Skvělé – když se to s ním umí - nebo přinejmenším trochu jiné
Stejný by měl být Avocado gang, kde avokádo najdete snad ve všem s výjimkou destilátů - a i to jen před jejich „zkoktejlováním“.
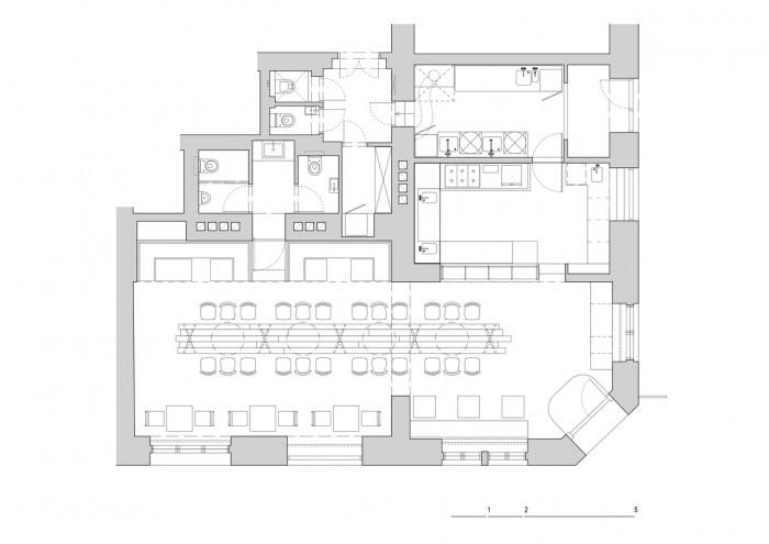
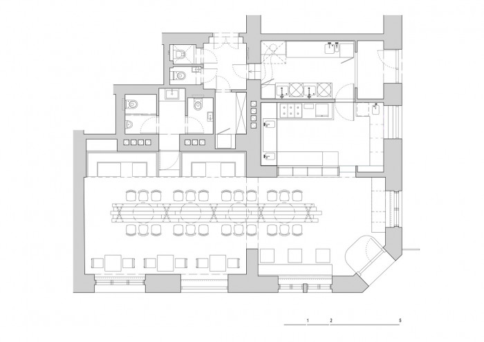
První avokádová restaurace v Praze Avocado gang vznikla v přízemí nárožního činžovního domu na Lyčkově náměstí v Praze – Karlíně. Jednoduchý podélný prostor restaurace nabízí 9,3m dlouhý stůl s 22 místy k sezení v jeho středu a dalšími místy podél stěn. Otevřená kuchyň umožňuje každému hostu potvrzení čerstvosti jeho brunche. Pestré barvy stolu jsou odvozené od výrazné barevnosti avokáda a jídel z něj připravených. „Nebarvy“ ve škále šedivé jsou pozadím pestrých objektů – ať jsou jimi stůl, židle kolem něj nebo – a především – jídla zde servírovaná. Stůl tvoří masivní smrkové hranoly profilu 160 x 100mm na podnožích z žárově zinkované oceli. Smrk je v interiéru dále použit v podobě lazurované biodesky, žárově zinkovaná ocel ve formě podnoží dalších stolů, židlí, světel, obkladu podélné stěny oddělující část pro hosty a zázemí restaurace, umyvadlech a dalších prvcích. Celek doplňuje cementová podlahová stěrka a světle šedá malba. Dost prostoru každopádně zůstává pro avokádo samotné – ať už v očekávatelné podobě guacamole nebo avokádových lívanců se slaninou.
- Autoři: Petr Moráček
- Ateliér: Mimosa Architekti
- Spolupráce: Kateřina Fryzelková
- Země: Česká republika
- Město: Praha 8 - Karlín
- Ulice, číslo: Křižíkova, 72
- PSČ: 18600
- Datum projektu: 2018
- Realizace: 2018
- Užitná plocha: 106.00m2
- Poznámka: Fotografie - BoysPlayNice
Související projekty
Související architekti
Související ateliéry a firmy
Mohlo by vás zajímat