M

Miroslav Pospíšil - Dostavba budovy Slovanského gymnázia Olomouc

Slovanské gymnázium je nejstarším českým gymnáziem na střední a severní Moravě. Od svého založení v roce 1867 se díky kvalitě poskytované výuky zařadilo mezi nejlepší gymnázia v naší vlasti.

V přímém kontrastu s vynikajícími studijními výsledky byly výukové prostory, které se donedávna nacházeli jednak v původní historické budově, a jednak v dřevotřískovém přízemní pavilonu, který byl postaven v 70-tých letech ve dvorním traktu. Toto provizorium vydrželo více než 40 let.

V roce 2010 rozhodla rada Olomouckého kraje o nutnosti nahradit tento „dočasný“ objekt novou budovou, která bude navazovat na stávající stavbu. Byla vypsána soutěž „o návrh“, ze které vyšel nejlépe návrh našeho ateliéru, podle kterého byla posléze stavba zrealizována.

Foto: EARCH

Úkolem přístavby Slovanského gymnázia nebylo pouze zajistit chybějící kapacitu výukových prostor, zejména odborných učeben, ale také vybudovat novou tělocvičnu, která dosud škole chyběla a v neposlední řadě rovněž jídelnu s výdejnou v přízemí nového křídla, která bude využívána nejen studenty gymnázia, ale i dvou sousedních středních škol.

Architektonicko - urbanistické řešení

Řešené území je lemováno třemi ulicemi. Stávající zástavba je tvořena blokem tří budov, shodou okolností škol, s průčelími tvořícími uliční čáru a dvorním traktem uprostřed. Přístavba je umístěna zčásti na půdorysu dřevotřískového pavilonu a zčásti na přilehlé ploše dvora, uličním průčelím nové křídlo navazuje na historickou budovu. Nová část lemuje po obvodu půdorys školního dvora a současně mu dává nové využití. Doposud bylo na ploše dvora umístěno asfaltové hřiště, které z důvodu hluku při provozování sportovních aktivit nebylo příliš využíváno. Hřiště s vhodnějším povrchem bylo přemístěno na střechu nové tělocvičny a dvůr se tak stal zelenou relaxační zónou.

Cílem architektonického návrhu bylo uspokojit provozně-dispoziční požadavky uživatele v kontextu urbanistických souvislostí. Nechtěli jsme vytvořit přístavbu, která by byla pouze provozním přívěškem původního domu, ale chceme, aby nová a stará část tvořily dohromady jeden provozně funkční, ale také architektonický celek. Chceme, aby dostavba byla symbolem nové etapy ve vývoji gymnázia. Chceme, aby současní i budoucí studenti, učitelé, ale také absolventi byli hrdí na to, že vystudovali právě tuto školu. Chceme, aby zážitky ze získaného, nebo získávaného vzdělání byly umocněny vjemy z kvalitní architektury. Současně chceme, aby moderní architektura byla symbolem moderního ducha školy, symbolem kvality vzdělání, kterého zde studenti mohou dosáhnout.

Foto: EARCH

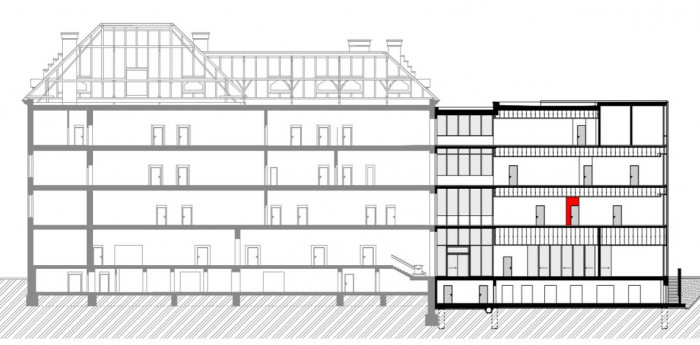
Hmota nové části reaguje na kompozici původní stavby. Výškově nepřesahuje úroveň okapní římsy historické budovy. Novostavba zohledňuje také v současnosti realizovanou dostavbu sousední pedagogické fakulty (obě části na sebe těsně navazují). Členění fasád nového křídla reaguje na vnitřní uspořádání školy. Nepravidelná velikost a tvar okenních otvorů symbolizuje využití místností za fasádou objektu. Charakteristickým prvkem vstupního průčelí je různoběžná plocha proskleného parteru (vůči ploše fasády) přecházející do vertikální prosklené stěny vstupní haly. Prosklená plocha navzájem spojuje klíčové prostory vstupní části a zdůrazňuje nový hlavní vstup do budovy. Prosklené průčelí vzdušné vstupní haly symbolizuje otevřenost, transparentnost a také neomezené možnosti vzdělávání. Také bychom rádi, aby vstup do školy působil na příchozí přátelským dojmem.

Protiváhou prosklení vstupní haly je prosklená plocha v horním patře dostavby, která na boční stěně sestupuje vertikálně dolů, v místě ukončení středové chodby, která je identická ve všech patrech. Konec chodby v každém podlaží je tedy zakončen proskleným oknem na celou výšku chodby. Prosklené plochy oken jsou směrem do exteriéru olemovány kovovými předstupujícími manžetami. Plochy fasády jsou řešeny z pohledového betonu.

Foto: EARCH

Odlišná od ostatních hmot je hmota tělocvičny ve dvorním traktu, jejíž fasáda je zateplena kontaktním zateplovacím systémem, včetně hladké omítky, coby finální povrchové úpravy. Omítka bude ošetřena fasádní nátěrovou hmotou v bílém barevném odstínu. Pro lepší pohodu v místnostech umístěných ve dvorním křídle, které jsou orientovány jižním směrem, je navrženo pasivní zastínění jednak pomocí venkovních hliníkových okenních žaluzií, nebo pomocí konstrukce ocelové předstěny (prvek pasívního zastínění), kde stínícími prvky budou v horní části hliníkové lamely a v dolní části popínavá zeleň.

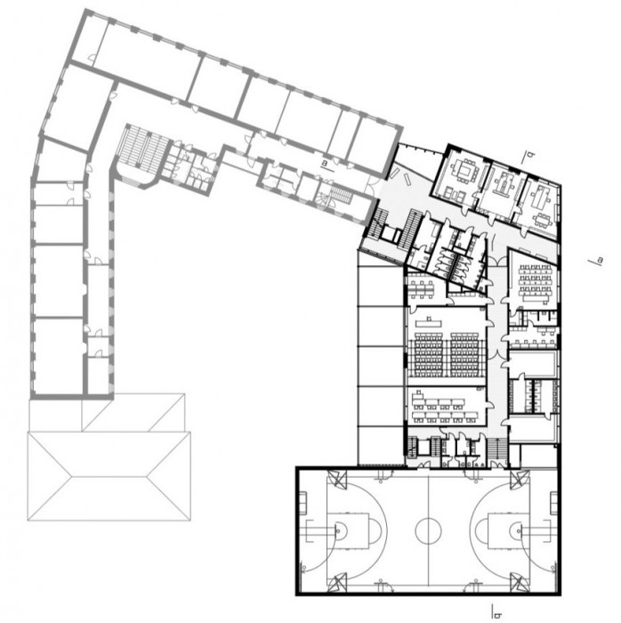
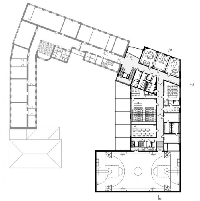
Dispoziční řešení

Přístavba má čtyři nadzemní a jedno podzemní podlaží. V přízemí nové části je navržen nový hlavní vstup do gymnázia, který je také vstupem bezbariérovým. Ve všech patrech je dostavba propojena se stávající budovou v místě vstupní haly, která probíhá přes všechna podlaží. Součástí haly je hlavní schodiště a osobní výtah. Propojení obou budov v úrovni přízemí překonává výškový rozdíl cca 1,5m, který bude bezbariérově překonán pomocí sklopné plošiny.

V přízemí, v návaznosti na hlavní vstup je umístěna jídelna s výdejnou. Prostor výdejny je rozdělen na tři části s možností vzájemného dispozičního oddělení. Část jídelny u uliční fasády bude využívána také jako bufet.

Schodiště oproti vstupu vede také směrem dolů do šaten, které jsou pod půdorysem uličního křídla.

Ve druhém podlaží je v sousedství haly navržena administrativní část (ředitelna, sekretariát….)

Foto: EARCH

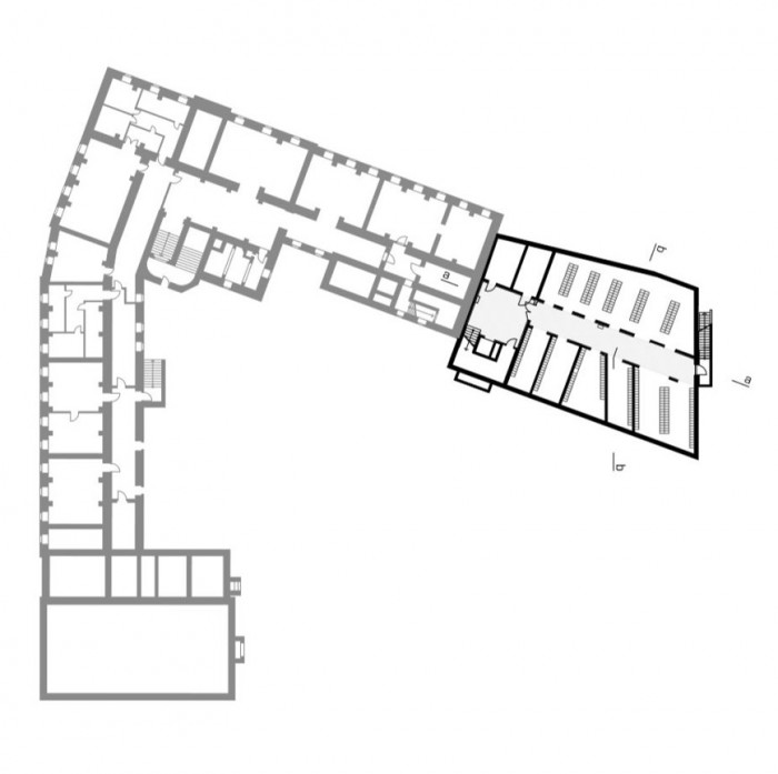
Ve zbytku patra jsou situovány učebny a pracovny. Druhé podlaží je také nástupním patrem do tělocvičny, jejíž podlaha je v úrovni mezipatra mezi 1. a 2. podlažím, nad krytým prostorem pro zásobování výdejny. Šatny a hygienické zázemí tělocvičny jsou v úrovni druhého podlaží. Vstup do této části je možný také přes samostatné schodiště z dvorního traktu, což umožňuje nezávislý pronájem tělocvičny pro veřejnost.

Třetí a čtvrté podlaží je určeno pro výuku. Jsou zde umístěny speciální učebny a laboratoře (chemie, biologie). V nejvyšším podlaží je v nárožní části uličního křídla situována učebna výtvarné výchovy (směr severovýchod), a s ní sousedí akusticky upravená učebna hudební výchovy.

Ze čtvrtého podlaží je také možný vstup na venkovní hřiště, které je na střeše tělocvičny.

Z učeben biologie, směrem do dvora je přístupná venkovní terasa, která bude využívána pro biologické pokusy probíhající ve venkovním prostředí.

Foto: EARCH

Generální partner
Hlavní partneři