Nejlepší diplomovou práci roku 2018 vypracoval podle ČKA Igor Machata z UMPRUM

Začalo to miestom. Chodím často okolo no nikdy nie priamo tam. Ale vždy tuším, že tam už nie je to čo tam bývalo. Jeho bývalá prítomnosť visí vo vzduchu, vytvára zvláštne napätie. Vnímam ho niekde v pozadí, keď cestujem okolo v električke. Tu to je, tu to má byť. No nič tu nie je.

Miesto v Bratislave s významnou polohou v rámci mesta, na križovatke jej hlavných osí, s dobrým napojením na medzimestskú štruktúru. Miesto v Ružinove, na rozhraní štyroch kvadrantov sídliska, jeho centrum. Je to dynamické miesto. Miesto kde sa vrstvia rôzne časové stopy, a konfrontujú dobové predstavy o spoločnosti.

Predmoderná doba, rameno Dunaja, vidiek. 60te roky, tabula rasa, výstavba sídliska. Výstavba občianskych stavieb sa oneskorila o dve dekády. V území zatiaľ ostáva fragment pôvodnej vidieckej zástavby. Nastáva prvý konflikt, stret rôznych dôb a predstáv o spoločnosti.

80te roky, dobudovávanie objektov občianskej vybavenosti. Architekti vyhodnocujú experiment sídliska. Vzniká projetkt, ktorý si zakladá na napravovaní nedostatkov modernistickej výstavby.

Ružinovský dom kultúry a obchodný dom sú dva samostatné projekty, koordinované spoločne, stojace spolu na vyvýšenom sokly. Vznikla tu nová výšková úroveň, pravdepodobne na zdôraznenie kultúrneho významu funkcie, no možno aj ako gesto vymedzujúce sa voči nedávnej minulosti, naznačujúce zmenu zmýšľania a nový prístup k architektúre.

Nové milénium, starý dom. Veľké ambície vytvoriť najväčšie obchodné centrum na Slovensku práve tu. Nový projekt sa začal čiastočným rozobraním prefabrikovaného skeletu a stavebnou jamou pre jeho rozšírenie. Rok 2008 kríza, bankrot krycej banky, nedostatok prostriedkov investora a krach celého projektu, po ktorom ostala kostra bývalého domu a stavebná jama.

10 rokov nečinnosti človeka a prirodzená degradácia skelet premieňa v ruinu. Dom sa stal pravou postmodernou, nefalšovanou kulisou, predmetom kolektívnej pamäte, nemieneným pamäťníkom globálnych udalostí a ľudskej nenásytnosti. V jame prirodzenou sukcesiou vzniká krajina, aj Dunaj je tu stále prítomný.

Miesto ma fascinuje vo svojom súčasnom stave. Má silnú prítomnosť, sprítomňuje minulosť. Prázdnota a ruina umožňujú osobnú interpretáciu, vyvolávajú predstavy o minulosti, potenciálnej budúcnosti, vizualizujú plynutie času. Táto vlastnosť miesta s jeho čsovými stopami sú cenné, obzvlášť v kontextoch sterilných sídlisk.

Degradácia sa však šíri do okolia a paralyzuje priestor. Miestni ho nenávidia, dali mu ľudový názov Hirošíma. Územie má byť centrom sídliska, miestom pre Bratislavu, no nie je ním. Je nutné z neho spraviť prístupný verejný priestor.

Cieľom projektu sa stáva sprístupnenie miesta verejnosti, sprostredkovanie zážitku z priestoru, snaha o ponechanie kvality a otvorenosti pre individuálnu interpretáciu. Ako zmeniť a pritom zachovať. Vzájomné konflikty fragmentov prítomných časových stôp, vrstevnatosť ktorá je zakorenená v samotnom mieste, sa premieta do novej vrstvy a definuje návrh.

Riešenie

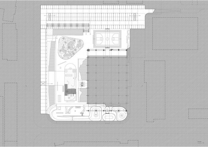
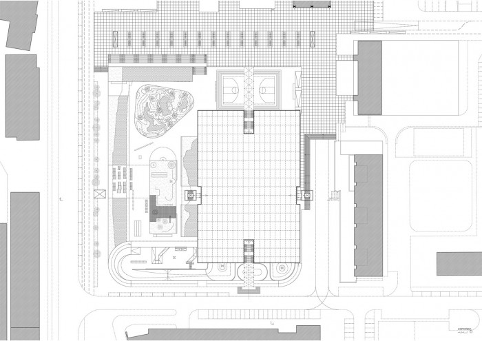
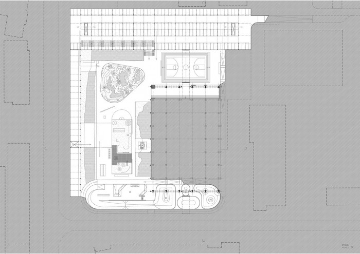
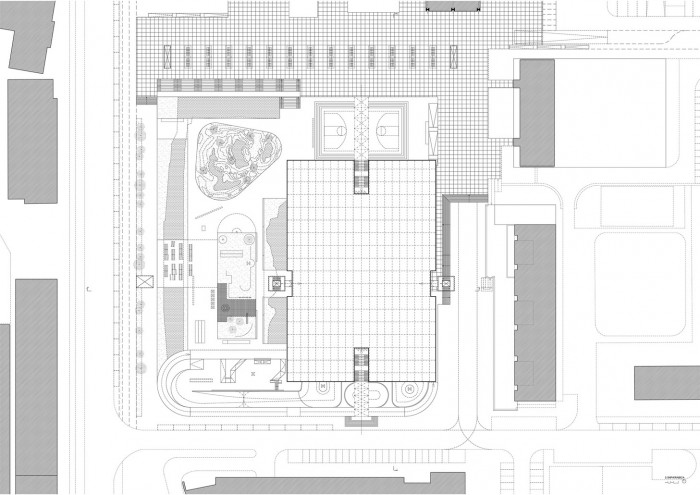
Územie je zložene z viacerých autonómnych prvkov. Spolu tvoria funkčné územie. Viac sa zaoberám priestorom jamy a ruiny skeletu.

Park, zastávka, križovatka, uličný profil

Križovatka ako rozhranie štyroch parkov. Riešený park ako funkčná voľná plocha, predpolie Domu kultúry. Park sa tradične využíva na sezónne podujatia ako cirkus, hody, a putujúce zábavy. Tieto funkcie považujem za vhodnú atrakciu od chrbtice sídliska. Čo potrebuje je kultivácia zelených a spevnených plôch.

Zmena nosného systému MHD a presunutie prestupnej zastávky na os centra podľa územného plánu. Navrhujem pokračovať v existujúcon koľajovom, prízemnom spôsobe dopravy. Stvárnenie predstavy o novej zastávke ako dynamického, lineárneho nástupišťa.

Nová križovatka ako bezbarierový a zdielaný priestor, ktorý núti účastníkov premávky rešpektovať sa navzájom.

Riešenie nového uličného profilu, vychádzajúci z územného plánu, ako takmer okamžite zrealizovateľný zásah. Hierarchizácia priestorov, pridanie pozdĺžneho parkovania na Tomášikovej, ktoré chráni novú cyklotrasu.

 

Dom kultúry

Projekt Domu kultúry, bol realizovaný s priestorovými rezervami. Voľné podlubie domu, bolo časom vyplnené doplnkovými funkciami. Schopnosť domu zniesť parazitovanie iných funkcií považujem za jeho architektonickú kvalitu. Ich súčasné stvárnenie je otázne, nevhodne zasahujú do objektu, potláčajú jeho formu a význam. Pri, v budúcnosti, plánovanej rekonštrukcii navrhujem prestavbu parazitov a nastavení parametrov prí ďalších dostavbách – repšektovanie pôvodnej formy domu.

Namiesto priestoru dnes cestovnej kancelárie, navrhujem dostavbu zázemia malej sály, ktoré dnes absentuje a komplikuje jej prevádzku.

Námestie, jama a ruina

Jama/1pp: Jama ako nová výšková úroveň v území, vrstva súčasnosti. Sledujem časom prirodzene vzniknuté kvality. Sledujem hrany jamy, a podporujem ich charakter. Nová vrstva sa prítomným kvalitám vyhýba, rešpektuje a rámuje ich. Ponechané kvality a charaktery hrán z časti definujú nové funkcie.

Jama ako ihrisko, skatepark, športovisko, parkovisko. Tieto funkcie sa navzájom čiastočne prelínajú, zasahujú do seba, vytvárajú priestor pre náhodu a podnety.

Časti fragmentov skeletu v tejto úrovni ponechávam v exteriéry, stávajú sa súčasťou verejného priestoru a nových funkcií.

Ruina/obchodný dom/1pp: Sledujem projekt pôvodného obchodného domu, hodnotím ho ako kvalitnú, progresívnu architektúru. Definujem nosné koncepčné priestorové prvky domu, ktoré sú vďaka ruine skeletu stále prítomné, nový návrh ich nasleduje. Nové konštrukcie nadväzujú na modul skeletu.

Skelet ponechávam tam kde sa dnes najlepšie prejavujú jeho kvality ako ruiny 2pp – 1np. Jeho rozobrané prvky čiastočne recyklujem v novom návrhu.

V rámci ruiny umiestňujem funkciu 50 m plaveckého bazéna. Konštrukcia bazéna je previazaná s ruinou,“zalieva” ju, a z časti ruinu prezentuje. Činnosť plávania ako sústredená individuálna aktivita, fyzická námaha a mentálna očista podporuje zážitok z priestoru ruiny skeletu.

50 metrový plavecký bazén s 10 dráhami, ako jeden z troch takých bazénov v Bratislave, patrí k najväčším z nich. Ako jediný bazén v Bratislave umožňuje hru vodného póla v oficiálnych požiadavkách.

 

Parter: Nové námestie ako strecha parkoviska s rozkladateľnými trhovými stánkami. Aktívny parter objektu bazénu s priehľadom do bazénovej haly.

Krabica 2-3 np: Nový priestor, oceľová priehradová konštrukcia, doplňuje pôvodný výškový objem domu, zastrešuje bazén a ruinu pod ním.

Priestorovo štedrá hala s voľnou dispozíciou, otvorená využitiu, nateraz nedefinovaná funkciou.

Umelé a nedefinované prostredie krabice ako odpoveď na zamyslenie sa nad typológiou obchodného domu. Ako nestála typológia, na pokraji svojej ďalšej reformi. Nakupovanie sa vytráca z fyzického priestoru, hľadáme za neho náhradu. Strecha krabice ako nová verejne prístupná úroveň.

Fasáda krabice pozostáva z recyklácie stropných panelov prefabrikovaného skeletu, ako ďalšia vrstva práce s ruinou, a pokračovanie v pôvodnom riešení domu, ktorý ako prvá stavba použila tento spôsob využitia stropných panelov systému INTEGRO. Tento prvok je prítomný na mieste aj dnes.

HODNOCENÍ POROTY

Vítězný projekt porota vnímá jako manifest v přístupu k potenciálu míst pohybujících se na okraji zájmu. Míst, která v sobě často zhmotňují nenaplněné vize předchozích generací a zrcadlí vývoj měnících se společenských tendencí i priorit. Jak navázat tam, kde předchozí přístup obsahově i morálně zestárl ještě v procesu samotného zrození? Autor vnímá příčiny i širší urbánní kontext a s torzem Domu kultury vědomě pracuje jako s potenciálem nedokončenosti, která se stává jejím hlavním východiskem. Na místo principu tabula rasa nabízí cestu vrstvení a hledá způsob, jak uchovat přítomnost v nevyslovení definitivní formy, avšak při zdůraznění podstatného. K předchozí doplňuje další vrstvu stále nedokončeného příběhu, díky němuž vzniká autentický, nepřikrášlený svět, který předchází tomu, co teprve přijde. Porota oceňuje celkové neprvoplánové pojetí i hledání smysluplného potenciálu v prostorách, které pozbyly svého původního významu.

Generální partner
Hlavní partneři