Ondřej Tuček - Dům hudby Pardubice

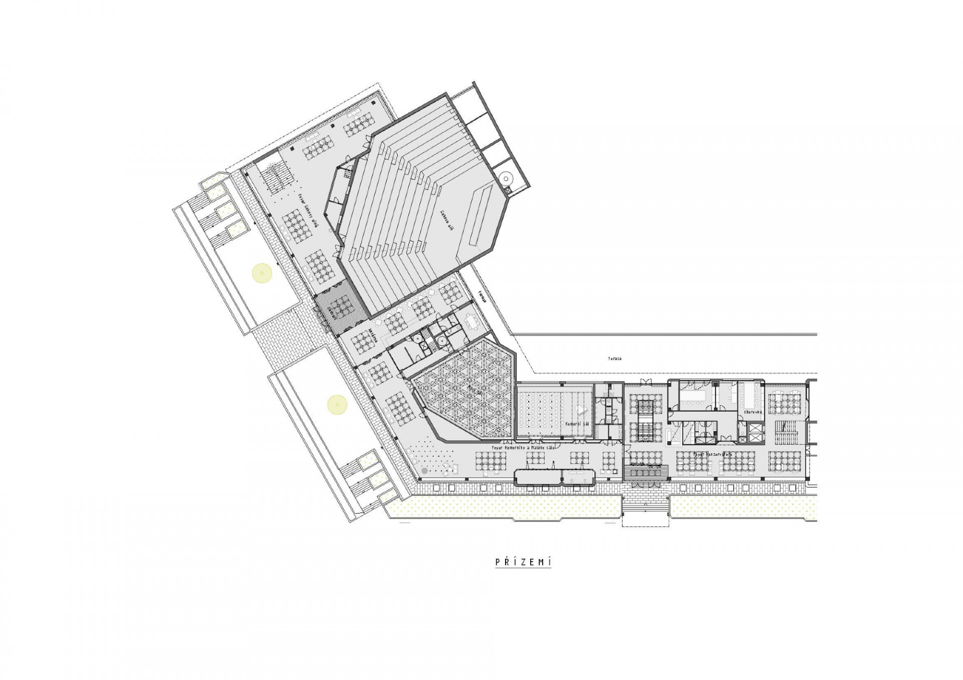
Projekt celkové rekonstrukce interiérů společenské části Domu hudby zahrnoval úpravy tří sálů (Sukova síň, Malý a Komorní sál), společného foyer ve dvou úrovních, vstupní partie Konzervatoře Pardubice, zázemí pedagogů a také přilehlých venkovních ploch, ochozů a dvora. Rekonstrukce zahrnovala i kompletní výměnu technologického vybavení a nové ozvučení a scénické osvětlení.

Budova byla postavena v 80. letech 20. století původně jako sídlo KV KSČ podle projektu Jana Třeštíka, autorem interiérů byl Jan Bočan. Po sametové revoluci byla zasvěcena hudbě – je zde sídlo Konzervatoře, Komorní Filharmonie a dalších hudebních organizací. Cílem modernizace byla celková revitalizace interiérů a jejich přizpůsobení potřebám současných uživatelů a návštěvníků. Bylo nutno navrhnout řešení na míru pro jednotlivé sály, zahrnující akustická opatření, nové povrchy, vybavení a mobiliář. Všechny prostory byly vybaveny vzduchotechnikou a novým osvětlením, část prostorů doznala i dispozičních změn pro lepší provozní vazby, přehlednost a orientaci. To se týkalo zejména školní části, kde byla vybudována nová recepce na místě zrušeného schodiště. 

Návrh zahrnoval i na míru vytvořený orientační a propagační systém, výsadbu zeleně namísto vykácených stromů a opravu a kultivaci přilehlých venkovních teras, květníků a dvora.

  • Autoři: Ondřej Tuček
  • Spolupráce: Lenka Belanská, Jan Binter, Filip Bernard
  • Země: Česká republika
  • Realizace: 2020
  • Generální dodavatel: Marhold a.s.
  • Město: Pardubice
  • Ulice, číslo: Sukova třída 1260
  • Datum projektu: 2018
  • Realizace: 2020
  • Autor původní budovy: Jan Třeštík
  • Autor původních interiérů: Jan Bočan
  • Autor koncepční studie: Ondřej Teplý
Generální partner
Hlavní partneři