Otevřené atrium přináší jižní slunce do interiéru rodinného domu ve Zlíně

IDEA

Doma. Schován přede všemi. Ukryt v tajemné zahradě za oprýskanou zdí s rezavou brankou. V domě srostlém se zahradou. Se zemí a stromy jeden celek tvořícím. Schoulen v dece u ohně. S dýmkou voním k poetickému večeru. S chutí a pomalu. Schovaný před světem v bezpečí svého pokoje. 

Rodinný dům ve Zlíně, NOVÝ architekti / Jindřich Nový, Markéta Strnková, Eva LičmanováFoto: Christian König

POPIS

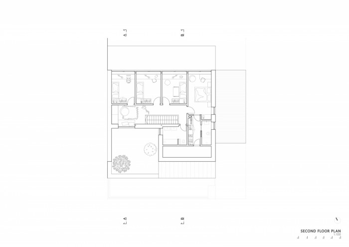
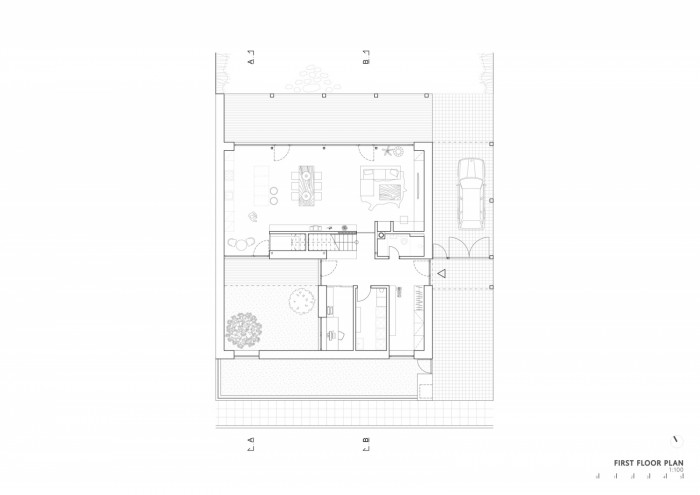
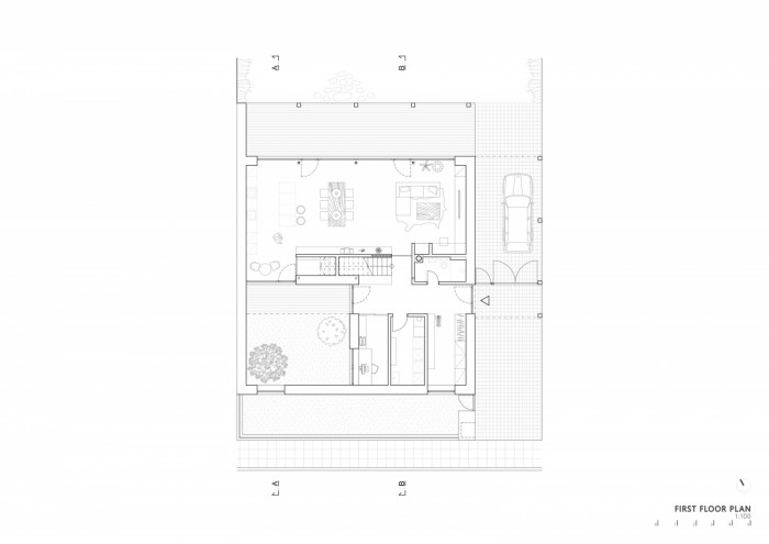
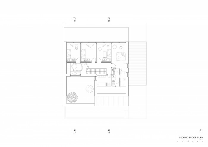
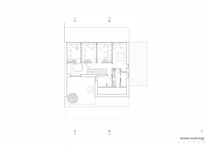
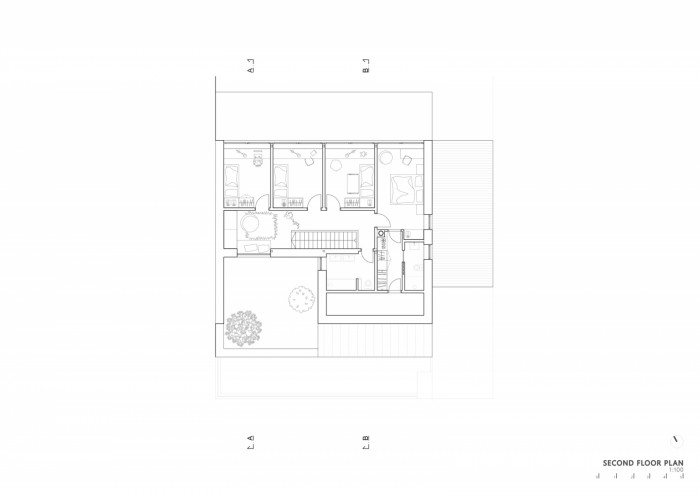
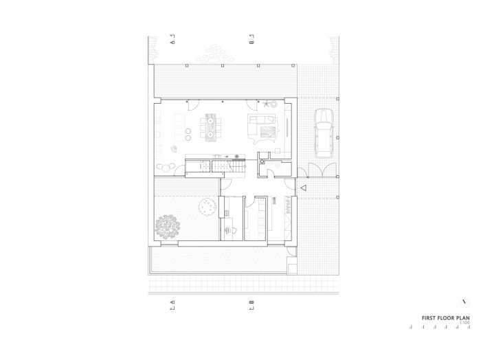
Rodinný dům je situován v širším centru města Zlín, v místě se stopou původní historické zástavby „vesnickými“ rodinnými domy. Charakter místa se promítá do architektonické koncepce domu. Pultová střecha do ulice se odkazuje na okolní zástavbu, dvorní trakt je dvoupodlažní. Zahrada je uzavřená a intimní. Severní orientace zahrady vytváří problém s osluněním obytných prostorů. Proto je směrem do ulice navrženo otevřené atrium, které do domu přivádí jižní slunce. Společenská část domu je v přízemí, obytný prostor je plně otevřen přes krytou terasu do zahrady. Ložnice jsou v patře.

Rodinný dům ve Zlíně, NOVÝ architekti / Jindřich Nový, Markéta Strnková, Eva Ličmanová © Christian König

TECHNICKÝ POPIS

Konstrukční koncepce je standardní – kombinace stěnového systému zděného z keramických tvárnic a ocelové konstrukce. Vodorovné konstrukce jsou z pohledového železobetonu. Objekt je vytápěn tepelným čerpadlem vzduch – voda. Ostatní technické instalace jsou standardní.

Rodinný dům ve Zlíně, NOVÝ architekti / Jindřich Nový, Markéta Strnková, Eva LičmanováFoto: Christian König

Rodinný dům ve Zlíně, NOVÝ architekti / Jindřich Nový, Markéta Strnková, Eva LičmanováFoto: Christian König

Rodinný dům ve Zlíně, NOVÝ architekti / Jindřich Nový, Markéta Strnková, Eva LičmanováFoto: Christian König

Generální partner
Hlavní partneři