RD Teplice - 3+1

Drobná stavebníkova parcela tak trochu zbyla v pravoúhlém rastru místní zástavby. Bezprostřední blízkost objemově velkorysých vil a domů z první poloviny 20. století psychologicky i fyzicky pevně vymezuje „manévrovací prostor“ návrhu. Chtěli jsme vytvořit dům odpovídající měřítkem a současným výrazem jeho sousedům. Zároveň bylo ale důležité, ponechat na malém pozemku dostatečný prostor zahradě. Pro ní se zdál jako ideální severní roh pozemku, s charakteristickou atmosférou, kde se setkávají zahrady dvou přilehlých domů. Měřítko, proporce a atmosféra místa tvarují tělo domu.
Pokoušíme se nalézt optimální v minimálním.
Mohlo by vás zajímat

1/29

Rodinný dům v Teplicích, 3+1 architekti
Foto: Pavel Plánička
2/29

Rodinný dům v Teplicích, 3+1 architekti
Foto: Pavel Plánička
3/29

Rodinný dům v Teplicích, 3+1 architekti
Foto: Pavel Plánička
4/29

Rodinný dům v Teplicích, 3+1 architekti
Foto: Pavel Plánička
5/29

Rodinný dům v Teplicích, 3+1 architekti
Foto: Pavel Plánička
6/29

Rodinný dům v Teplicích, 3+1 architekti
Foto: Pavel Plánička
7/29

Rodinný dům v Teplicích, 3+1 architekti
Foto: Pavel Plánička
8/29

Rodinný dům v Teplicích, 3+1 architekti
Foto: Pavel Plánička
9/29

Rodinný dům v Teplicích, 3+1 architekti
Foto: Pavel Plánička
10/29

Rodinný dům v Teplicích, 3+1 architekti
Foto: Pavel Plánička
11/29

Rodinný dům v Teplicích, 3+1 architekti
Foto: Pavel Plánička
12/29

Rodinný dům v Teplicích, 3+1 architekti
Foto: Pavel Plánička
13/29

Rodinný dům v Teplicích, 3+1 architekti
Foto: Pavel Plánička
14/29

Rodinný dům v Teplicích, 3+1 architekti
Foto: Pavel Plánička
15/29

Rodinný dům v Teplicích, 3+1 architekti
Foto: Pavel Plánička
16/29

Rodinný dům v Teplicích, 3+1 architekti
Foto: Pavel Plánička
17/29

Rodinný dům v Teplicích, 3+1 architekti
Foto: Pavel Plánička
18/29

Rodinný dům v Teplicích, 3+1 architekti
Foto: Pavel Plánička
19/29

Rodinný dům v Teplicích, 3+1 architekti
Foto: Pavel Plánička
20/29

Rodinný dům v Teplicích, 3+1 architekti
Foto: Pavel Plánička
21/29

Rodinný dům v Teplicích, 3+1 architekti
Foto: Pavel Plánička
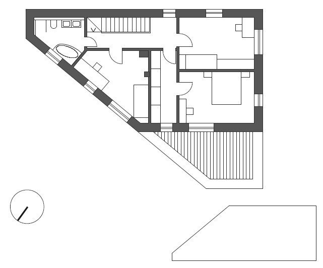
22/29

Rodinný dům v Teplicích, 3+1 architekti
Foto: 3+1 architekti
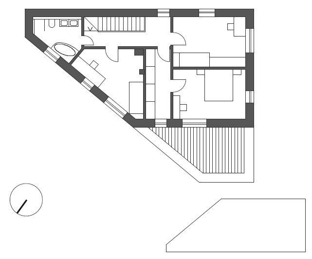
23/29

Rodinný dům v Teplicích, situace, 3+1 architekti
Foto: 3+1 architekti
24/29

Rodinný dům v Teplicích, situace, 3+1 architekti
Foto: 3+1 architekti
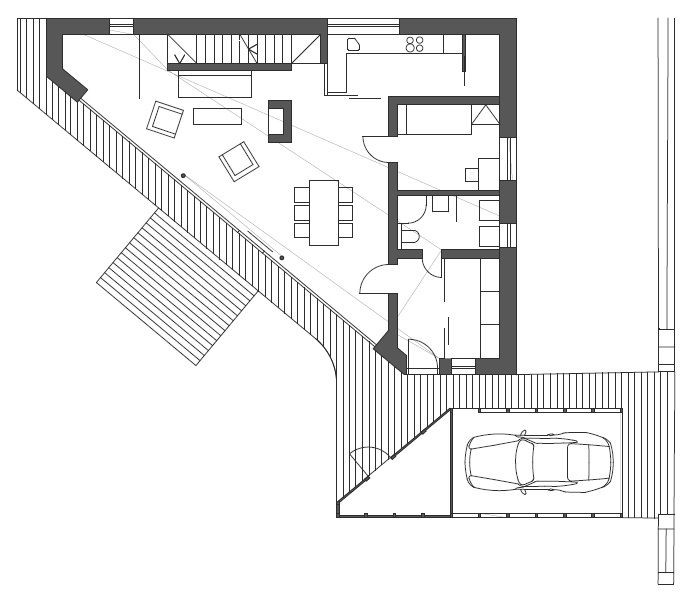
25/29

Rodinný dům v Teplicích, 3+1 architekti
Foto: 3+1 architekti
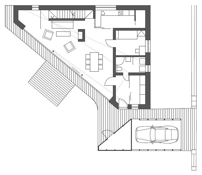
26/29

Rodinný dům v Teplicích, 3+1 architekti
Foto: 3+1 architekti
27/29

Rodinný dům v Teplicích, řez a, 3+1 architekti
Foto: 3+1 architekti
28/29

Rodinný dům v Teplicích, řez b, 3+1 architekti
Foto: 3+1 architekti
29/29