RD Vaňov

Špatně přístupné místo v prudkém čedičovém svahu nad obcí a zahrada orientovaná severovýchodním směrem.
Zato ale pevná stavebníkova vazba k pozemku s chatou postavenou jeho prarodiči a výjimečný panoramatický výhled na meandrující řeku.
Souzvuk rodící se z čedičem tříštěných fragmentů lodní dopravy, turismu, chatařství a nostalgie, ustavuje dům.
Dům jako pokračování příběhu původního přístřešku.
- Autoři: Pavel Plánička, Bruno Panenka, Matěj Páral
- Ateliér: 3+1 architekti
- Země: Česká republika
- Město: Ústí nad Labem
- Ulice, číslo: Vaňov
- PSČ: 400 01
- Datum projektu: 2009
- Realizace: 2012
- Užitná plocha: 129.50m2
- Zastavěná plocha: 113.00m2
- Plocha pozemku: 980.00m2
- Poznámka: Foto © Pavel Plánička
Související projekty
Související architekti
Související ateliéry a firmy
Mohlo by vás zajímat

1/33

3+1 architekti, RD Vaňov – foto
Foto: Pavel Plánička
2/33

3+1 architekti, RD Vaňov – foto
Foto: Pavel Plánička
3/33

3+1 architekti, RD Vaňov – foto
Foto: Pavel Plánička
4/33

3+1 architekti, RD Vaňov – foto
Foto: Pavel Plánička
5/33

3+1 architekti, RD Vaňov – foto
Foto: Pavel Plánička
6/33

3+1 architekti, RD Vaňov – foto
Foto: Pavel Plánička
7/33

3+1 architekti, RD Vaňov – foto
Foto: Pavel Plánička
8/33

3+1 architekti, RD Vaňov – foto
Foto: Pavel Plánička
9/33

3+1 architekti, RD Vaňov – foto
Foto: Pavel Plánička
10/33

3+1 architekti, RD Vaňov – foto
Foto: Pavel Plánička
11/33

3+1 architekti, RD Vaňov – foto
Foto: Pavel Plánička
12/33

3+1 architekti, RD Vaňov – foto
Foto: Pavel Plánička
13/33

3+1 architekti, RD Vaňov – foto
Foto: Pavel Plánička
14/33

3+1 architekti, RD Vaňov – foto
Foto: Pavel Plánička
15/33

3+1 architekti, RD Vaňov – foto
Foto: Pavel Plánička
16/33

3+1 architekti, RD Vaňov – foto
Foto: Pavel Plánička
17/33

3+1 architekti, RD Vaňov – foto
Foto: Pavel Plánička
18/33

3+1 architekti, RD Vaňov – foto
Foto: Pavel Plánička
19/33

3+1 architekti, RD Vaňov – foto
Foto: Pavel Plánička
20/33

3+1 architekti, RD Vaňov – foto
Foto: Pavel Plánička
21/33

3+1 architekti, RD Vaňov – foto
Foto: Pavel Plánička
22/33

3+1 architekti, RD Vaňov – foto
Foto: Pavel Plánička
23/33

3+1 architekti, RD Vaňov – foto
Foto: Pavel Plánička
24/33

3+1 architekti, RD Vaňov – foto
Foto: Pavel Plánička
25/33

3+1 architekti, RD Vaňov – foto
Foto: Pavel Plánička
26/33

3+1 architekti, RD Vaňov – foto
Foto: Pavel Plánička
27/33

3+1 architekti, RD Vaňov – foto
Foto: Pavel Plánička
28/33

3+1 architekti, RD Vaňov, situace – foto
Foto: archiv autorů
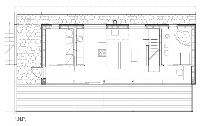
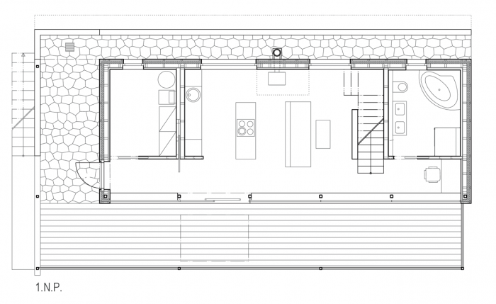
29/33

3+1 architekti, RD Vaňov, půdorys 1. NP – foto
Foto: archiv autorů
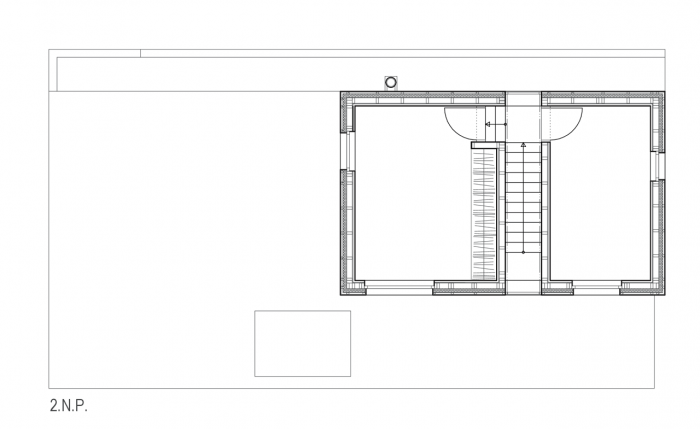
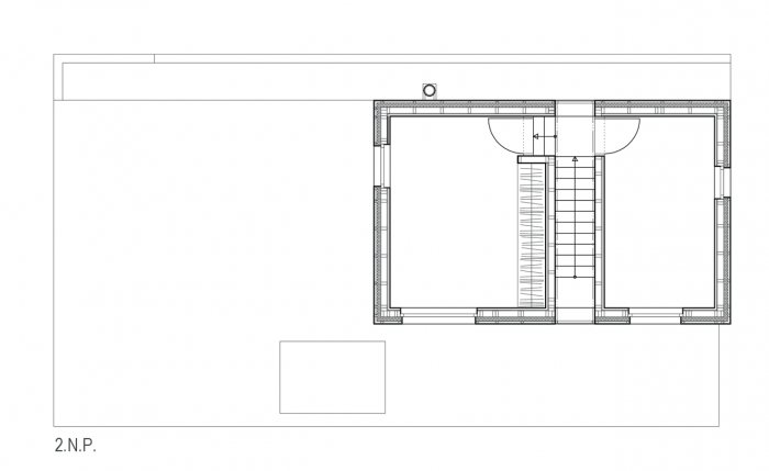
30/33

3+1 architekti, RD Vaňov, půdorys 2. NP – foto
Foto: archiv autorů
31/33

3+1 architekti, RD Vaňov, řez příčný – foto
Foto: archiv autorů
32/33

3+1 architekti, RD Vaňov, řez podélný – foto
Foto: archiv autorů
33/33