Refuel works - Dostavba chalupy Anička

Krajina 

Orlické Záhoří leží v Orlickozáhorské brázdě, na pravém břehu řeky Divoké Orlice. Hlavní hřbet Orlických hor odděluje obec od vnitrozemí Čech. Název obce Orlické Záhoří vznikl v roce 1951 po sloučení obcí Kunštátu, Bedřichovky, Jadrné, Trčkova, Zelenky a Černé Vody. Chalupa se nachází v části Jadrná. Je zde dochovaná struktura tradičního lánové uspořádání. 

Místo 

Stávající budova z počátku minulého století, je z vepřovicových cihel s omítkou a kamenným soklem, okna jsou dřevěná kastlová, založení je na kamenných základech. Střecha je sedlová zalomená s eternitovou krytinou a dřevěným krovem. 

Dům 

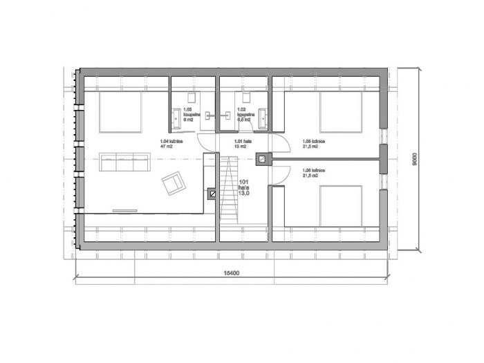
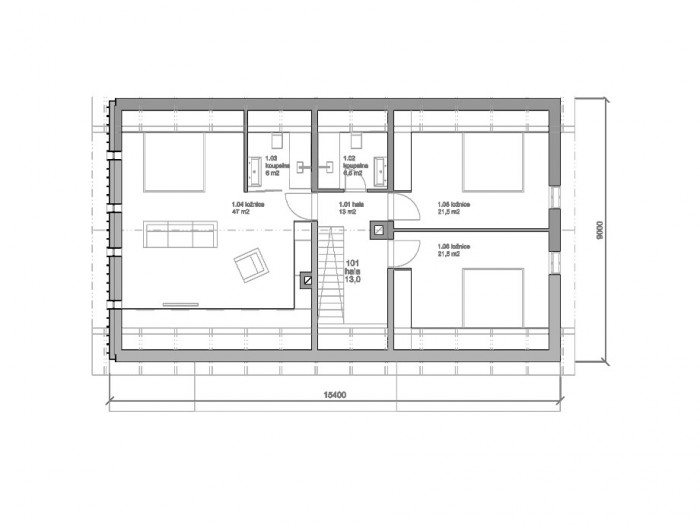
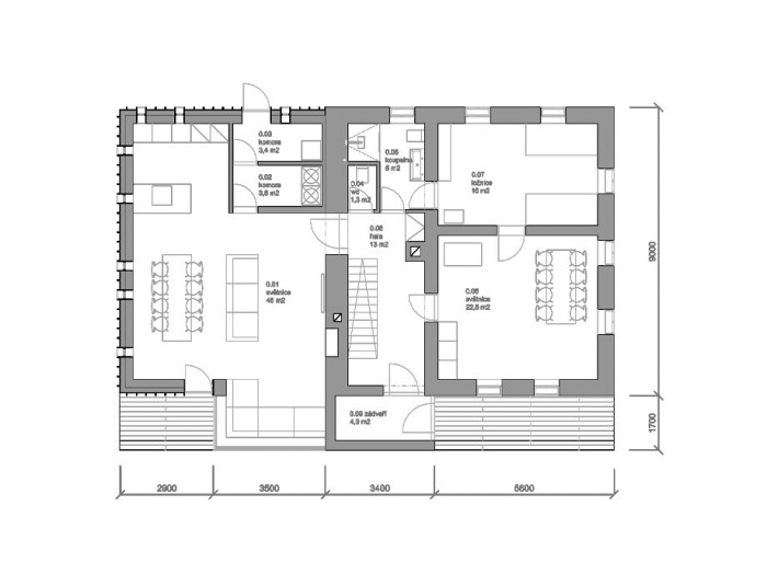
Dostavba respektuje půdorysné i hmotové řešení původní obytné části. Zastřešení sleduje tvar střechy stávající obytné části. Hlavní nosná konstrukce je z betonových tvárnic. Konstrukce sedlové střechy je dřevěná. Dům bude obložen dřevěným obkladem z modřínu bez povrchové úpravy. Jednotlivá prkna obkladu budou osazena vertikálně s překrytím mezer lištami. Tento způsob obkladu je v regionu tradičním řešením obvodového pláště stodol a jiných obytných i nebytových staveb. Předpokládá se přirozené zestárnutí materiálu a změny barvy na šedostříbrnou. 

Fasáda 

Dřevěná okna jsou osazena v líci fasády. Tvar a velikost oken připomíná tradiční okenní otvory okolních stodol. Velikost oken odpovídají šířce jednotlivých prken a záměrně se ztrácí v dřevěném obkladu. Celé vizuální řešení objektu je inspirováno tradičními zemědělskými objekty v regionu. Ne však pouhým kopírováním historických předloh, ale pomocí prvků soudobé architektury. Přirozeným zestárnutím dřevěného stavba splyne s okolím.

  • Autoři: Zbyněk Ryška, Jan Skoupý
  • Země: Česká republika
  • Realizace: 2016
  • Město: Orlické Záhoří
  • Datum projektu: 2015
  • Realizace: 2016
Generální partner
Hlavní partneři