R

Rekonstrukce statku ve Žloukovicích

Lokalita

Při hlavní přístupové silnice do obce Žloukovice, hlavní fasáda je orientovaná na východ k řece Berounce, řešený objekt je součástí areálu původního statku.

Zadání

Rekonstrukce hlavního obytného objektu pro účely bydlení čtyřčlenné rodiny.

Architektonické řešení

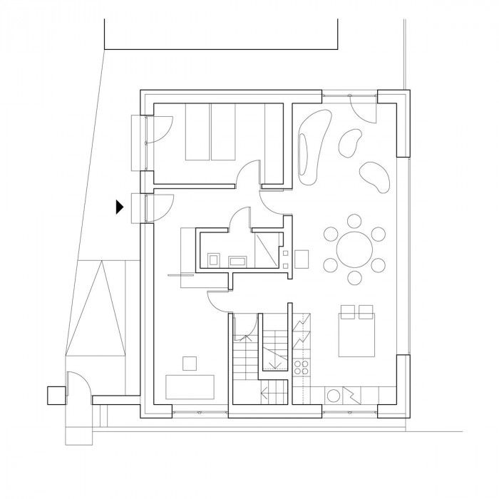
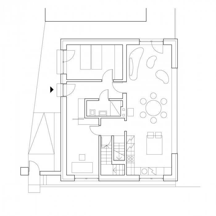
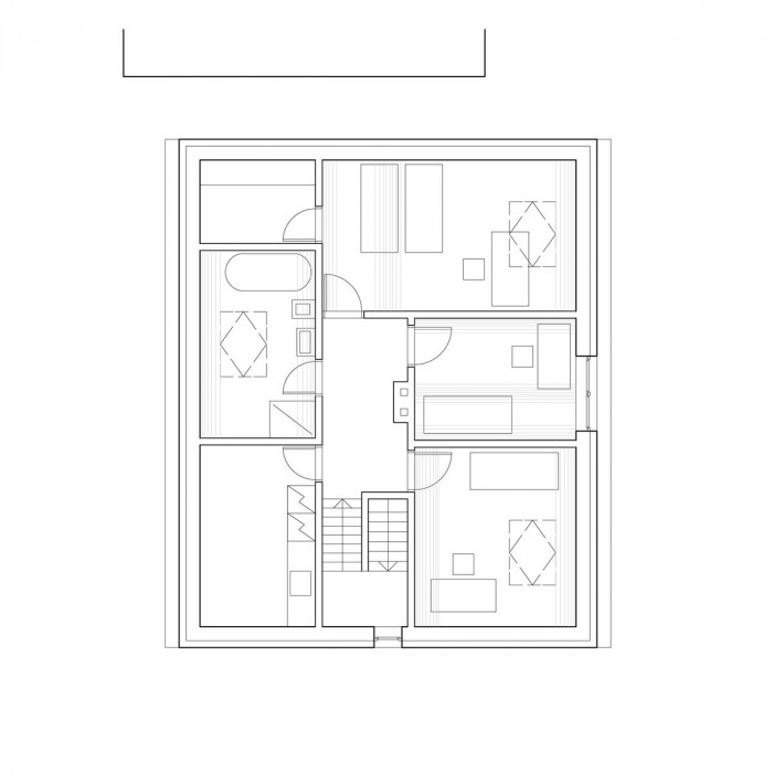
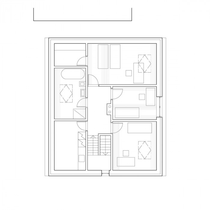
Objekt je jednopodlažní s podkrovím a je částečně podsklepen, původní hmota zůstává beze změny a splňuje podrobnou regulaci CHKO Křivoklátsko, obytné místnosti v přízemí a podkroví jsou umístěné při východní fasádě orientované k řece Berounce. Hlavním zásahem do původního objektu je pevně zasklené 6,2 m široké okno s rozšířeným pobytovým parapetem, které je umístěno po celé délce obývacího prostoru v přízemí

Stávající dispozice přízemí byla upravena dle nového programu tak, aby bylo možné obejít centrální hygienické jádro. Fasáda objektu je bílá a odkazuje na původní vápenné nátěry vesnických chalup, hmota objektu je usazená na stávající masivní kamenné podezdívce.

Konstrukce a technologie

Objekt je zděný z pálených cihel, krov je dřevěný zateplený mezi krokvemi, střešní krytina je z vláknocementových šablon vyráběných v nedalekém Berouně, vnitřní nenosné konstrukce jsou z plynosilikátových tvárnic a SDK konstrukcí.

Výplně vnějších otvorů jsou z dřevohliníkových oken, vnitřní dveře jsou dřevěné bezfalcové, podlahy v interiéru jsou kombinací keramické dlažby a masivní dřevěné kantovky.

Objekt je kompletně zateplen a je vytápěn kotlem na dřevěné pelety.

Generální partner
Hlavní partneři