Rodinný dům od studia DOOOM rámuje zahrada se vzrostlými borovicemi
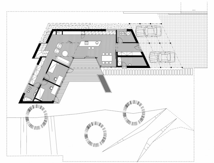
Dům jsme pracovně nazvali podle nedalekého slavného zlínského filmového areálu ve Zlíně – Kudlově. Při návrhu domu jsme se museli vypořádat s minimální velikostí pozemku, který je sevřen blízkou výrobní halou a sousedící výstavbou. Odpovědí je jednopodlažní stavba o zalomeném půdorysu. Dům dostal podobu zkosených hranolů z bíle omítnutého zdiva. Díky svému lapidárnímu tvaru působí elegantně a nadčasově. K okolo vinoucí se silnici se dům otáčí zády tak, aby majitelům umožnil, co největší kontakt se zahradou s trojicí mohutných borovic a poskytoval jim tak dostatek soukromí a pohodlí.
Samotný přístup k domu je proto řešen z boku, kde z hlavní hmoty domu vybíhá prodloužená terasa, podepřená jen dvojicemi subtilních sloupů po obou stranách a zastřešuje vstup i stání pro auta. Nad hlavní hmotu přízemního domu je v zalomení posazen ze severozápadní strany mírně přesahující zkosený hranol. Ten jsme kontrastně opláštili cedrovým dřevěným stínícím roštem ve vertikálním rastru, který brání pohledu dovnitř, ale nikoliv ne ven. Stínění tak pohledově spojuje dům s venkovními dřevěnými terasami.

V duchu jednoduchosti a kombinace studených a teplých barev se nese i interiér domu, kterému vládnou podlahy z broušeného betonu a přiznané betonové stropy v jemných odstínech šedé spolu s kontrastním vestavěným nábytkem z tmavého dřeva. Do útrob domu se vchází přes úzkou halu, po jejíchž stranách se nachází technické zázemí domu a zahradní sklad, který je samostatně přístupný ze zahrady.
Hlavní obytný prostor tvoří minimalisticky pojatá vestavěná kuchyně s pracovním ostrůvkem, jídelním koutem a na něj volně navazující společenská místnost. Zde jsme dosáhli velkorysosti prostoru na nevelké ploše prolomením světlíku ve tvaru kosodélníku, který je zároveň zdrojem nepřímého osvětlení. Světlík i za pomoci otevřeného schodiště vizuálně a hmotově propojuje horní patro s přízemím. Zalomení domu odděluje společenskou místnost od dvojice dětských pokojů a koupelny. Neustálý kontakt se zahradou umožňují velkorysá celoplošná hliníková okna. Do ložnice rodičů s šatnou a koupelnou se vchází ze schodiště v obývacím prostoru. Hmota ložnice působí až jako jakási pevnost intimity či s nadsázkou řečeno i jako kontrolní centrum majitelů, neboť ze střešní terasy je výhled na celý prostor kolem domu i na severní svahy luk a lesů spadající ke Zlínu.




Mohlo by vás zajímat