Stodola Benešov

Nádherné výhledy nad dramatickým údolím řeky Jizery v obci Benešov u Semil. Svažitý pozemek situovaný na jih se zahradou se vzrostlými stromy, kterou nemá jen tak někdo.
Nehnutá stodola z roku 1947 na hlubokém kamenném věnci. Nádherný mansardový krov s ležatou stolicí – hřeben je výšce deseti metrů! A jak bude fungovat tenhle probuzený dům?
Na jihu má vlastně čtyři patra a je velmi otevřený. Dole garáž a letní kuchyň, o patro výš tělocvična pro jogíny nebo snad koncertní pódium a hlavně jakýsi zastřešený dvůr, k němu dílna tak akorát a prádelna. Ze dvora vedou schody nahoru a tam to je! Zvýšené zápraží na dřevěném roštu, na nějž od západu proudí sluneční svit velkým otvorem ve střeše. Nádherné večery, třeba tady. Nebo venku na terase u kamínek letní kuchyně. Nebo na oplocené zahrádce s ovocnými stromy, dalo by se sedět a pozorovat hladinu rybníčku.
Zpátky na zápraží, můžeme vstoupit do podélné chodby s odkládací skříní a lavicí, spižírnou a toaletou a pokračovat dál jižním směrem do obytné haly. Plápolá tu oheň rodinného krbu a zahřívá rozlehlou místnost s výhledem na nedaleký Skuhrov, Vrchy, Stránsko a Kamenec. Velkorysá kuchyň se starožitnou jídelnou jsou připraveny posloužit i těm nejnáročnějším hostům a volné lůžko by se zde zajisté také našlo. Ale to až o patro výš nad pokojem pána a paní domu, kde nachází své milované útočiště s veškerým příslušenstvím.
Konstrukci stavby lze popsat jednoduše jako mansardovou – lomenou – střechu tesařsky vázanou z dřevěných trámů do ležaté stolice. Vzdálenost plných vazeb se mění v rozmezí od 2,87 m do 4,06 m. Dřevěný krov vynáší v pěti polích celkem 14 zděných pilířů z cihel plných, ostře pálených, zděných na cementovou maltu. Zděné pilíře spočívají na cca 1,9 m hluboké kamenné podezdívce – základu – z žulových kvádrů kladených na cementovou maltu. Obdélný půdorys stavby je svou delší stranou orientován severojižně. Terén, do něhož je objekt zasazen klesá k jihu. Zaměřený výškový rozdíl po délce stodoly činí cca 1,83 m. Stavba díky zešikmení pozemku získává při jižní straně podlaží navíc. Částečně suterénní prostor staticky vymezuje příčná nosná zeď, provedená rovněž z žulových kvádrů.
Navržené dispoziční řešení vychází z principu neměnit konstrukci domu, pouze ji případně doplňovat. Za jisté zásahy lze považovat: - průraz příčné zdi pro osazení schodiště mezi suterénní letní kuchyní a vstupním dvorem - prosvětlení vnitřního prostoru skleněnými taškami v polovině západní strany střechy - nová okna v obou štítech, která vychází z potřeb vnitřní disposice, přičemž jsou komponována tak, aby harmonicky dotvářela celkový staro-nový ráz budovy.
Stodola byla do roku 2008 využívána k uskladnění krmiva a podestýlky chovné zvěře. Dům si nechal navrhnout od architekta Josefa Schejbala (autora semilského Krematoria) těsně po druhé válce místní velkostatkář Antonín Holec (r.1945-48). Roku 1948 byla zbrusu nová stodola s tesařsky hodnotnou vazbou krovu znárodněna ve prospěch JZD Benešov u Semil. Kapacita a kvalita unikátní stavby dokonce iniciovala JZD k výstavbě objektu kravína v bezprostřední blízkosti. Rodina pana Holce obdržela dům zpět až v porevoluční době. Díky vynikající stavební úrovni s jakou byla provedena se však stodola, i přes nedbalou správu JZD, dochovala ve velmi dobrém stavu.
Původně zemědělské stavení bylo během roku 2012 na základě podrobného projektu proměněno v rodinné sídlo s víceúčelovým dvorem. Stávající konstrukce stodoly (obdélný půdorys cca 18,3 × 10,3 m, výška hřebene 10,3 m) byla pouze vhodně doplněna, tak aby splnila nové požadavky vzniklé změnou užívání.
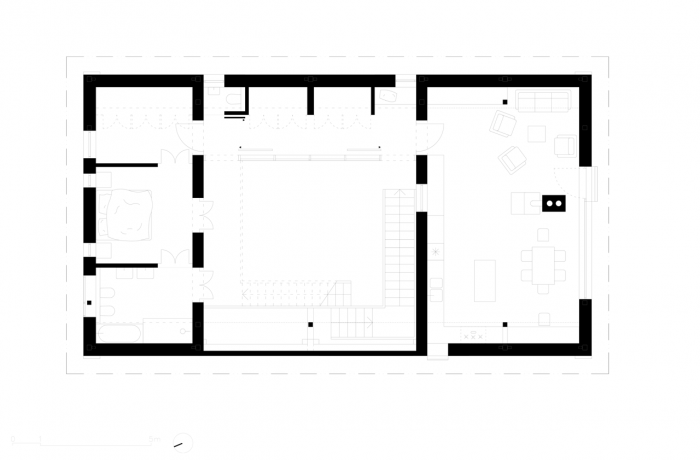
V nově pojmenovaném interiéru stavby lze napočítat celkem čtyři podlaží. Vzhledem k velkému objemu, jenž pod sebou ukrývá rozměrná střecha stodoly, jsou zde však vytápěny pouze některé prostory. Suterén (úroveň -1,670 m) je využit pro garáž a letní kuchyni, která navazuje na jihovýchodní část zahrady s terasou. Do prvního nadzemního podlaží (úroveň ±0,000 m - odpovídající relativní výšce 443,20 m B. p. v.) je umístěna zastřešená dvorana vstupu s dílnou a prádelnou. Na její zvýšené úrovni nad garáží je prostorná tělocvična s velkými ocelovými okny. Skrze dříve zazděnou část jižního průčelí dnes prosklenými plochami do vstupní dvorany a tělocvičny proudí sluneční svit. Hlavní vytápěná část domu využitá pro bydlení se odehrává především na podlaží druhém (úroveň 3,600 m). Půdorys ve tvaru U je rozdělen na denní a noční stranu propojenou obslužnou halovou chodbou. Obě strany pro bydlení a podélnou halu obsluhuje venkovní rošt s posezením a schodištěm výš a níž. V třetím nadzemním podlaží (úroveň 6,300 m) se nachází hostinský pokoj s příslušenstvím a na straně jižní sezónní atelier s nejlepším výhledem na kopce nad Jizerou.
Benešovská Stodola byla pro zdejší usedlíky místem, kam si v dětství chodili hrát na schovávanou. Byla uvítacím domem pro každého, kdo do vsi sjížděl z nedaleké obce Příkrý, i seníkem zamilovaných párů. Dnes, když se roztáhnou její vysoká posuvná vrata na straně k silnici i do velké zahrady, odhalí stodola všem kolemjdoucím svůj vnitřní betonový dvůr s prosklenou tělocvičnou na pódiu. Dál se tu setkávají místní i přespolní lidé při posvícení, na muzice nebo na hodinách jógy. Stádo z kravína odešlo jinam a tak dům poprvé konečně žije.
- Autoři: Pavel Nalezený, Jakub Adamec
- Ateliér: Studio Raketoplán
- Spolupráce: Jan Mach, Jan Vondrák
- Země: Česká republika
- Město: Benešov u Semil
- Ulice, číslo: Benešov u Semil 304
- PSČ: 512 06
- Datum projektu: 2010
- Realizace: 2013
- Užitná plocha: 201.40m2
- Zastavěná plocha: 209.50m2
- Plocha pozemku: 2 041.00m2
- Poznámka: Foto © Lukáš Pelech, Miroslav Holubec, Pavel Nalezený
Související projekty
Související architekti
Související ateliéry a firmy
Mohlo by vás zajímat














































