Dům „Un Dernier voyage“ je zasazený ve staré pastevecké krajině. Můžete se k němu dostat úzkou lesní cestou. Pozemek leží na úbočí kopce nedaleko od malé vesničky a několik metrů od okraje lesa. Tento les je obydlen současným a zahradním uměním. Umělci a designéři sem na venkov přicházejí z celého světa. „Poslední výlet“ je projekt, o kterém klienti dlouho snili na svých dlouholetých zámořských cestách a odráží rozličné umělecké vlivy, se kterými se při nich setkali.

Ona píše, on sochá do dřeva a kovu. Dům je navržen jako místo tvoření, ideální k hledání inspirace. Na jedné úrovni je objem vytvořený z kontejneru proměněného v řezbářskou dílnu – nesen na kovové konstrukci potom nad terénem pluje objem domu, který tak ponechává terénu jeho spád.

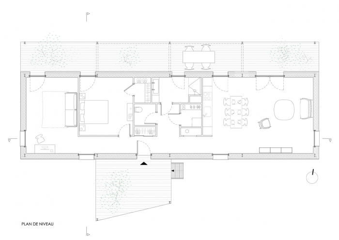
Půdorys má rozměry 20 na 6 metrů, je otevřený a umožňuje tak plynulý pohyb a flexibilní rozvržení. Na obě strany od ložnice a toalety se rozprostírá obývací pokoj a kancelář, propojené širokou chodbou využitou pro vystavování soch. K objemu jsou přidány dvě terasy; na jihozápadě zastřešený vchod a na severovýchodě venkovní prostor podél budovy krytý baldachýnem na kovové konstrukci.

Krásná materialita má, jak žádají brutalistní principy, ekonomické přednosti. Proto strop odhaluje kovovou konstrukci, své ocelové plechy, technické instalace a podlaha je z hrubého betonu. Zvenku potom černé kovové opláštění evokuje ocelové plechy kontejneru – skromný dopravní předmět, který je ale solidní a v zámoří velmi obvyklý. Tento černý monolit kontrastuje s rurální krajinou. Jeho podlouhlý a nízký, na kopci stojící tvar, ho naopak noří do zeleného pozadí.

Fasády jsou provrtány vertikálami francouzských oken otevírajících se dlouhé terase a zvlněným kopcům, nebo pevně zasklených oken rámujícími krajinu a hrajícími s příčnou osou plánu. Dům je následován kontejnerem řezbářské dílny, který je osazen ve stejném úhlu, a tak vyvolává pocit zdvojené stavby.

„Un Dernier voyage“ je syrové bydlení v divoké krajině, která je ozvěnou dlouhých cest kontejnerů, kterých se přepravní společnosti už vzdaly.

  • Ateliér: Spray architecture
  • Spolupráce: Gabrielle Vella-Boucaud
  • Země: Francie
  • Realizace: 2014
  • Město: Meuse
  • Suma: 180 000.00
  • Měna: EUR
  • Realizace: 2014
  • Užitná plocha: 110.00m2
  • Foto ©: Jelena Stajic
Generální partner
Hlavní partneři