Titul ČCA 2018 získal David Kraus za monolitický dům z betonu. Ocenění získalo také 7 finalistů

Na slavnostním galavečeru České ceny za architekturu (ČCA) byly v pondělí 19. listopadu ve Foru Karlín vyhlášeny výsledky 3. ročníku této soutěžní přehlídky České komory architektů (ČKA). Hlavní cenu si převzal David Levačka Kraus za realizaci Administrativní budovy ve Strančicích. Ve finále letošního ročníku České ceny za architekturu porota vybírala mezi osmi stavbami. Vítěz i finalisté se etablovali ze 33 nominovaných prací, které ČKA představila na konci května tohoto roku. Celkově se o Českou cenu za architekturu ve 3. ročníku ucházelo 145 děl dokončených v posledních pěti letech.
Česká cena za architekturu , 20. 11. 2018
Uděleny byly rovněž čtyři Ceny partnerů: Cena Ministerstva pro místní rozvoj ČR za prosazování kvalitní výstavby prostřednictvím architektonických soutěží, Cena Ministerstva průmyslu a obchodu ČR za přístup k revitalizaci průmyslového objektu, Cena Agentury ochrany přírody a krajiny ČR za citlivou rekonstrukci stavby v krajině a Cena společnosti VELUX za práci s denním světlem.
Akademie České ceny za architekturu současně ocenila Výjimečný počin. Všechna oceněná díla Česká komora architektů vystaví od 22. listopadu v Galerii Jaroslava Fragnera v Praze a od 7. února 2019 pak v Galerii architektury Brno.
Finalisty ze 33 nominovaných vybírala mezinárodní porota v čele s předsedou Rogerem Riewem(Německo). Dalšími členy byli Carlo Baumschlager (Rakousko), Zsolt Gunther (Maďarsko), Andrea Klimko (Slovensko), Robert Konieczny (Polsko), Yael Moria Klain (Izrael) a architekt českého původu Ivan Reimann (Německo). Sešli se začátkem září přímo v České republice, aby osobně zhlédli vybrané nominované stavby. Díla neposuzovali v žádných kategoriích. Porotci zhodnotili, že „ i když je tento proces velmi namáhavý, jsou pro porotu návštěvy lokací a osobní dojmy z rozhovorů s klienty a architekty velmi užitečné. Takto nashromážděné poznatky zásadním způsobem pomohly s konečným rozhodováním.“ Shodli se, že „posuzované stavby dosahují vysoké kvality. Bezpochyby jsou schopny soupeřit se současnou evropskou architektonickou tvorbou. Design i celkové provedení jsou na velmi dobré úrovni.“
Hlavní cena a Finalisté
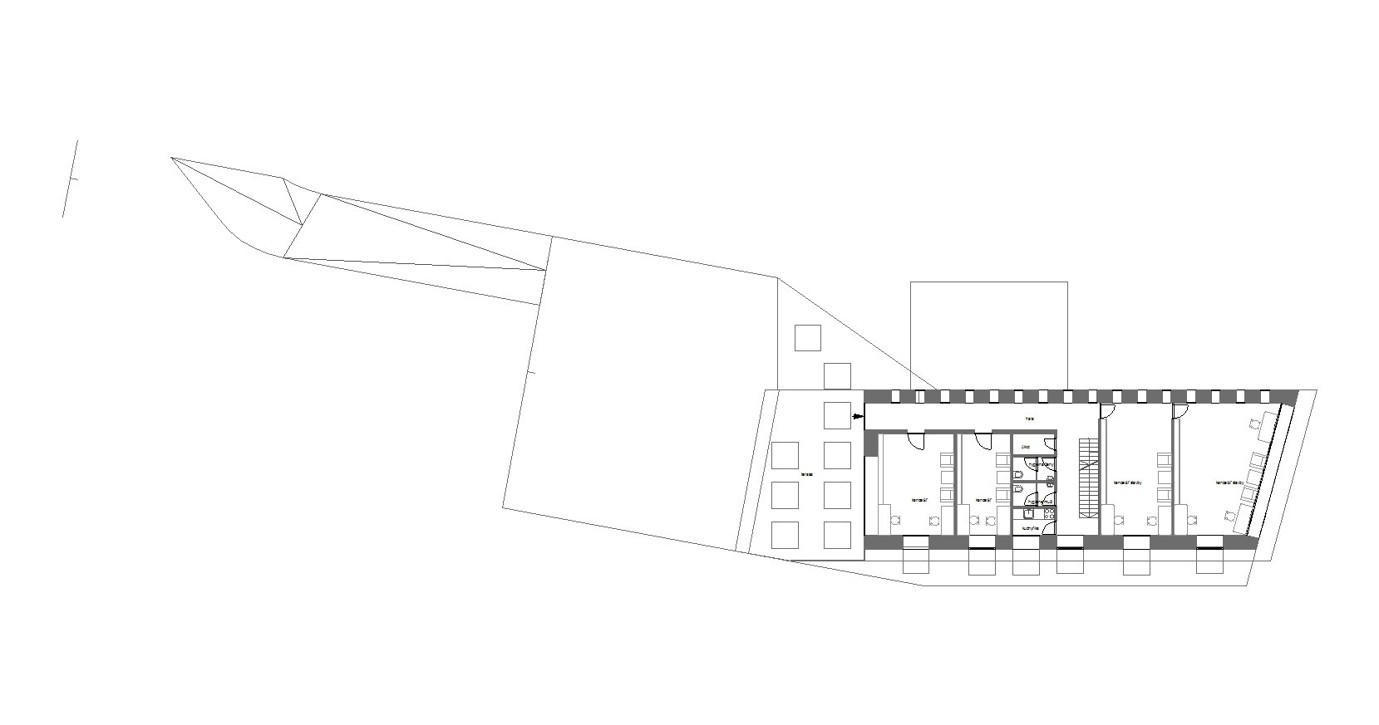
Hlavní cenu porotci udělili architektonické kanceláři Architektura za realizaci Administrativní budovy ve Strančicích (2016). Autor díla David Levačka Kraus navrhl novostavbu administrativní budovy zasazené do průmyslového areálu zhotovené inovativní technologií z lehkého betonu. V celé Evropě je přitom jen pomálu budov, které byly postaveny z tohoto materiálu. Podle poroty se jedná o mimořádný a podnětný projekt. „Lze o něm rozhodně říct, že razí cestu v současné evropské architektonické rozpravě,“ soudí. Administrativní budova ve Strančicích je podle porotců „hrubá, odvážná, průmyslová.“ Jedná se o „budovu se skloněnou střechou pro parkování aut, s očividnými konstrukčními omezeními, díky kterým působí téměř sochařským dojmem, odlitá na místě z lehkého betonu, s přibližně metr tlustými zdmi, bez jakéhokoliv zateplení, s přesně zasazenými okny.“ Porotci ocenili, že jde o„projekt s jasným rukopisem a architektonickou ambicí, která je ale držena v pozadí.“ Neskrývali nadšení nad zvolenou technologií: „Ve Švýcarsku a v Německu, především v Berlíně, probíhá rozsáhlý výzkum ve snaze najít správnou směs a správnou technologii na tvorbu a odlévání tohoto typu inovačního betonu. Zde ho máme. Opravdový výzkumný projekt, zcela jednoznačný, průkopnický, moderní. A zároveň skromný, aniž by se předváděl, nachází svou pozici v okolí jen tím, že je lehce odlišný.“

Čestné ocenění Finalista České ceny za architekturu 2018 získalo kromě vítězné realizace sedm dalších různorodých prací z celé České republiky. Z architektonické soutěže s potvrzením regulérnosti od ČKA (vyhlášené Nadací Proměny Karla Komárka) vzešla Obnova nábřeží řeky Loučné v Litomyšli (Rusina Frei architekti + Atelier PARTERO, 2017), jedna ze dvou realizací veřejného investora mezi finalisty a jediný příklad řešení veřejného prostoru a krajiny. Druhou je Sportovní hala Dolní Břežany (SPORADICAL, 2017), novostavba navazující na areál základní školy sloužící k výuce tělocviku, pro sportovní veřejnost i k pořádání kulturních akcí.Mezi nejlepší zařadila porota brněnský Polyfunkční objekt Dorn (Atelier RAW, 2016), největší budovu se zavěšeným cihelným pláštěm v České republice. Dvě ze staveb oceněných titulem Finalista stojí v horském prostředí. Pivovar Trautenberk (ADR / Petr Kolář, Aleš Lapka, 2017) vznikl rekonstrukcí původní Tippeltovy boudy, později známé jako hotel Družba, v Horní Malé Úpě v Krkonoších a i dnes si zachoval také funkci horské ubytovny. Výstupní stanice lanové dráhy na Pustevnách (Kamil Mrva Architects, 2017) je moderní přestavbou obohacující areál beskydských Pusteven.Zástupcem staveb k privátnímu bydlení mezi finalisty je Rekonstrukcea přestavba mlýna na bydlení (Stempel & Tesař architekti, 2017) na Slapech. Maximální dopad díla pomocí minimálních prostředků pak reprezentuje Útulna (Jan Tyrpekl, 2017), experimentální dřevostavba vzniklá na bývalém lehkém opevnění u jihomoravského Vratěnína.
Čtyři Ceny partnerů
V České ceně za architekturu se udělují rovněž ceny partnerů. Cenu Ministerstva pro místní rozvoj ČR za prosazování kvalitní výstavby prostřednictvím architektonických soutěží získalo KINONEKINO (XTOPIX architekti, 2017) v Plané. Hodnotitelé ocenili, že díky citlivému přístupu architektů se podařilo dostat do malého města nejen kvalitní architekturu, ale zároveň obnovit kulturní a komunitní život. Návrh vzešel z architektonické soutěže s potvrzením regulérnosti od ČKA realizované v roce 2013. Město Planá přitom v posledních letech uspořádalo již tři architektonické soutěže. Podle ministerstva se tak stává příkladem zadavatele, který hledá pro svůj rozvoj ta nejlepší architektonická řešení, čímž naplňuje Politiku architektury a stavební kultury ČR.

Cena Ministerstva průmyslu a obchodu ČR za přístup k revitalizaci průmyslového objektu patří Kotelně Libčice nad Vltavou (Atelier Hoffman, 2017). Ministerstvo vyzdvihlo, že autor pochopil výjimečnost místa - areál bývalých šroubáren v Libčicích nad Vltavou o rozloze 17 ha, a „z hromady sutě a popela“ vydobyl prozatím dvě stavby. Rekonstrukcí Uhelného mlýna vznikl showroom designových výrobků a konverzí dvou objektů Kotelny se podařilo vytvořit multifunkční prostor určený pro živé umění, řemesla a inovativní technologie i společenské akce. Citlivá rekonstrukce je následování hodným příkladem nakládání s průmyslovým dědictvím.

Agentura ochrany přírody a krajiny ČR udělila cenu za citlivou rekonstrukci stavby v krajině Pivovaru Trautenberk (ADR, 2017) v Malé Úpě. Agentura ocenila, že rekonstrukcí se podařilo vrátit bývalé Tippeltově boudě z roku 1911 její původní lesk a současně zatraktivnit celou horskou obec vyhlížející na okouzlující hřebeny Krkonoš. Nejvíce si agentura cení toho, že tato relativně objemově velká stavba vytvářející dominantní prvek krkonošské architektury ve velmi exponované poloze je proporčně i barevně zdařile začleněná do struktury zástavby Horní Malé Úpy, přičemž střízlivé řešení exteriéru vytváří příjemný kontrast s ladným interiérem.

Cenou společnosti VELUX za práci s denním světlem vyznamenali hodnotitelé Centrum Caolinum Nevřeň (Jakub Chvojka, Radek Dragoun, 2014). Projekt podle odborné poroty partnera velmi komplexně pracuje s denním světlem. Využívá potenciál horního osvětlení nejen k dosažení vizuálního komfortu, ale zabývá se i změnami atmosféry místa díky měnícím se světelným podmínkám během dne. Velmi sympatická je podle společnosti Velux navíc vlastní funkce stavby a její začlenění do života v místě.

Výjimečný počin z oblasti architektury
V rámci České ceny za architekturu jsou rovněž oceňovány výjimečné aktivity na poli architektury. Nominace provádějí členové Akademie a Grémia ČCA. Akademici o výjimečném počinu hlasovali na webovém portálu Ceny.
Ocenění za Výjimečný počin se dostalo Institutu plánování a rozvoje hl. m. Prahy - Romanu Kouckému a týmu kanceláře Metropolitního plánu za hledání nové cesty v územním plánování a otevírání diskursu nad smyslem územního plánovánía současně ji získal CAMP (Centrum architektury a městského plánování) za novátorský přístup v propagaci architektury.
Oceněná i nominovaná díla je možné zhlédnout na výstavě
Na slavnostní galavečer navazuje ve středu 21. listopadu vernisáž výstavy oceněných a nominovaných děl v Galerii Jaroslava Fragnera začíná od 18:00 hod. Výstava potrvá do 6. ledna 2019. Česká cena za architekturu 2018 se posléze představí v Galerii architektury Brno, a to od 7. února do 31. března 2019. Vernisáž se uskuteční 6. února od 18:00 hod.
Česká cena za architekturu 2018 v číslech 145 přihlášených děl 33 nominovaných děl 1 Hlavní cena 8 finalistů 4 Ceny partnerů 1 Výjimečný počin 7 členů poroty velké zastoupení soukromého bydlení méně staveb z veřejných investic 2 veřejné stavby realizované na základě architektonické soutěže

Útulna (Jan Tyrpekl, 2017)

Obnova nábřeží řeky Loučné v Litomyšli (Rusina Frei architekti + Atelier PARTERO, 2017)

Sportovní hala Dolní Břežany (SPORADICAL, 2017)

Polyfunkční objekt Dorn (Atelier RAW, 2016)

Výstupní stanice lanové dráhy na Pustevnách (Kamil Mrva Architects, 2017)