Ve Šlapanicích mají nejlepší novou stavbu v historickém prostředí. Tamní knihovna získala cenu za to, že není jen knihovnou
Klub Za starou Prahu uděluje každý rok cenu nejlepší tuzemské novostavbě v historickém prostředí. V posledním ročníku našli příkladnou stavbu až u Brna – ocenění získala knihovna ve městě Šlapanice. Za kombinaci více funkcí, za správné měřítko a propojení tradičních a moderních forem.
Adéla Vaculíková , 4. 7. 2023
Šlapanice mají necelých osm tisíc obyvatel, táhnou se podél železniční trati, která je spojuje s Brnem, a hlavní náměstí mají vystrčené téměř na okraj. Kousek od něj se nacházejí důležité body města: škola, gymnázium a městský park. Právě v něm stojí Klubem vyznamenaná stavba.
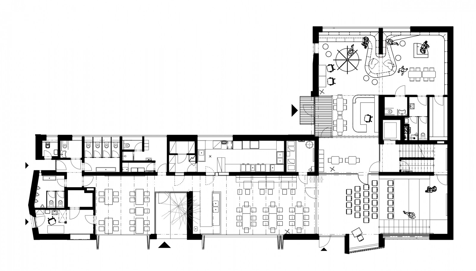
Městská knihovna ve Šlapanicích funguje skoro dva roky, v EARCH.cz jsme o ní už psali. Navrhl ji architekt Milan Podroužek z ateliéru ARCHIX ve spolupráci s Martinem Kubešem, Jaroslavem Marešem a Petrem Buryškou. Autorský tým jí dal podobu podlouhlého objektu se sedlovou střechou z pálených tašek. Ozvláštnění do jinak bíle omítnuté stavby vneslo kolmé křídlo. Jeho čelo je opláštěné dřevěnými lamelami, které cloní vnitřní prostory knihovny. „Dům není okázalý,“ říká o realizaci Milan Podroužek a dodává, že svým jednoduchým tvaroslovím souzní se zástavbou původního podzámčí.
Více k tématu
Uvnitř je kromě knihovny také restaurace a před ní dlážděná plocha, využívanou pro společenské účely. Dál už následuje zeleň. Právě polyfunkčnost stavby ocenil také Klub Za starou Prahu. „Její funkční náplň, která se neomezuje jen na knihovní provoz a budova se tak díky ní stává skutečným společenským centrem malého města,“ říká Rostislav Švácha, historik architektury a jeden z organizátorů ceny. Porota na stavbě dále ocenila správně zvolené měřítko a nápaditou práci s napůl tradičními a napůl moderními formami.

Do finále 19. ročníku Ceny Klubu Za starou Prahu postoupilo sedm staveb. Na seznamu se objevila například dostavba budovy jatek pro galerii Plato v Ostravě, obecní dům ve Skaličce u Tišnova nebo Městská knihovna ve Vratislavicích nad Nisou. Všechny z těchto realizací jsou nyní nominovány také na Českou cenu za architekturu. K překryvům mezi cenami dochází pravidelně, před třemi lety například téměř současně udělily nejvyšší ocenění sídlu firmy Lasvit v Novém Boru.
Ačkoliv je Klub Za starou Prahu pražské sdružení, nezajímá se pouze o architekturu hlavního města. Mezi finalisty a vítězi jeho ceny se objevují většinou mimopražské stavby. Nyní ale Praha dopadla lépe. „Tři ze staveb, vybraných do finále, stojí na území Prahy, což v minulých ročnících nebylo obvyklé. Snad to podává svědectví o tom, že architektura v metropoli začíná více ctít historický kontext a zlepšuje svou kvalitu,“ říká Rostislav Švácha.

Vyhlášení Ceny Klubu Za starou Prahu za novou stavbu v historickém prostředí pro rok 2022 proběhlo 29. 6. 2023.