Architektura / administrativní stavby

Nové sídlo firmy Lasvit od studia ov-a navazuje na dlouhou tradici sklářství v Novém Boru

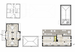
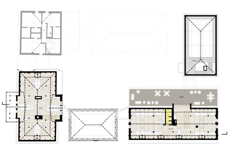
Severočeské městečko Nový Bor se od minulého roku stalo sídlem mezinárodně úspěšné české sklářské firmy Lasvit, která se tak rozhodla pokračovat v dlouhé tradici regionální ruční výroby skla. Na návrh centrály Lasvitu proběhla vyzvaná architektonická soutěž, ve které zvítězilo pražské studio ov-a vedené architekty Jiřím Opočenským a Štěpánem Valouchem. Nové sídlo Lasvitu vzniklo proměnou areálu staveb vytvářejících kompaktní blok nedaleko centra města, jehož součástí jsou také dvě památkově chráněné roubenky. Ty prošly velmi důkladnou rekonstrukcí. Areál doplnily dvě novostavby, které záměrně kontrastují jak samy se sebou, tak i s historickými roubenkami. Liší se v materiálech, tvarově ovšem vycházejí z typického dvoupodlažního sklářského domu. Skleněný dům pokrývá průsvitný bílý plášť z tvarovek skla, které Lasvit vyvinul přesně na míru tomuto projektu. V budoucnu má dojít k rekonstrukci staršího rohového domu a výstavbě třetí novostavby. K realizaci jsme publikovali také reportáž Karolíny Vránkové v rámci seriálu EARCH crash test.

OVA , 20. 3. 2020

  • Ateliér: OVA
  • Autoři: Jiří Opočenský, Štěpán Valouch, David Balajka, Anna Schneiderová
  • Země: Česká republika
  • Generální dodavatel: BAK stavební společnost, a.s.
  • Město: Nový Bor
  • Ulice, číslo: Palackého náměstí 170
  • PSČ: 47301
  • Datum projektu: 2014
  • Realizace: 2019
  • Užitná plocha: 1 780.00m<sup>2</sup>
  • Zastavěná plocha: 779.00m<sup>2</sup>
  • Historické tesařské konstrukce: Stavební firma Hlaváček
  • Betonové konstrukce: DNA Design – Břetislav Eichler
  • Ocelová konstrukce fasády: Excon, a.s.
  • Skleněné opláštění: TGK - technika, sklo a umění s.r.o.
  • autor: OVA *
  • publikováno: * 20. 3. 2020
  • zdroj: * Autorská zpráva

Mohlo by vás zajímat

Generální partner
Hlavní partneři