Využití CLT panelů zajistilo přízemní dřevostavbě velké otevřené dispozice

Nízkoenergetický rodinný dům v Ostravě, při jehož stavbě byly využity panely z křížem lepeného dřeva, těží z otevřené vnitřní dispozice propojující jednotlivé obytné prostory. Výsledkem je vzdušný prosvětlený interiér, který se otevírá směrem do zahrady.
EARCH.CZ , 1. 4. 2022 / Advertorial
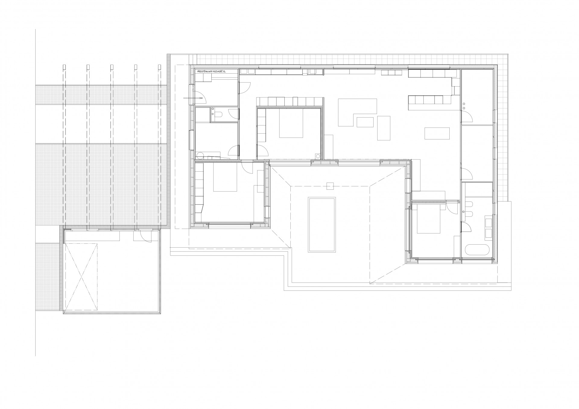
Dům na půdoryse písmene "U"
Díky uspořádání na půdoryse ve tvaru písmene „U“ nabízí rodinný dům svým majitelům dostatek soukromí i při propojení interiérů se zahradou. Architekt Aleš Makový navíc stavbu navrhl na vyvýšenou podestu, která realizaci dodává na vznešenosti a zároveň funguje jako prostorná terasa.
Architekt při řešení vnitřních dispozic jednopodlažní stavby vsadil zejména na propojení prostor. Obývací pokoj, který se stal doslova srdcem domu, se zcela prolíná s kuchyní a pracovnou a vytváří tak velký hlavní obytný prostor. Ložnice a pokoje poté našly své místo v čelech krajních křídel s výhledem do zahrady. Řešení otevřených dispozic značně usnadnilo použití speciálních dřevěných střešních panelů NOVATOP, které umožňují překlenout i rozlehlé místnosti a dát jim horizontálně i vertikálně obdivuhodné parametry. Dřevěné panely stejného výrobce byly použity i na stěny a příčky celého domu.
Více k tématu
Ochrana před sluncem
Právě díky speciálním panelům, založených na technologii křížem lepeného dřeva, mohly vzniknout také velké střešní přesahy. I bez vertikálních podpor tak předstupují 150 centimetrů před obvodovou stěnu, nad venkovním posezením je to až rovných 250 centimetrů. „Na přesah střechy jsem zvláště pyšný. Přirozeně chrání zavěšenou modřínovou fasádu před přímým sluncem a deštěm, což mnohonásobně prodlužuje jak její estetickou, tak funkční životnost,“ hodnotí výhody přesahů majitel rodinného domu. Zároveň tím autor návrhu vyřešil problém s robustním lemem atiky, který je typický pro ploché střechy. Zkosený střešní element posouvá skladbu střechy, mající témě půl metru, daleko za subtilní linku přesahu.
Vedle ochrany modřínové fasády ale přesahy zaručují především to, že se interiéry domu, do zahrady otevřené rozměrnými prosklenými okny, nebudou v létě přehřívat. Součástí řešení na regulaci teploty se staly i kvalitní venkovní žaluzie a markýza s možností rozvinutí na dvě strany tak, aby slunce při západu nesvítilo do očí. Markýza zároveň zajišťuje příjemné klima v atriu během horkých dnů a díky tomu je venkovní prostor celoročně přirozenou součástí interiéru. „Architektura, kterou vytváříme v naší kanceláři, je současná, funkční a příjemná pro bydlení. Pro mě je však největší odměnou, když dům funguje v různých ročních obdobích, je energeticky úsporný, technologií nabitý a zároveň se v něm jeho uživatelé cítí komfortně a bezpečně. Estetická a energetická udržitelnost domů – to je budoucnost,“ charakterizuje svou tvorbu architekt Aleš Makový, vedoucí ateliéru Aleš Makový Architects Group a jednatel společnosti Dům na zelenou, která stojí i za rodinným domem v Ostravě.

Moderní interiér s barevnými akcenty
Za podobou interiérů rodinného domu stojí designér Martin Sučan. Společně s šedými stěnami s italským štukem a přírodními odstíny dřevěných detailů vytvořil neutrální prostředí, které dalo vyniknout výrazným zeleným kusům čalouněného nábytku. Velkou míru pozornosti na sebe strhávají také kruhová svítidla. Jedním nechal dokonce provléknout kuchyňskou digestoř a vytvořil tak funkční designový prvek.
Prostorová akustika
Důležitou roli v interiérech sehrály stropní akustické panely, umístěné nad všemi zónami, kde se komunikuje. Dřevěné akustické panely NOVATOP zvyšují akustický komfort – zkracují jak délku dozvuku hovoru, tak minimalizují ozvěnu. Zároveň tvoří důležitý estetický prvek. „Na prostorovou akustiku architekti často nemyslí a pak může jít o akustický horor. Přitom se dá velmi efektivně řešit už v projektu. Optimalizovat ji dodatečně nevede k dobrému výsledku,“ říká majitel domu, který si toto řešení prosadil.

S důrazem na soukromí
Na vzdušné interiéry plynule navazuje prostorná terasa z voděodolného mahagonového dřeva. Jelikož je ošetřena šedou lazurou, skvěle ladí k modřínové fasádě. Díky otevřené trojkřídlé dispozici svírá dům velkou plochu terasy i ve svém středu. Architekt na místo navrhl umístit zapuštěný bazén, ke kterému se otevírají všechny obytné prostory.
Směrem do ulice se dům naopak záměrně tváří uzavřeně. Přes celé jeho průčelí se táhne jednoduchá pergola v barvě fasády. Pohled od zahrady dále blokuje předsunutá dřevěná garáž navržená jako samostatně stojící objekt. Právě jednoduché, ale nápadité dispozice, která přináší v oblasti soukromí mnoho výhod, si na domě cení i sami majitelé.
- Autoři: Aleš Makový
- Město: Ostrava
- Realizace: 2019
- Zastavěná plocha: 239,3 m2
- Užitná plocha: 199,3 m2
- Interiérový designér: Martin Sučan
- Realizace: Dřevostavby MC