Ateliér RAW navrhl v centru Brna terasovitý bytový dům Domino
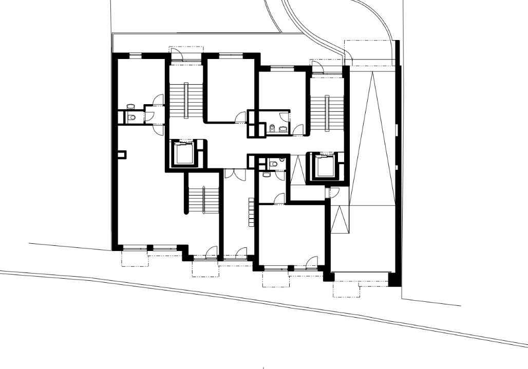
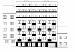
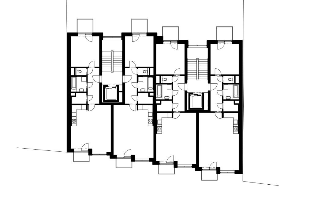
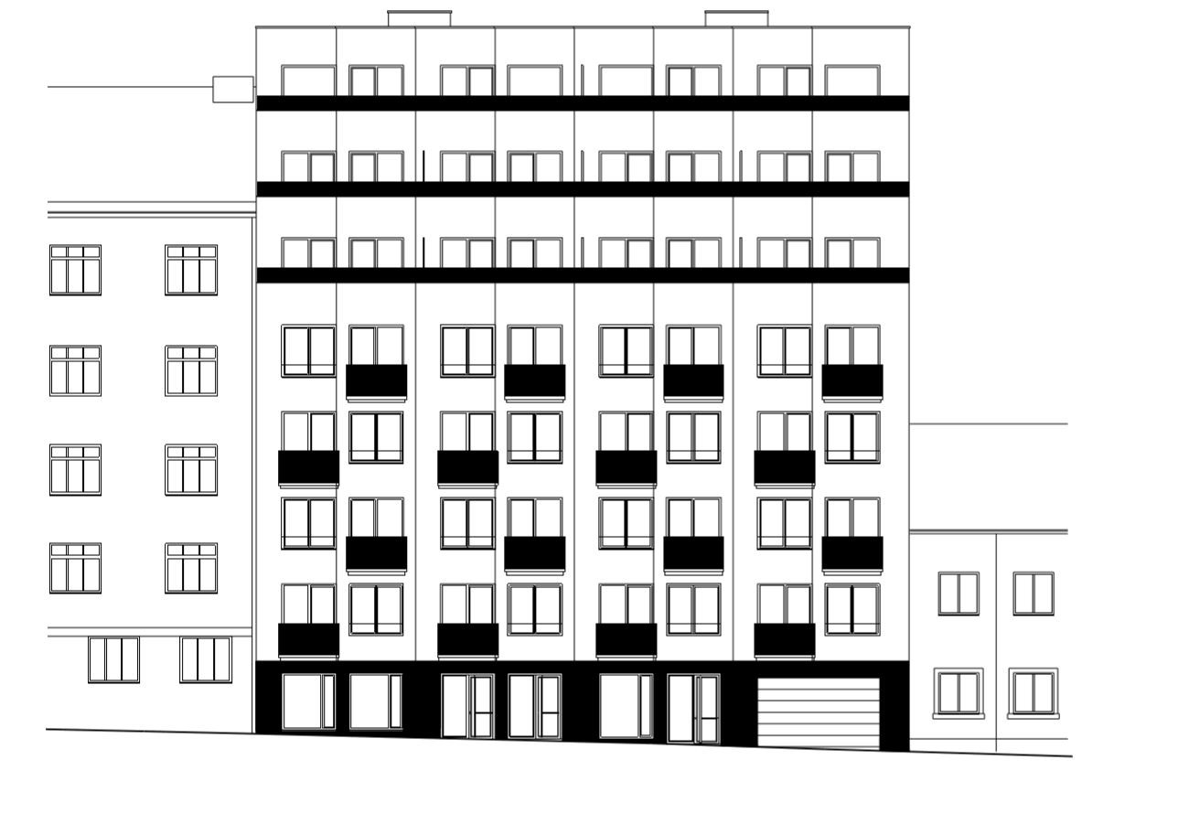
Od minulého roku stojí ve Francouzské ulici v Brně nový bytový dům od lokálního ateliéru RAW, který nabízí kvalitní bydlení nedaleko centra města. Projekt nazvaný Domino svým tvarem nápadně připomíná stejnojmennou hru. Architekti totiž hmotu domu rozehrály několika ustupujícími patry s terasami, fasády pak člení desítky vykonzolovaných balkonů. Černobílá barevnost prostupuje z exteriéru i do interiéru, kde je doplněna výraznou červenou barvou několika několika krásných detailů. Bytový dům Domino aktuálně získal nominaci na prestižní Cenu Evropské unie - Mies van der Rohe Award 2019.
Atelier RAW , 13. 12. 2018
- Autoři: Tomáš Rusín, Ivan Wahla
- Ateliér: Atelier RAW
- Spolupráce: Lukáš Vágner
- Země: Česká republika
- Realizace: 2017
- Město: Brno
- Ulice, číslo: Francouzská, 69
- PSČ: 60200
- Realizace: 2017
- Zastavěná plocha: 411.00m2