Atelier Znamení čtyř navrhl do vršovické proluky "prolomený" bytový dům na motivy art deco
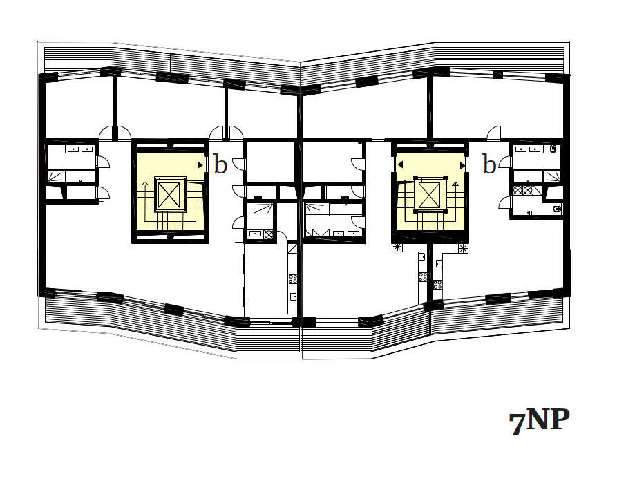
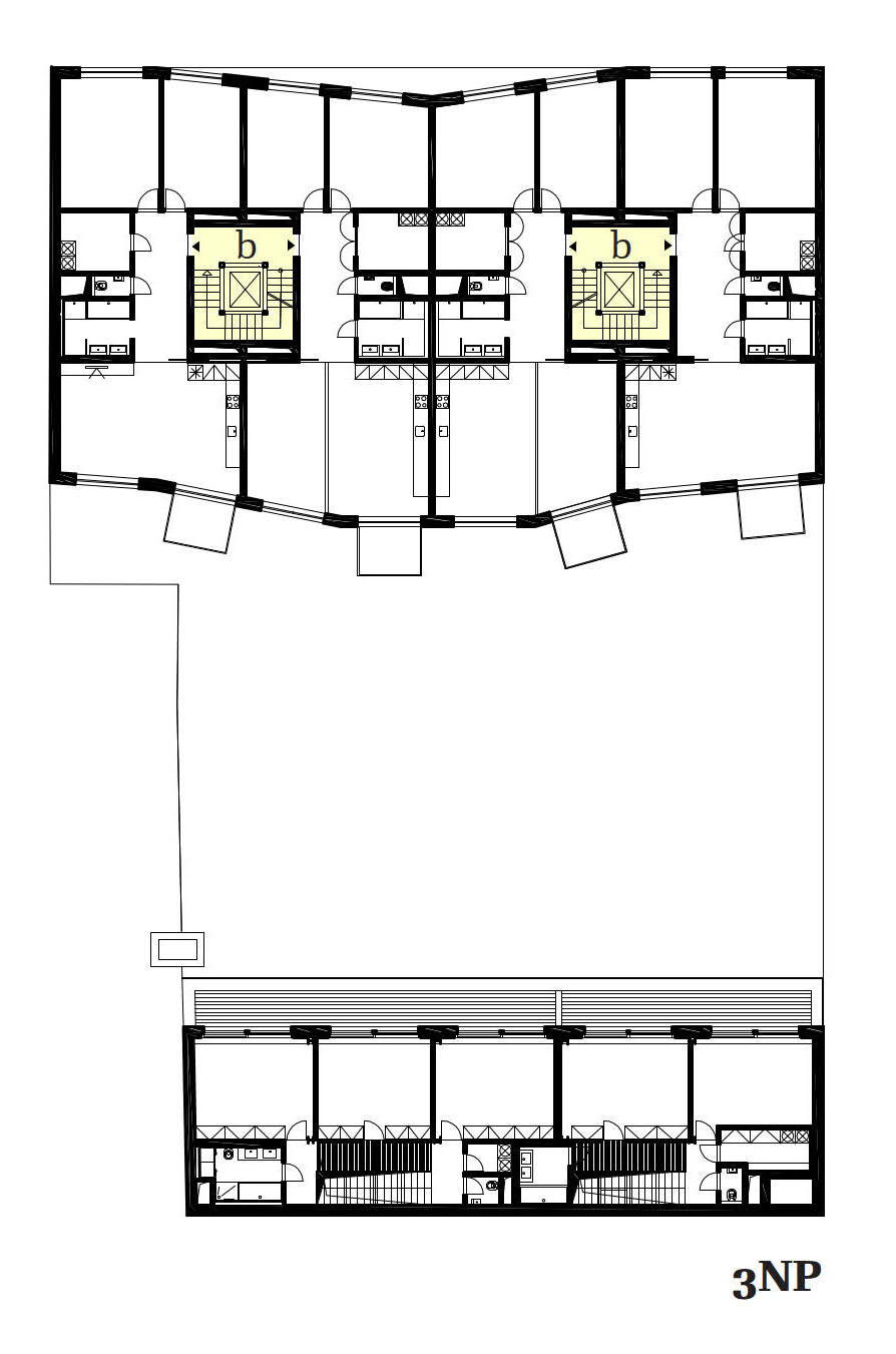
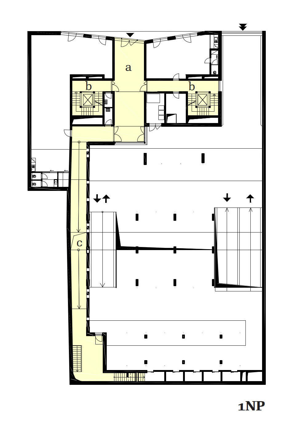
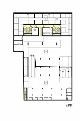
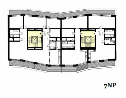
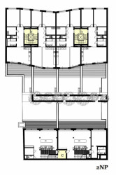
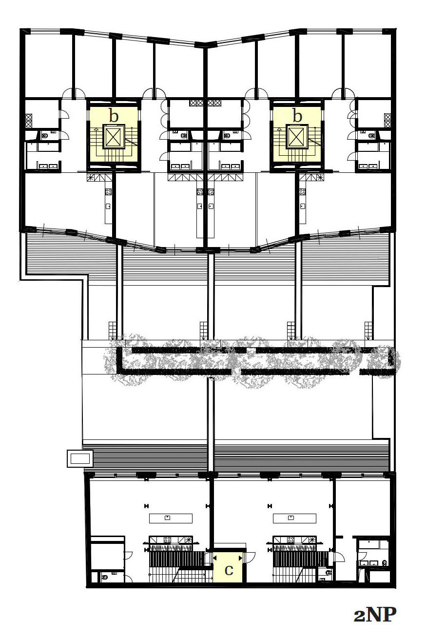
Proluku po tiskárně Legiografie v pražských Vršovicích "zaplnil" bytový dům od atelieru Znamení čtyř - architekti, který se při jeho návrhu inspiroval klasickými pražskými činžovními domy a motivy stylu art deco. Stavba se svým řešením přizpůsobuje okolní zástavbě složené z historizujících i modernistických bytových domů a stává se integrální součástí celého bloku. Střed uliční fasády s keramickým obkladem autoři "prolomili", čímž se rozšířil uliční prostor před vstupem - achitekti se u tohoto prvku inspirovali londýnskou budovou Florian Court ze 30. let. Sedmipodlažní budovu zakončuje ustoupené patro s terasami, jižně orientovanou fasádu směrem do vnitrobloku pak doplňují balkony - balkon patří ke každému bytu, pokud nemá vlastní přístup na terasu. V bytovém domě Sámova 12 vzniklo celkem 26 velkorysých bytů o dispozicích 2+kk až 4+kk. Do dvora pak architekti navrhli ještě dvoupatrovou vestavbu s dřevěným obkladem, která nabízí mezonetové byty. Zatravněná plocha dvoru se nachází na střeše garáží a díky silné vrstvě substrátu umožňila dokonce výsatbu stromů.
ZNAMENÍ ČTYŘ – ARCHITEKTI , 21. 10. 2020
- Ateliér: ZNAMENÍ ČTYŘ – ARCHITEKTI
- Země: Česká republika
- Realizace: 2020
- Město: Praha - Vršovice
- Datum projektu: 2010
- Realizace: 2020