
Barevně proměnlivá školka
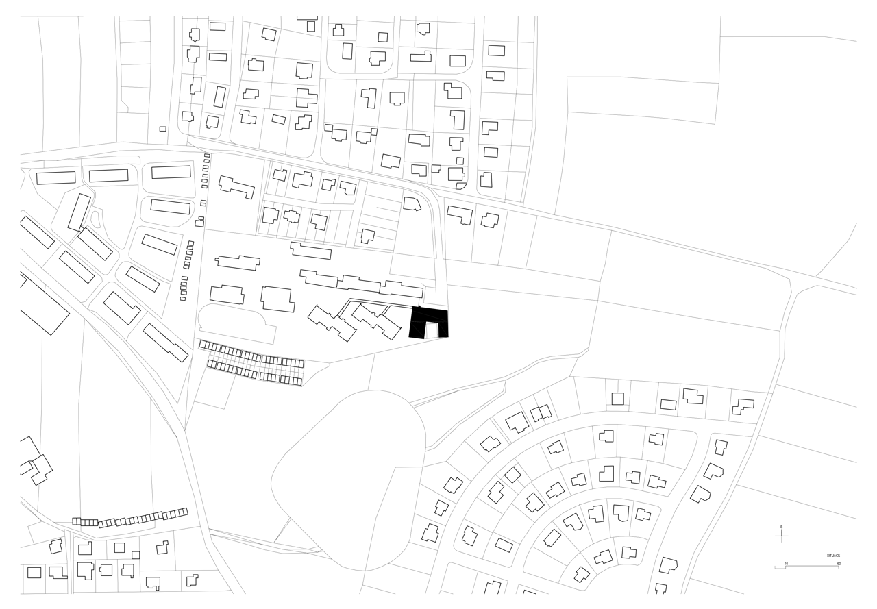
Zástavba školky z 80. let je tvořena "klasickými", uniformními pavilóny propojenými spojovacími krčky. Prostor pro novou přístavbu byl omezen z východní a jižní strany hranicí pozemku, ze západní strany stávajícím pavilonem. Tři roky stará školka je letos nominována na Českou cenu za architekturu.
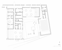
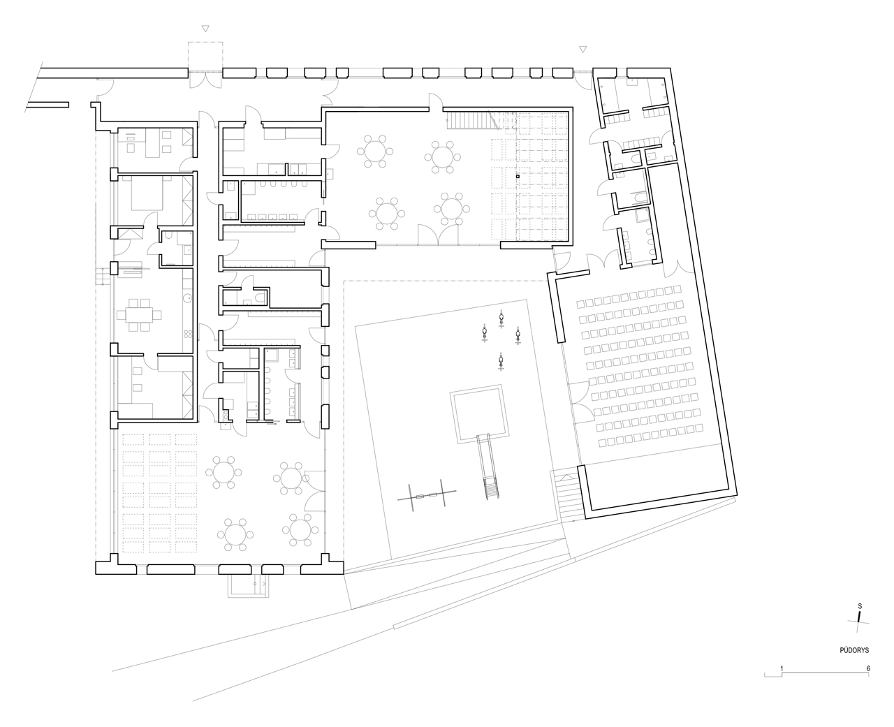
Dalším limitujícím prvkem byl byt školníka, který musel zůstat ve stávajícím pavilónu netknutý. Navržená stopa nových pavilónů a společného sálu tvoří uzavřený herní dvůr ve tvaru U obrácený na jih ke slunci a propojený se zahradou areálu. Ze severu jsme potvrdili hranici tvořenou stávající stěnou spojovací chodby a vytvořili tím předprostor školky- dvůr s parkováním. Krom úsporného prostorového plánu, byla hlavní ideou návrhu proměnlivá výška prostorů, která umožnila vytvořit siluetu stavby.
Dalším identifikačním znakem novostavby jež se stal výtvarným prvkem interiéru, jsou kruhová barevná okna rozdílných velikostí. Severní páteřní chodba, která je zároveň vstupem do školky, se tak stala jemným, barevně se proměňujícím "entrée", jež vítá každé ráno děti a příchozí. Barevnost interiéru se projevuje v odstínech podlah a v koupelnách.
Důležitým materiálem, kterým jsme chtěli polidštit nové pavilóny, bylo dřevo. Fasáda je obložena horizontálními modřínovými latěmi s různými odstupy, které dodávají jemné "vrnění" v detailu pro příchozího. Důležitým kritériem v zadání byla ekonomika stavby. Konstrukce je zděná, vnitřní omítky štukové, bílé. Z vnější strany je plášť zateplen minerální vatou, chráněnou dřevěným obkladem bez úpravy. Vytápění je napojeno na stávající plynový kotel v suterénu rekonstruovaného pavilónu.
Více k tématu
- Autoři: Martin Kožnar, Jiří Bíza, Lukáš Ballek
- Ateliér: Atelier25, ASLB
- Spolupráce: Kateřina Margoldová
- Země: Česká republika
- Město: Klecany
- Ulice, číslo: Sídliště 375
- PSČ: 250 67
- Datum projektu: 2012
- Realizace: 2014
- Zastavěná plocha: 600.00m2