Betonová přístavba ke starému domu na irském venkově ctí principy regionální architektury
Jednoduchost, tradice a důraz na přirozené stárnutí stavby. To vše se propsalo do návrhu rodinného domu Rust-ic House na irském venkově od mezinárodní architektonické kanceláře Urban Agency. Architekti se u návrhu inspirovali formou tradiční venkovské architektury. Do hornaté krajiny umístili několik tvarově jednoduchých objektů, které propojuje podzemní chodba. Celým projektem prostupuje myšlenka přirozeného stárnutí architektury, kterou symbolicky ztělesňuje „zkorodovaná“ fasáda z betonu s přidanými pigmenty rzi.
Tereza Hůrská , 30. 8. 2018
Urban Agency je architektonická kancelář sídlící v Kodani, Dublinu a francouzském Lyonu, která se zabývá především problematikou současného urbanismu a navrhováním větších veřejných staveb nejen na evropském kontinentu, ale také v Asii či severní Africe. Jejich portfolio však obsahuje i stavby menšího měřítka, mezi které spadá také projekt Rust-ic House – rodinný dům zasazený do krajiny irského venkova, která svou divokostí uchvátila ateliér podobně, jako uchvátila irské impresionistické umělce v 19. století.
Malebnost jedinečného prostředí projekt nijak nenarušil, snad právě naopak. Architekti navázali na stávající stavení a nový objekt proto zasadili do svažitého terénu. Přitom dokázali maximálně využít výhledů na jezero Carragh, které se nachází v údolí místní hornaté přírody.
Více k tématu
INSPIRACE V TRADICI
Důvod, proč Rust-ic House působí ve svém prostředí natolik přirozeně a nenuceně, ovšem nespočívá jen v citlivé práci s terénem. V celém návrhu je na první pohled patrná silná inspirace tradiční irskou venkovskou architekturou, z níž architekti do svého projektu převzali historií prověřené kvality. Stávající budova prošla důkladnou rekonstrukcí a její jednoduchý a funkční tvar se stal vzorem pro nově vzniklé přístavby.
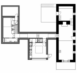
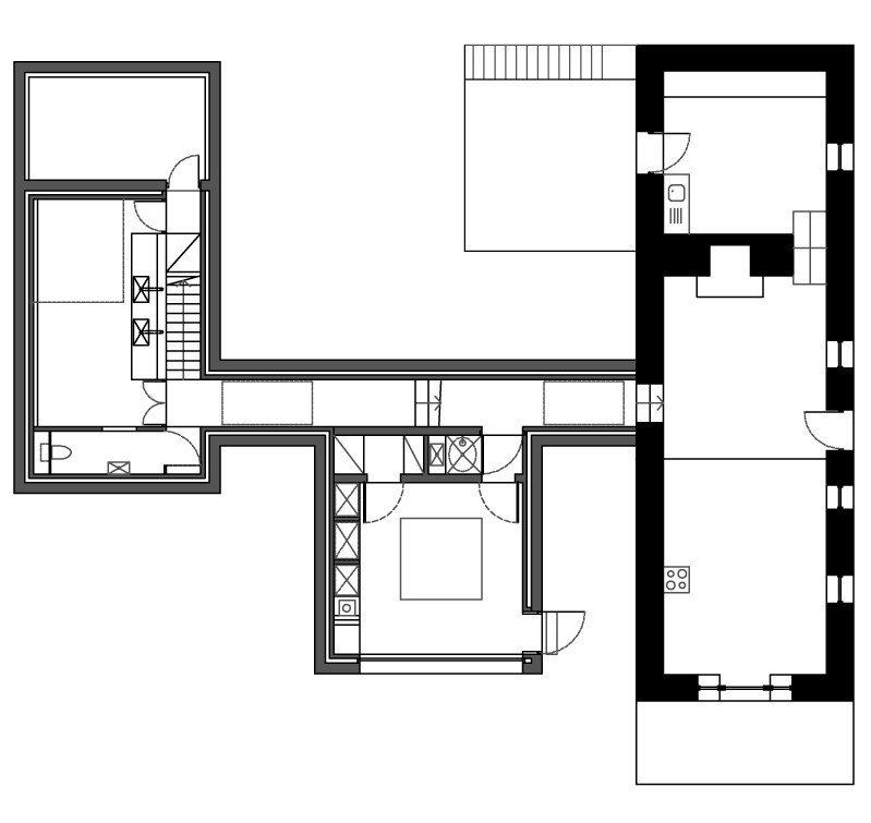
Rust-ic House je zajímavým příkladem, jak při zachování tradičních postupů dosáhnout dnešního standardu bydlení. Rodinný dům tvoří soubor tří budov, z nichž každá plní konkrétní funkci. Starší objekt byl renovován na obývací pokoj v rustikálním stylu, ve zbylých dvou částech je umístěna jižně orientovaná ložnice s velkorysým výhledem na jezero a netradičně řešená koupelna. Všechny tři části jsou navzájem propojené podzemní chodbou. Architekti využili svažitého terénu a některé místnosti umístili také pod úroveň terénu. Jednotlivé domy bylo díky tomu možno více „výškově rozehrát“, aniž by byla narušena jejich jednotná forma.
ZACHYCENÁ PROMĚNLIVOST ARCHITEKTURY
Třetím heslem, které vedle jednoduchosti a tradice vystihuje charakter projektu, je přirozené stárnutí. Nekonečný běh času byl totiž v případě Rust-ic House povýšen na důležitý architektonický element. Jednou z inspirací při navrhování byla pro architekty díla brazilského umělce Joseho Bachary, který při tvorbě často cíleně využívá oxidace kovů. Běžně nežádoucí proces se tak mění v netradiční umělecký prvek.
Podobný princip „nucené koroze“ aplikovalo Urban Agency také ve svém návrhu. Nové přístavby tvoří beton, do nějž jsou přidány pigmenty rzi, které se způsobují neobvyklý „kovový“ vzhled stavby. Proměnlivé rezivění fasád se stalo nositelem myšlenky přirozeného stárnutí nejen daného materiálu, ale celé stavby.
Síla návrhu Rus-ic House nespočívá v originální formě, ale v pokorném přijetí tradice. Studiu Urban Agency tak vytvořilo nadčasové dílo, které svým řešením přirozeně ctí divokou okolní přírodu i historické kvality regionální architektury.
Tento článek vznikl za podpory společnosti Českomoravský beton v rámci popularizace tématu "Beton v architektuře".
Českomoravský beton, a. s., je holdingovou společností, která prostřednictvím vlastních betonáren a dceřiných společností dodává transportbeton v široké škále pevnostních tříd a druhů na území České republiky a Slovenska. Skupina, jejíž vznik spadá do počátku 90. let minulého století, v současné době provozuje 85 nově postavených nebo zrekonstruovaných betonáren, které mají zavedený systém managementu kvality, systém managementu hospodaření s energií a splňují nejpřísnější ekologická kritéria. Celá skupina – holdingová společnost a její dceřiné společnosti, historicky označované ve svém názvu TBG – vystupuje na trhu ČR pod jednou společnou obchodní značkou Českomoravský beton.
- Ateliér: Urban Agency
- Země: Irsko
- Realizace: 2018
- Užitná plocha: 120.00m2
- Materiál: beton



