Byty sahající až do ulice
Bytový komplex Neppert Gardens je dalším reprezentantem Francie v ceně Miese van der Rohe a zároveň dalším projektem sociálního bydlení. Autoři návrhu dosáhli díky efektivně rozvržené konstrukci domu nadstandardní velikosti bytů, kterou dále umocnili velkými terasami, jež byty prodlužují do ulic a fungují jako jejich plnohodnotná součást. Pojďme se podívat dál.
Lacaton & Vassal architectes , 21. 3. 2017
Projekt bytových domů se nachází ve městě Mulhouse, u oblíbené čtvrti v blízkosti centra, kde momentálně probíhají renovační práce. V komplexu je 59 nájemních sociálních bytů a jedná se o stavební záměr subjektu SOMCO, jenž projekty sociálního bydlení provozuje. Naším cílem bylo nabídnout komfortní bydlení bez toho, aby se velkorysost celého pojetí podepsala na zvýšeném nájmu.
3 bloky o 20 příbytcích se rozkládají podél dvou ulic a dávají vzniknout malé společné zahradě uprostřed.
Kvalita poskytovaného bydlení je hlavním cílem projektu. Naším záměrem bylo postavit byty s větší než běžnou rozlohou; nabídnout přechodné prostory, jež by byly odlišné od tradičně pojatých místností a rozšiřovaly možnosti svého využití; posunout kolektivní bydlení na úroveň bydlení individuálního a vnějšími prostory rozšířit interiéry bytů; a konečně optimalizovat počty bytů vzhledem ke kapacitě pozemku tak, aby mohly být byty co největší a celý projekt zároveň ekonomicky rentabilní.
Cílem investora bylo poskytnout inovativní typizované bydlení, jež by se zároveň lišilo od běžného standardu, vytvořit různorodé byty a společenský mix, který by nabídl atraktivní nemovitost v lokalitě, která stojí poněkud stranou zájmu.
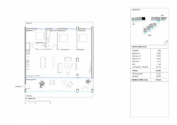
Typizované byty T1 až T5 nabízí různé dispozice včetně mezonetů. Zároveň mají až dvakrát větší plochu, než bývá obvyklé, to vše při zachování nízkého rozpočtu. Velkorysost bytů i jejich množství byly umožněny kombinací různých typologií, efektivním přístupem ke konstrukčnímu systému i účelnou spoluprací s developerem projektu. Všechny byty mají dvojí orientaci. Obýváky (s jihovýchodní orientací a 10metrovou skleněnou stěnou) se otvírají do balkonu, který lze během zimy kompletně uzavřít. Zimní zahrady, v létě otevřené, jsou definujícím prvkem bioklimatického systému a zdrojem přirozeného větrání. Obývákům poskytují extra prostor, cosi jako soukromou zahradu.
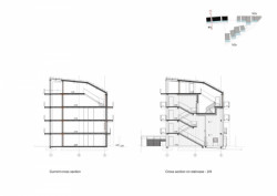
Efektivnost při navrhování konstrukce umožnila stavbu rozměrných prostor bez nutnosti navýšit cenu projektu. 3 z budov byly navrženy podle totožného konstrukčního principu, založeného na užití betonových trámu a prefabrikovaných panelů. Síť o hraně 10 m bez jakýchkoliv mezičlánků definuje šířku bytů a umožňuje vznik velkorysých prostor, neomezovaných konstrukčními prvky.
Fasády jsou z posuvných skleněných stěn, byly opatřeny tepelnými závěsy a stínidly. Zimní zahradu je možno na zimu uzavřít s pomocí hliníkových okenic pokrytých průhledným polykarbonátem. Okenice lze zároveň odsunout na jednu stranu balkónu. Zimní zahrada potom tvoří přechodný nevytápěný prostor, jenž je podstatný pro celkovou tepelnou úsporu. Zároveň vytváří přirozený nárazník proti teplotám exteriéru, zlepšuje a zmírňuje klima uvnitř.
Více k tématu
- Ateliér: Lacaton & Vassal architectes, Lacaton & Vassal architectes
- Autoři: Jean Philippe Vassal, Anne Lacaton
- Země: Francie
- Město: Mulhouse
- Realizace: 2015
- Užitná plocha: 8 820.00m<sup>2</sup>
- Plocha pozemku: 3 580.00m<sup>2</sup>
- Poznámka: foto © Philippe Ruault