Děti jí přezdívají žlutý krokodýl. Školka v Polsku zaujme nízkoenergetickým řešením a promyšleným prostorovým konceptem

Dospělý člověk na v ní vidí moderní stavbu s netradiční žlutou konstrukcí. Děti jí láskyplně přezdívají „žlutý krokodýl“. Nízkouhlíková a nízkoenergetická školka s názvem KIDO stojí v Lodžském vojvodství v Polsku. Architekti namísto technických vychytávek vsadili na jednoduchost a promyšlenou stavební fyziku. Pro nejmenší uživatele navrhli krásný bezbariérový prostor s všudypřítomným dřevem.
AGROP NOVA a. s. (NOVATOP) , 16. 10. 2023 / Advertorial
Budova školky má hybridní konstrukční systém, první patro je z betonu a cihel, zatímco pro druhé podlaží architekti zvolili dřevo v podobě CLT. Tým projektantů hledal technologii umožňující rychlou výstavbu. Školka totiž měla být otevřena prvního září s novým školním rokem a na její výstavbu tak zbývalo málo času.
Více k tématu
Hotovo za 9 měsíců
Od zahájení návrhu po uvedení do provozu uběhlo třičtvrtě roku, přičemž samotná realizace trvala 6 měsíců a z toho montáž prefabrikované dřevěné části jen 2 týdny. Takže zatímco na staveništi rostly základy a první nadzemní podlaží, ve výrobě se usilovně připravovala prefabrikovaná dřevěná konstrukce. Projektanti zvolili české CLT panely NOVATOP a podle jejich slov to bylo na základě předchozích zkušeností a hned ze tří důvodů: rychlost a přesnost montáže, skvělý estetický efekt v interiéru a v neposlední řadě, jelikož se jedná o přírodní materiál, ideální do prostředí škol. I když v Polsku platí velmi striktní požární předpisy, zvolené CLT prvky vyhověly požární odolnosti až 60 minut, a navíc byly ošetřeny nátěrem proti šíření požáru.

„Technologie CLT je nyní u nás i ve světě velice populární a umožňuje vytvořit krásný dřevěný prostor, na rozdíl od rámových konstrukcí, které jsou často v interiéru obloženy OSB nebo sádrokartonem. Jsme rádi za doporučení, a hlavně technickou podporu projektantů, kteří s Novatopem měli už zkušenosti. Těší nás, že se naplnila i očekávání investora na 100 %,“ říká spoluautorka projektu Dorota Sibińska z ateliéru XYstudio a dodává: „Za mě největším bonusem této školky je kouzlo přírodního materiálu. Děti obklopuje všudypřítomná textura dřeva, které voní, je příjemné na dotek, čisté, zdravotně nezávadné a velice estetické.“
Školka byla uvedena do provozu podle plánu v srpnu 2021. Kapacita 150 dětí byla okamžitě naplněná a pro enormní zájem ze strany rodičů byl stejnými autory zhotovený projekt druhé etapy, která má přijít na řadu v roce 2023. Náklady na stavbu byly obdobné jako u stavby tradiční technologií, nicméně doba realizace, zejména dokončení, byla výrazně kratší. „Tento faktor by mohl být rozhodující i pro další podobné projekty, a věřím, že bude inspirací i pro ty české,“poznamenává Jiří Oslizlo, předseda představenstva společnosti vyrábějící NOVATOP. „Na několika školách u nás jsme se v posledních letech již konstrukčně podíleli a předpokládám,“ doplňuje, „že se udržitelné budovy brzy stanou naprostým standardem i ve veřejném sektoru a budou brány v úvahu empiricky ověřené skutečnosti, že dřevo jako stavební materiál působí na zdravotní stav člověka pozitivně a zlepšuje jeho tělesné a duševní zdraví.“

Jednoduché technické řešení
V technickém řešení padla volba na gravitační větrání. Ve větracích otvorech ve stěnách jsou umístěny ohřívače, které přihřívají vzduch ve chvíli, kdy venkovní teplota klesne pod 5 °C a hybridní nástavce na komínech podporují komínový efekt. Spodní podlaží je větráno s rekuperací. Zvoleno bylo teplovodní podlahové vytápění, které prostor rovnoměrně temperuje. Vzduchotěsná konstrukce z přírodních materiálů už prošla jak parným létem, tak mrazivou zimou a jasně dokázala, že umí udržet příjemné klima. Ploché střechy spodního podlaží – na části kde není umístěno druhé patro – pokrývá extenzivní zeleň.
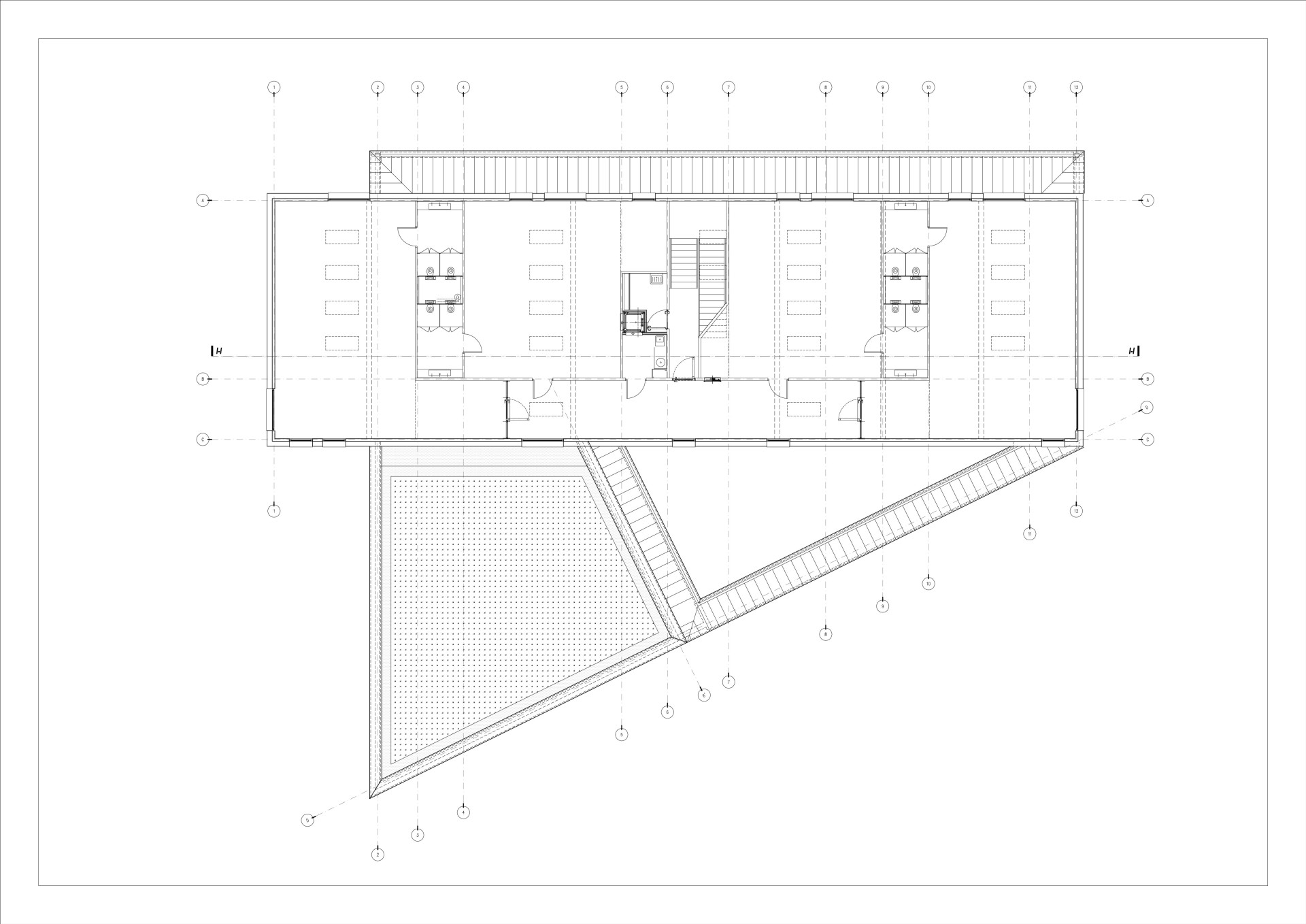
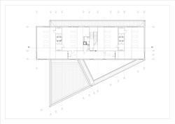
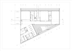
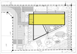
Školka má přibližně 1000 metrů čtverečních s prostornými místnostmi a na trojúhelníkovém pozemku disponuje velkou zahradou. Půdorysné schéma je prosté – vstupuje se do velké haly, kde jsou umístěny šatny pro větší děti. Po levé straně se nachází otevřená multifunkční místnost o rozloze téměř 70 m², jejímž velkým bonusem je díky posuvným celostěnným panelům propojení se zahradou. Ve venkovním areálu je navržená trojúhelníková terasa se zelení a pískovištěm. Od hlavních prostorů stranou se nachází administrativní část a sociální zázemí. Z haly se vchází do chodby, vedoucí ke schodišti, malé kuchyni a dvěma třídám včetně šaten pro nejmenší děti. V druhém nadzemním podlaží se nachází čtyři prostorné prosluněné místnosti se sociálním zázemím. Budova má velká okna, některé prvky konstrukce jsou snížené a přizpůsobené malým dětem. Na pozemku se podařilo zachránit několik vzrostlých stromů, další pomalu dorůstají. Pro materiál venkovního mobiliáře bylo opět v co nejširší míře zvoleno dřevo.

Zdraví dětí na prvním místě
Děti tráví ve školce přibližně jednu třetinu z měsíce, druhou třetinu dne prospí a zbytek času bývají s rodiči. Místo, kde si budou celé dny hrát, by mělo být nanejvýš příjemné a odpovídající jejich potřebám. Je také prokázáno, že pobyt v přírodě příznivě ovlivňuje lidský organismus a podle dostupných studií v ní trávíme bohužel už pouze 6 % z celkového dne. Podle těchto dat lidské tělo vykazuje lepší výsledky ve chvíli, kdy je kontakt s přírodou zajištěn i “zprostředkovaně”. Právě proto se doporučuje do všech interiérů zařazovat co nejvíce přírodních materiálů, květin a viditelně dřevěných povrchů. „Dřevěné materiály umožňují vytvořit prostředí, které podporuje koncentraci a zdravý vývoj dětí. Správně upravené dřevo je bezpečné a hypoalergenní, což je důležité zejména u dětí s respiračními problémy a alergiemi. Navíc mohou být dřevěné konstrukce navrženy tak, aby podporovaly různé formy hry, pohybu a interakce, což posiluje kreativní myšlení a vyvolává pozitivní emoční reakce dětí, čímž se zvyšuje jejich zájem o prostředí školky a odbourávají se tak možné stresové faktory," doplňuje Jiří Oslizlo a zároveň zdůrazňuje, že: "NOVATOP vyrábíme s maximálním ohledem na životní prostředí. Pro mě osobně není stavění ze dřeva nutný kompromis, ale prestiž a společenská odpovědnost, způsob, jak zabezpečit kvalitu života i pro budoucí generace.“
- Autoři: Filip Domaszczyński, Dorota Sibińska, Marta Nowosielska
- Ateliér: xystudio
- Země: Polsko
- Projekt: 2021
- Realizace: 2021
- Kapacita: 150 dětí
- Užitná plocha: 1000 m²