Proměna historické budovy statku má nastartovat proměnu malé středočeské obce
Ateliér OBJEKTOR ARCHITEKTI zrekonstruoval historickou budovu statku v malé obci nedaleko hradu Okoře. Vznikla tu kavárna s rozlehlým dvorem, který má do jisté míry suplovat zanedbaný a nefunkční prostor návsi.
Adéla Vaculíková , 30. 11. 2022
V malé obci Noutonice severozápadně od Prahy se mohou pochlubit novou příjemnou kavárnou U Žlabu s otevřeným dvorem. Vesnici v blízkosti Okoře doposud chybělo místo pro setkávání jeho obyvatel, ale i turistů směřujících třeba na nedaleký hrad. To se rozhodl změnit majitel budovy historického statku, který se obrátil na ateliér OBJEKTOR ARCHITEKTI, aby společně iniciovali další rozvoj obce.
Jednoduchá stavba s klasicizujícím výrazem se nachází v jednom z rohů místní návsi. Ta dnes však postrádá jakýkoliv život místních obyvatel. V přízemí dvojpodlažní budovy vznikl střídmý kavárenský prostor, který se přizpůsobuje původní dispozici budovy. Architekti totiž do uspořádání vnitřních prostor historického objektu nijak výrazně nezasáhli. „Tektonicky působivé prostory jsme očistili od nánosů času. Ten se do nich pomalu vrací postupným zabydlováním interiéru svým provozovatelem,“ říkají o svém přístupu architekti ze studia OBJEKTOR ARCHITEKTI.
Více k tématu
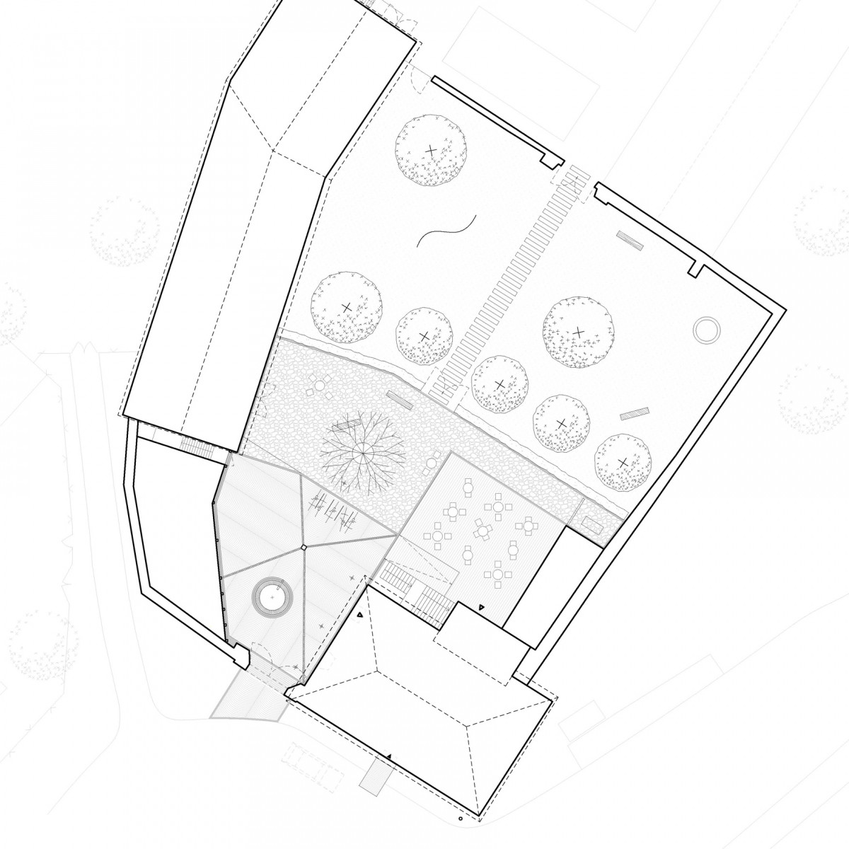
V přízemí tak vznikly dvě místnosti pro posezení, které od sebe odděluje chodba. Ta přitom prochází celým domem a ústí až do rozlehlého hospodářského dvora. Druhým vstupem do uzavřeného areálu je ještě velká brána s dvoukřídlými vraty, která rekonstrukcí prošla také. „Hlavní děj se odehrává za vraty bývalého statku, kde poloveřejný prostor supluje roli nefunkční návsi,“ vysvětlují architekti.
Samotný dvůr, kam byla umístěna prostorná terasa, je obsluhován skrze nově vybudované výdajní okno. Ačkoliv jde o prvek nový, architektům se podařilo zjistit, že už zde nějakou tradici přeci jen má. „Při zahájení stavebních prací se zjistilo, že toto okno už na místě historicky bylo. Asi je vše, jak má být,“ dodávají.

Ve dvoře také přibyla nová hmota zázemí pro zaměstnance, která dostala podobu nenápadné jednopodlažní přístavby. Vedle dřevěné terasy architekti upravili i zbytek plochy hospodářského dvora. Prostor vydláždili žulovým kamenem a do samotného středu zasadili lípu.
Realizací kavárny však práce v Noutonicích pro studio OBJEKTOR ARCHITEKTI neskončila. V budoucnosti by na adaptaci historického statku měla navázat i rekonstrukce přiléhajícího jezdeckého areálu.
- Ateliér: studio OBJEKTOR
- Autoři: Tereza Scheibová, Václav Šuba, Jakub Červenka
- Země: Česká republika
- Město: Noutonice
- Projekt: 2018
- Realizace: 2019 - 2021
- Plocha pozemku: 1200 m²
- Adresa: Noutonice 1, 252 64 Lichoceves