Dostupnými byty proti energetické chudobě. Družstevní bydlení v Barceloně inspiruje Evropu
Porota prestižní evropské Miesovy ceny za architekturu udělila vedle hlavního ocenění také cenu pro začínající architekty a architektky. V té zvítězil dřevěný bytový dům nabízející ekologické a sociálně odpovědné bydlení.
Adéla Vaculíková , 31. 7. 2022
„Družstevní bydlení La Borda vzniklo jako samoorganizovaná výstavba pro přístup k důstojnému bydlení,“ říkají o svém projektu architekti sdružení pod hlavičkou studia Lacol, kteří se stali vítězi kategorie pro začínající architekty a architektky Mies van der Rohe Award 2022.
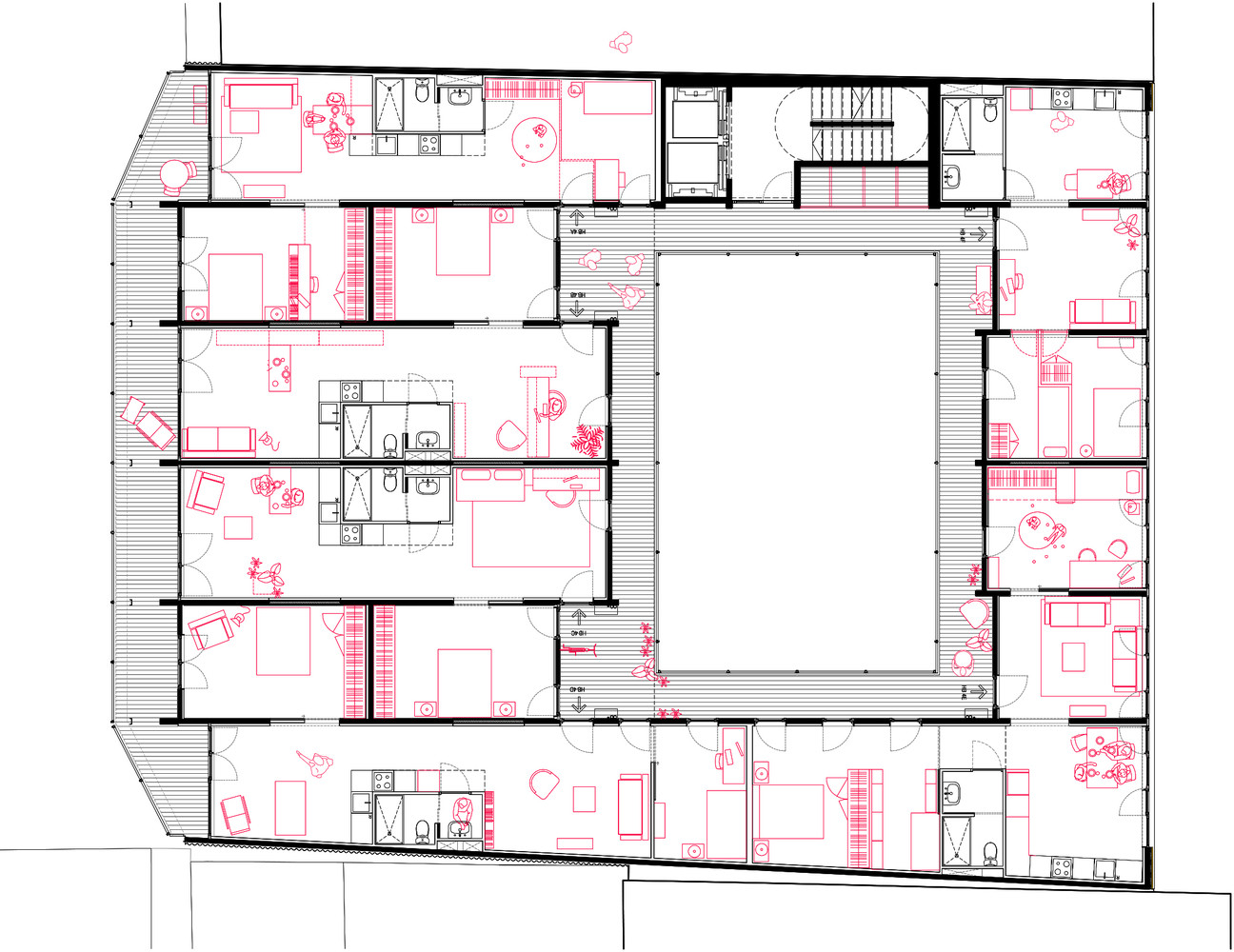
Bytový dům La Borda v sobě kombinuje výhody komunitního bydlení, ale zároveň nezapomíná na důležitost soukromí obyvatel. Skupina 14 architektů ho realizovala v industriální čtvrti Barcelony – na okraji bývalého průmyslového areálu Can Batlló, který kdysi vlastnili stavebníci slavného činžovního domu Casa Batlló od Antoni Gaudího. Zajímavostí celého počinu je, že Lacol není jen tak obyčejné studio – jde totiž o volné sdružení architektů a inženýrů, kteří spojili své síly a nyní se v Barceloně snaží budovat nové komunitní infrastruktury. Sami si proto neříkají ateliér, ale „architektonické družstvo“.
Více k tématu
Myšlenka vytvořit v Can Batlló bytové družstvo se zrodila již roku 2012. Jeho cílem bylo realizovat bytový dům, který svým obyvatelům nabídne vše potřebné, zároveň ale bude finančně dostupný. „Prioritou družstva bylo vytvořit budovu s minimálním dopadem na životní prostředí, a to jak při její výstavbě, tak po celou dobu její životnosti. Dalším základním cílem bylo eliminovat možnost energetické chudoby jejích uživatelů, kterou někteří z nich trpěli kvůli vysokým nákladům na energie,“ vysvětlují architektonická skupina Lacol.
Mladí architekti z Barcelony si při navrhování domu položili cíl funkčně zaktualizovat program sociálního bydlení. V šestipodlažním domě se tak vedle 28 bytových jednotek nachází velkorysé společné prostory, které podporují trávení volného času ve vetší komunitě. Jde o množství víceúčelových prostorů, velké jídelny nebo otevřené terasy.

Bytový dům La Borda se k městu obrací jednoduchou fasádou s balkony stíněnými výraznými oranžovými roletami – dává tak jednoznačně najevo, že se v něm nachází soukromé bytové jednotky. Všechny společné prostory se naopak soustředí do ústředního čtvercového dvora. Právě do něj se obrací pavlače, které zpřístupňují jednotlivé byty. Místy je však nahrazují větší terasy, které mohou obyvatelé domu používat podle svého gusta. Architekti komunitní život záměrně umístili do dvora, který je účinně odstíněný a zároveň zastřešený tak, aby se dal používat skutečně pořád. Jak sami říkají, vydali se vlastně velmi ověřenou cestou, domy v jižní a střední části Španělska totiž takovéto dvory mají velmi často.
„Cílem projektu bylo nově definovat program kmunitního bydlení a zároveň vytvořit udržitelnou stavbu, do jejíhož centra by byla zahrnuta účast uživatelů,“ popisují hlavní myšlenku celé realizace architekti. „Projekt se nachází na veřejném pozemku určeném pro sociální bydlení s nájemní smlouvou na 75 let.“ Nynější obyvatelé tak v bytech mohou strávit celý život, navíc mají status družstevníků, takže se o budovu i sami starají.

Sociální odpovědnost jde v realizaci ruku v ruce s odpovědností enviromentální a ekonomickou. Celý dům je realizován z CLT panelů – tedy panelů z křížem lepeného dřeva. „Jedná se o lehký, vysoce kvalitní a v životním prostředí obnovitelný materiál, který umožňuje uzavírání cyklů, na rozdíl od běžných stavebních materiálů, jako je ocel nebo beton, jejichž výroba má velmi vysoké energetické náklady a nejsou obnovitelné,“ dodávají architekti. Bytový dům stojící západně od centra Barcelony se také se svými šesti podlažími stal nejvyšší dřevěnou budovou ve Španělsku.
Všechny tyto aspekty na stavbě ocenili i porotci ceny Miese van der Rohe, kteří ve svém hodnocení napsali: „Ačkoli ve sféře bytové výstavby dominují makroekonomické zájmy, v tomto případě byl model postaven na spoluvlastnictví a společné správě sdílených zdrojů a kapacit.“
Bytový dům La Borda nebyl jediným projektem řešícím otázky sociálního bydlení, který v letošním ročníku evropské ceny za architekturu sklidil velký úspěch. Mezi sedm finalistů se probojovalo i španělské studio Peris+Toral Arquitectes, které realizovalo sociální bytový dům rovněž v Barceloně.
- Ateliér: Lacol
- Země: Španělsko
- Město: Barcelona
- Realizace: 2018