Obytný soubor s dotovanými byty zaujme keramickým obkladem i pojetím veřejného prostoru
Do postupně se rozrůstající čtvrti v belgických Antverpách usadil místní ateliér b-architecten dva podlouhlé domy se čtyřiceti dotovanými byty. Kromě návrhu samotných domů kladli architekti důraz na řešení veřejného prostoru pro trávení volného času.
Tereza Staňková , 8. 2. 2022
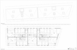
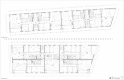
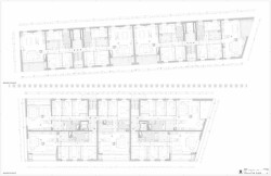
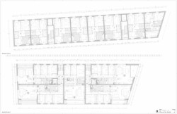
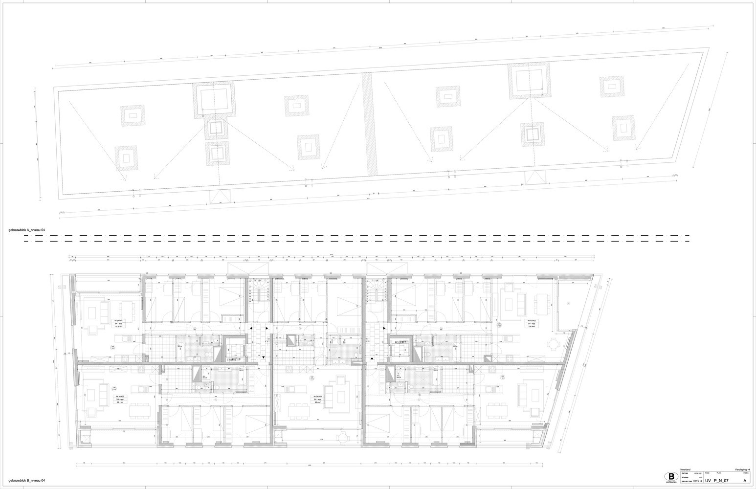
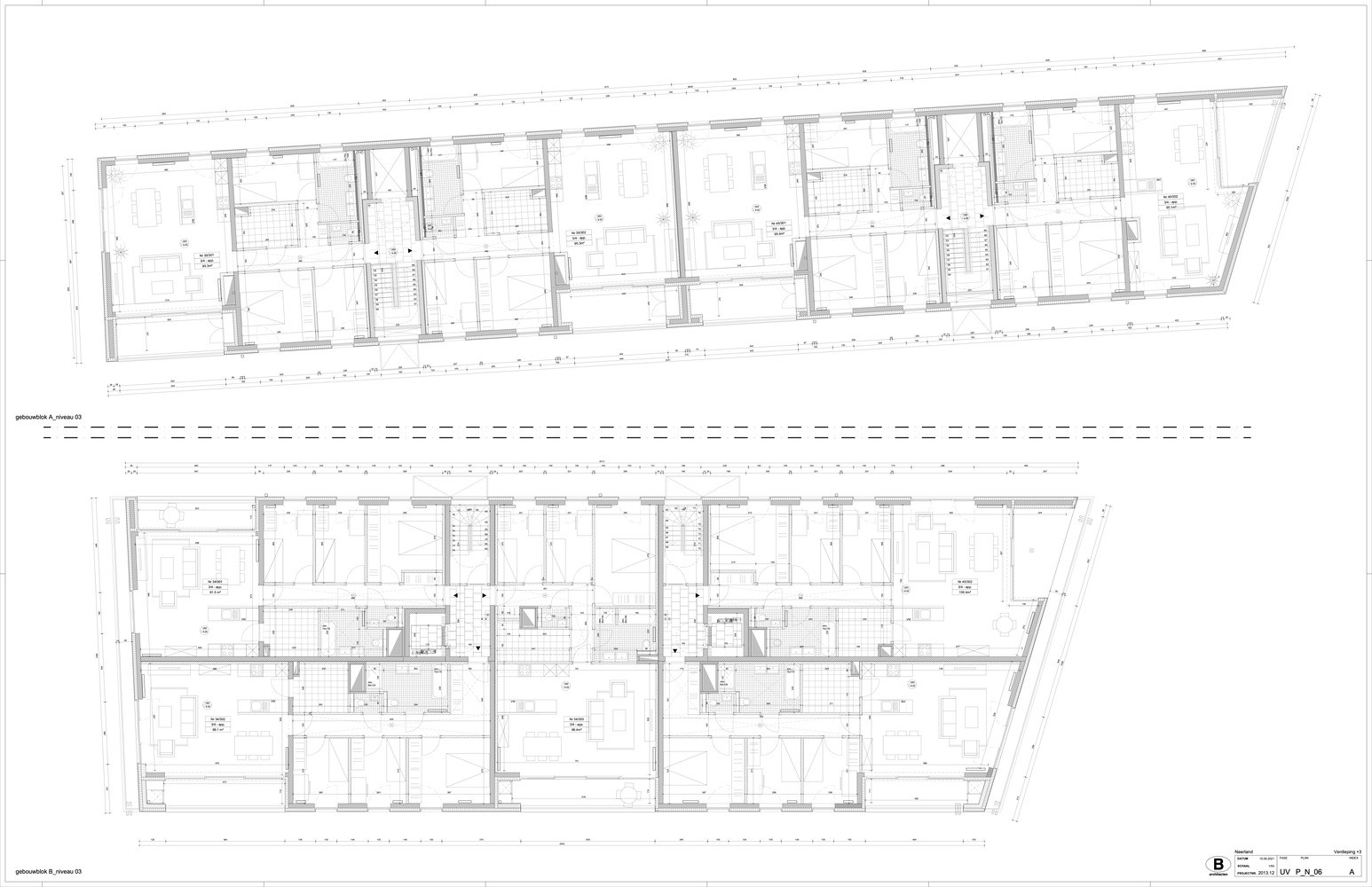
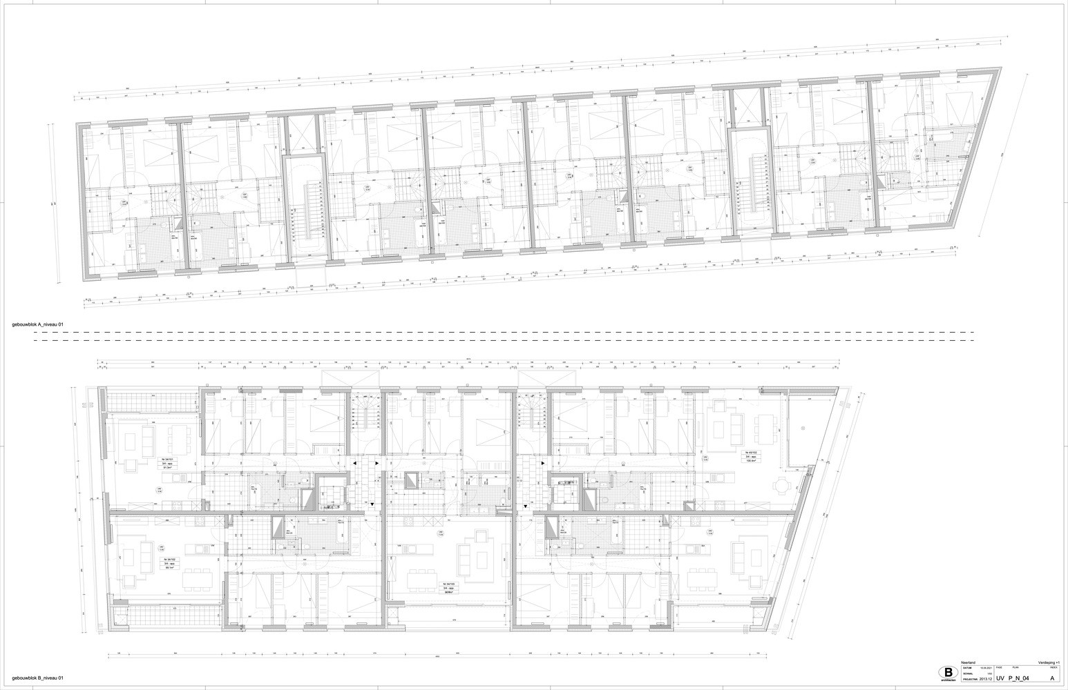
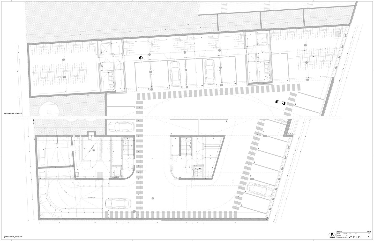
Obytný komplex Neerland se nachází ve stejnojmenné oblasti s parkem v Antverpách a jeho návrh vyšel z architektonické soutěže. Obě dvě budovy jsou na pozemku o 7262 metrech čtverečních orientovány od severu k jihu. Díky této orientaci belgický ateliér b-architecten docílil toho, aby okna a terasy jednotlivých bytů otevíraly východním a západním směrem.

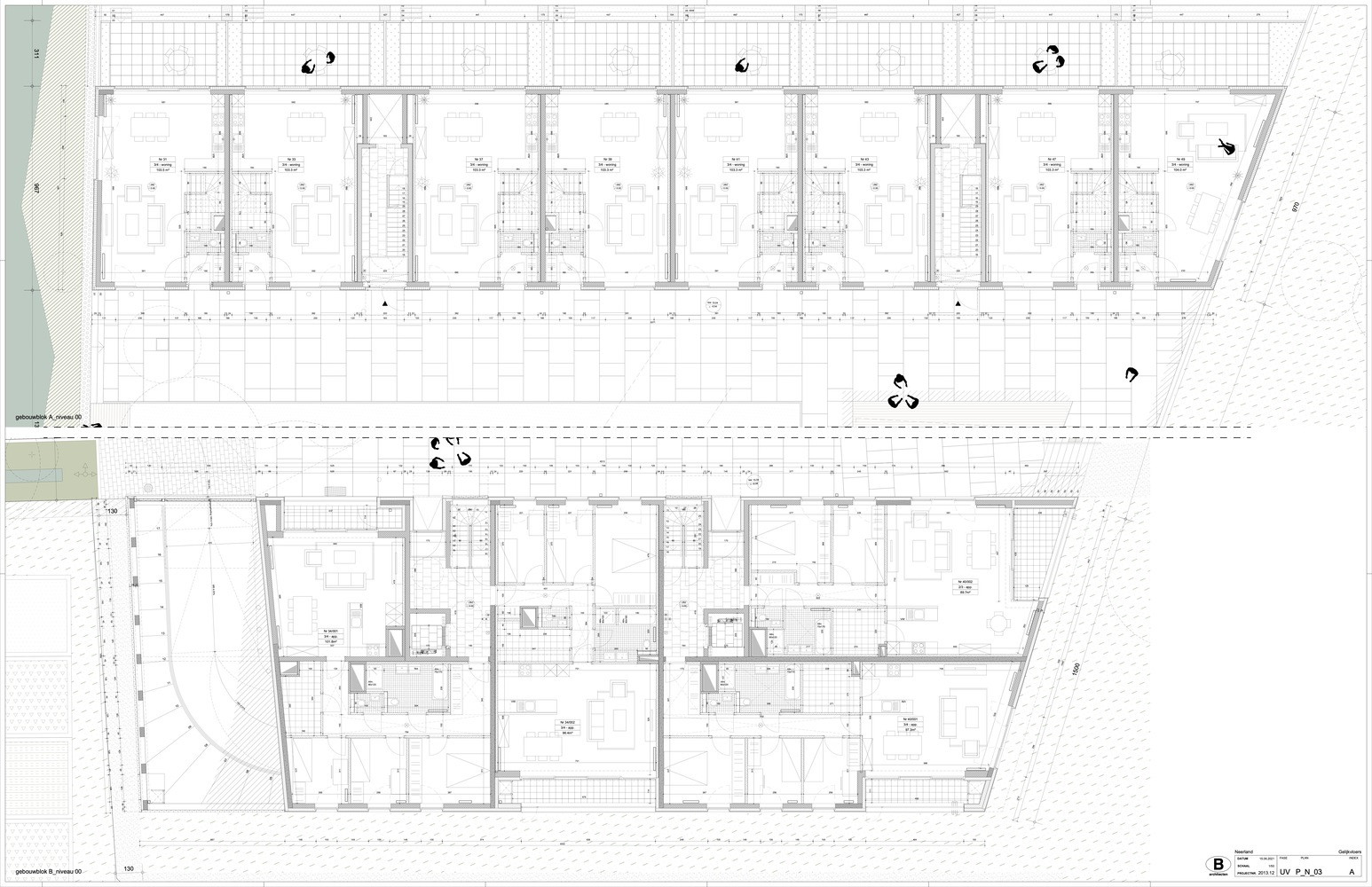
Vyšší pětipodlažní budova v sobě skrývá celkem 24 bytů. Dispozice jednotlivých bytů se s výjimkou přízemí napříč patry nemění. Na každém patře se rozkládá celkem 5 bytů s ložnicí, dvěma jednolůžkovýma pokoji, obytným prostorem, kuchyní a koupelnou. Budovou se lze snadno pohybovat díky dvěma hlavním schodištěm, na které navazují také dva výtahy.
Více k tématu
Druhá, nižší budova pro své obyvatele nabízí o něco velkorysejší bydlení. Architekti zde navrhli 8 mezonetových bytů se soukromými zahradami a 8 bytů s velkými terasami. Zaparkovat svá auta mohou obyvatelé obou dvou domů na podzemním parkovišti, které se rozkládá pod společným vnitřním náměstím. Místo pro svá kola zde mají i cyklisté.

Pozoruhodně řešené fasády domů jsou obloženy zeleně glazovaným obkladem, který v některých částech střídají betonové panely. Světlý mentolový odstín glazury doplňují bílé detaily oken a balustrád, stejně tak jako tmavě zelené okapy.
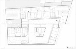
Součástí projektu je také promyšleně řešený veřejný prostor bytového souboru, kde kromě velkorysého vnitřního náměstí vznikly také plochy s různých využitím, jako je například skatepark. Okolní park pak podstatně zvyšuje kvalitu bydlení, tak aby tu obyvatelé mohli trávit svůj volný čas po celý rok.
- Ateliér: B-architecten
- Město: Antverpy
- Realizace: 2021
- Investor: SBK Arro Antwerpen cvba
- Spolupráce: karres+brands