
Dům s opalovanou fasádou vychází ze svahu hory
Na jedné straně levituje ve vzduchu, na druhé se co nejtěsněji přimyká ke skalnatému svahu, jehož atmosféru se snaží vtáhnout až do svého interiéru. Dům postavený východně od kanadského Montréalu byste přesto mohli snadno přehlédnout – jeho tmavá fasáda se totiž doslova schovává v hustém, a pro Kanadu příznačném, javorovém lese.
EARCH.CZ , 1. 12. 2017
Relativně nízká hora Mount Shefford v kanadské provincii Québec s vrcholem ve výšce okolo 550 metrů nad mořem kdysi bývala oblíbenou lyžařskou destinací. Zimní středisko je už přes deset let uzavřeno, přesto ovšem do této lokality jezdí kvůli krásné kanadské přírodě za rekreací mnoho lidí. Ze stejného důvodu se klienti žijící trvale v nedalekém Montréalu rozhodli vybudovat si vlastní víkendovou oázu přímo na svahu této hory.
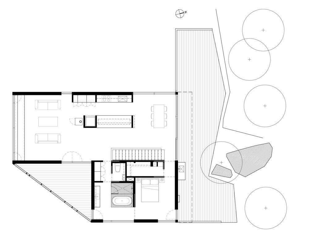
Hlavní ideou projektu bylo od začátku pokusit se nový objekt co nejvíce integrovat do hornaté krajiny. Dům měl s terénem vytvořit jeden celek. Tento záměr se povedl přesně z poloviny. Severní strana stavby klonící se ke svahu horu Mount Shefford doslova objímá. Paluba terasy přesně kopíruje terén, ustupuje velkému balvanu a bez dělícího zábradlí končí prakticky zaříznutá do svahu.
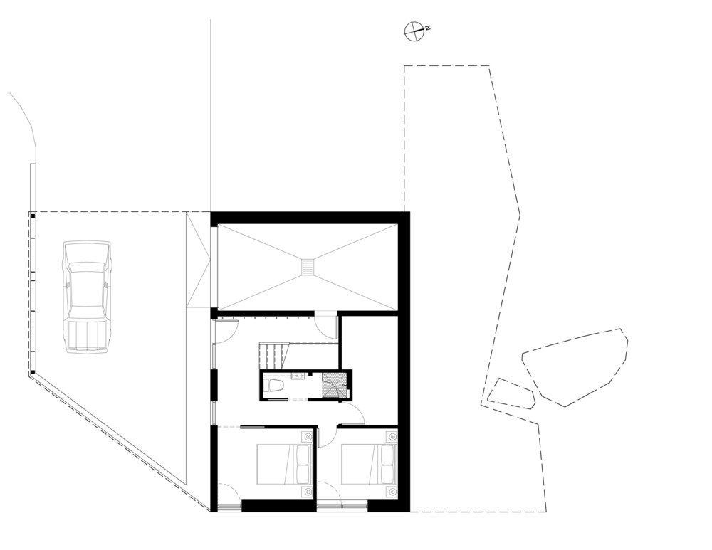
Na tuto palubu pak přímo navazuje samotný dům s tmavou fasádou z opalovaného dřeva, který kopíruje svažitý pozemek. Hmota stavby se směrem dolů zvětšuje, přesně v polovině ovšem dochází k vynechání spodní části a dále pokračuje už jen vysunuté horní podlaží, které na vzdálenější straně od svahu nadnáší sada úzkých podpěr. V této volné zastřešené části sloužící třeba jako sklad dřeva nebo parkovací stání je umístěn také hlavní vchod do domu. V přízemí přiléhajícím ke svahu se nachází dvojice ložnic s vlastním sociálním zázemím.
Po dřevěném schodišti se pak dostaneme do hlavní obytné části rozprostírající se na horním podlaží. Společný prostor kuchyně, jídelny a obýváku táhnoucí se na délku celého patra nepřetíná jediná stěna, což zajišťuje úzký kontakt s vnějším prostředím. Na severní straně pak tento prostor přímo přechází do venkovní terasy, na jižní se pak díky vyvýšení celé konstrukce otevírá výhled do korun okolních stromů. Interiér je obložen světlým laminovaným dřevem. Velmi intimním prostorem je pak trojúhelníková veranda s celoprosklenou výhledovou stěnou.
Více k tématu
- Ateliér: Atelier Général
- Země: Kanada
- Město: Shefford
- Realizace: 2017
- Užitná plocha: 215.00m2