Empatický rodinný dům od ateliéru Pavla Hniličky zapadá do kontextu okrajové části Prahy
Rodinný dům od ateliéru Pavel Hnilička Architects+Planners zapadá do kontextu původní zástavby okrajové části Prahy svým hmotovým členěním i tradiční siluetou. Realizace přesto nezapře svůj současný výraz, který architekti rozvinuli také v interiérech.
Adéla Vaculíková , 14. 7. 2022
Navázat a odlišit se
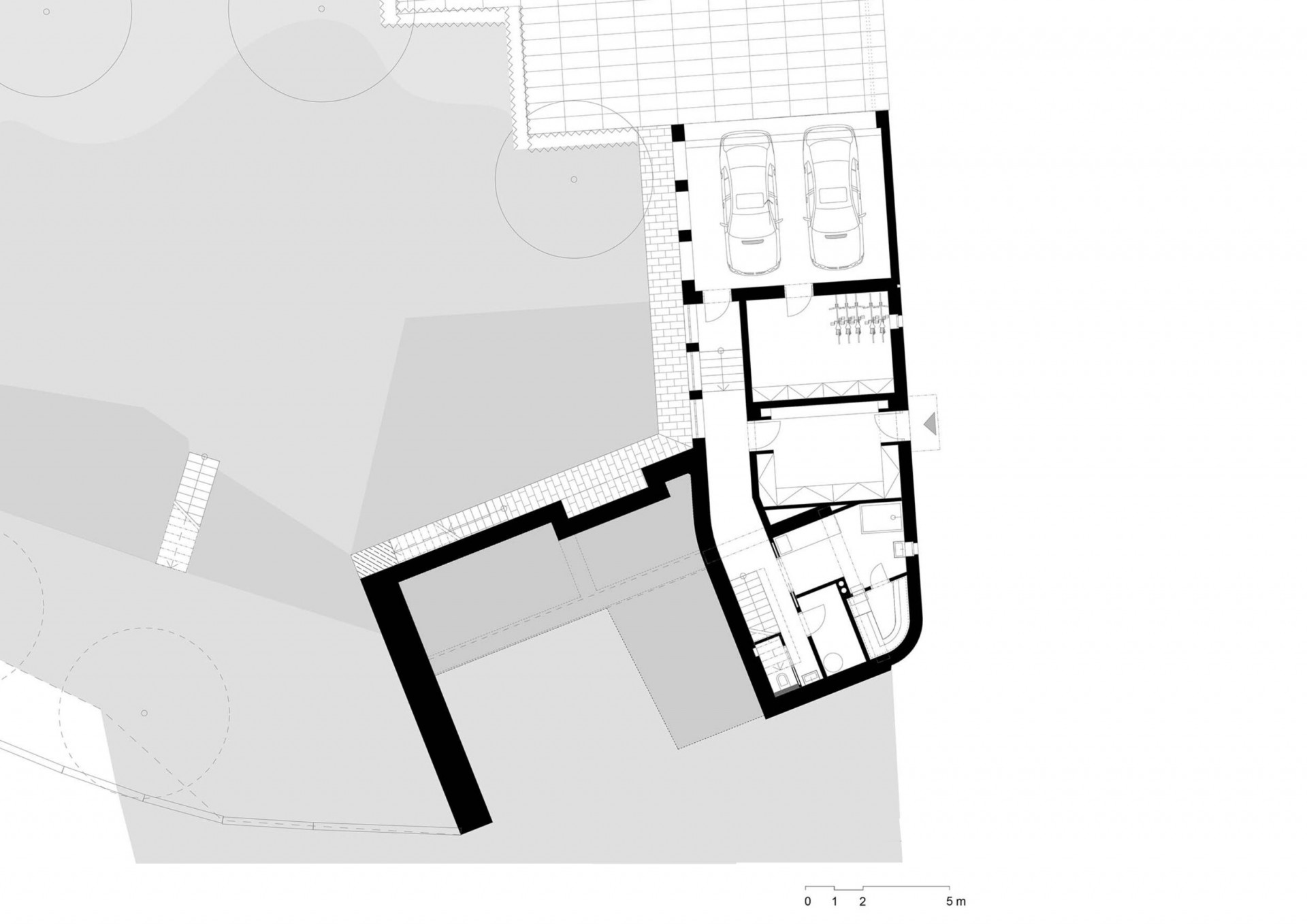
Novostavba rodinného domu v Praze Liboci podle návrhu ateliéru Pavel Hnilička Architects+Planners vyrostla na místě původního zchátralého objektu. Navázala přitom na jeho půdorys a stejně jako její předchůdce vymezila pozemek z uliční strany definovaný křižovatkou tří cest. „Půdorys sleduje stopu původního domu umístěného na hraně pozemku v podobě písmene L,“ přibližují návrh architekti.
Tím, že se průčelí hlavní hmoty stavby nachází na stejném místě, nijak se nezměnily ani vztahy při pohledu z ulic. Před domem tak zůstal vymezený trojúhelný prostor, jakási piazzetta, která na místě existovala již dříve.
Více k tématu
Moderně tradiční dům
Při pohledu na nový rodinný dům v Liboci jistě zaujme jeho hmotové členění. Architekti ve svém návrhu navázali na terénní nerovnosti a dům nechali „vyrůst“ přímo z místa. Celek pak působí, jako by byl složený ze dvou propojených objektů. Kratší křídlo ve svažité ulici Pod Hvězdou je totiž nižší než hlavní dvoupodlažní hmota směřující ke křižovatce. „Kratší průčelí je tvořeno podlažím vystupujícím ze svažitého terénu s jednopodlažní nástavbou,“ dodávají k řešení architekti.
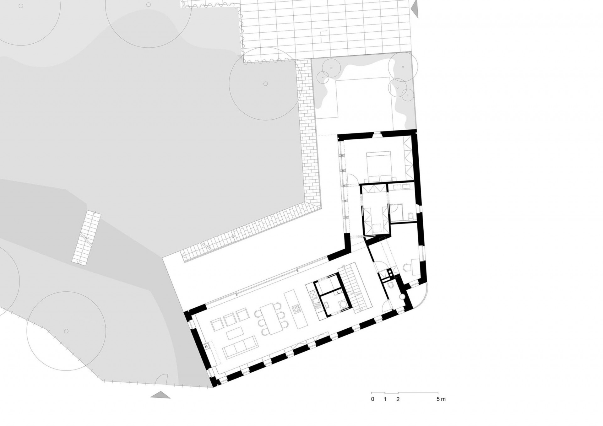
Nový dům do kontextu místa zapadá také svou tradiční siluetou, kterou domodelovává stanová střecha s tmavou krytinou. Při pohledu ze zahrady však stavba odhaluje svůj moderní základ. Přízemí domu se otevírá skrze velké prosklené plochy posuvných oken a obytné prostory se tak vizuálně propojují s venkovní terasou. Z tohoto pohledu také nejlépe vyznívá, jakým způsobem nový dům pracuje s členitým terénem místa.

Interiéry
V hlavní hmotě domu se nachází obývací pokoj propojený s kuchyní, v nižším křídle zase hlavní ložnice. Další podlaží jsou s hlavními prostory propojená schodištěm, které prochází středem domu. „Po schodišti nahoru jsou přístupné ložnice dětí. Směrem dolů se pak nachází částečně podsklepená vstupní část domu se šatnou, technickým zázemím a krytým garážovým stáním,“ popisují architekti dispoziční řešení.
Interiéry architekti ladili převážně do světlých barev s dřevěnými akcenty. Stěnám na struktuře dodaly studené betonové stěrky vzájemně se doplňující s teplými tóny dřevěných podlah. Ty v technických a vstupních prostorách vystřídalo odolné teraco.

Rodinný dům od ateliéru Pavel Hnilička Architects+Planners se připojil ke stále sílící tendenci současné architektury, která si bere za cíl empaticky vstoupit do jinak zastavěného prostředí. Podobnou cestou se vydala například realizace rodinného domu ve starých Jinonicích od Ateliéru 111 architekti, která si odnesla několik nominací na prestižní architektonické ceny, nebo jednopodlažní dům na slovenském venkově od ateliéru ROAR, o němž jsme psali nedávno.
- Ateliér: Pavel Hnilička Architects+Planners
- Autoři: Pavel Hnilička, Ondřej Smetana
- Země: Česká republika
- Město: Praha - Liboc
- Projekt: 2016
- Realizace: 2019
- Zastavěná plocha: 172 m²
- Hrubá podlažní plocha: 403 m²
- Čistá podlažní plocha: 260 m²
- Obestavěný prostor: 1510 m³