Architektura / bytové domy

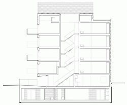
Fasádu i střechu bytového domu tvoří jednotný perforovaný plášť z cihel

Londýnské studio Amin Taha + Groupwork postavili moderní obytný dům, který se svým výrazem přibližuje klasickým anglickým domům se sedlovou střechou a všudypřítomnou cihlou. Projekt získal nominaci na Stirlingovu cenu pro rok 2017.

EARCH.CZ , 3. 11. 2017

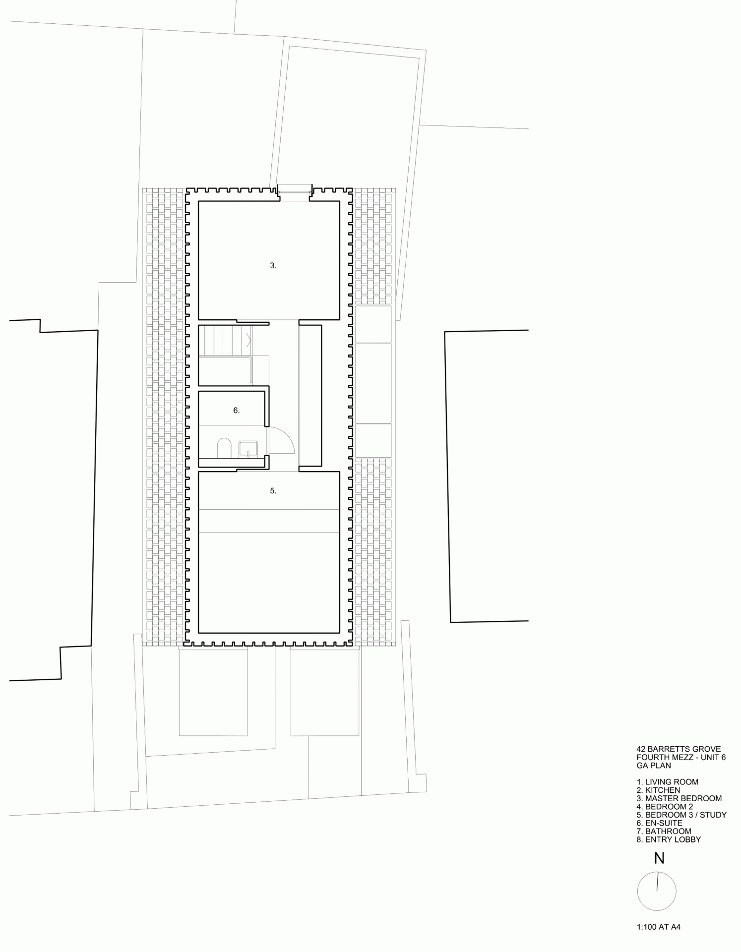
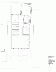
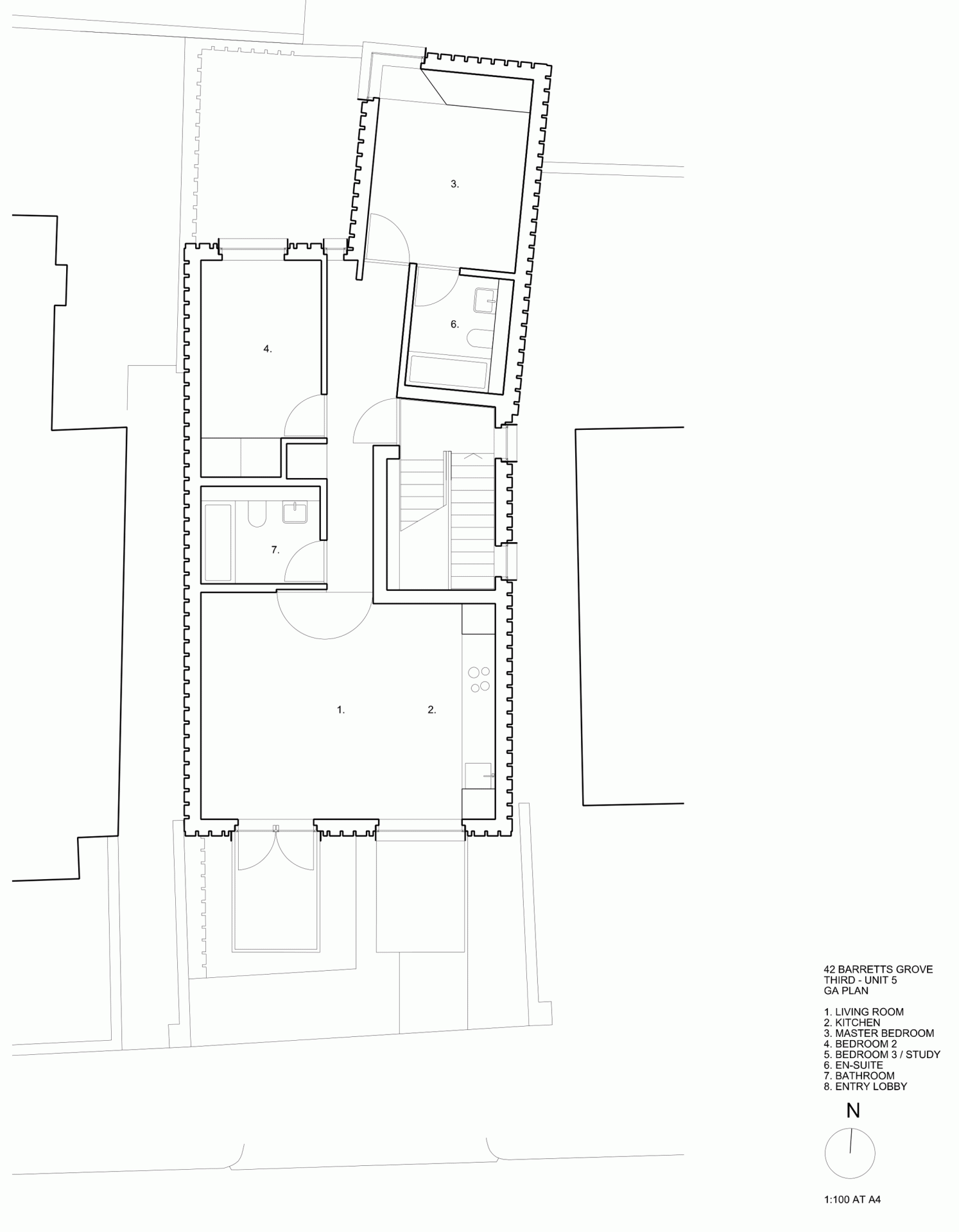
Barrets Grove je archetypální ulice z viktoriánské doby v severní části Londýna, kterou tvoří dvoupodlažní cihlové řadové domy. Později v ní přibyly samostatné bytové domy, škola se sedlovou střechou a kostel s kamenným obkladem. Nový přírůstek ulice stojící uprostřed těchto pozdějších staveb nabízí celkem šest bytových jednotek: tři dvoupokojové byty, dva třípokojové a jednu garsoniéru.

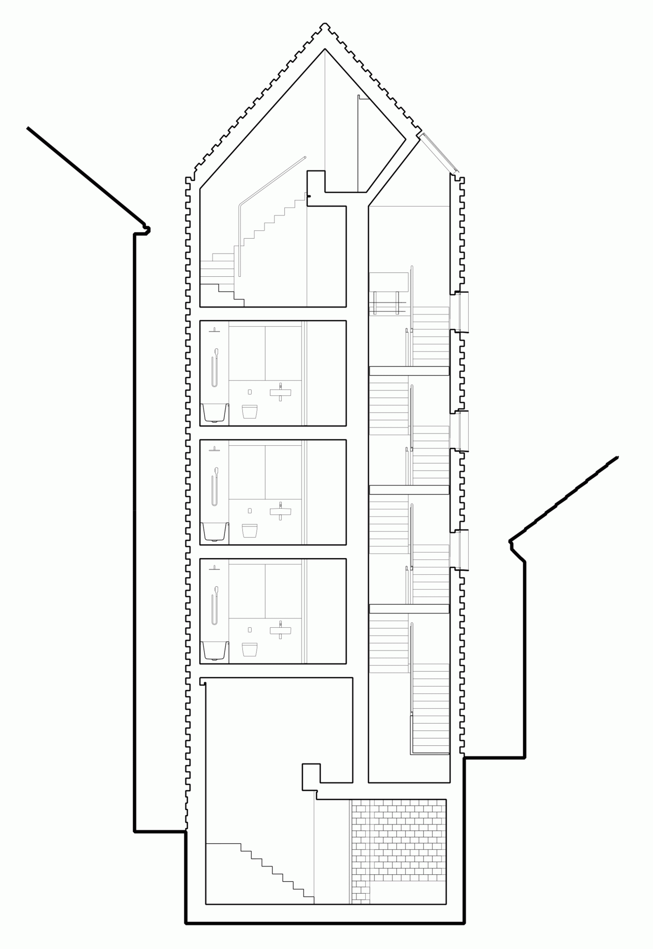
Londýnské architektonické studio Amin Taha + Groupwork Architects využilo pro projekt trojici přírodních materiálů: cihly na obklad celé fasády domu, proutí pro velké vykonzolované balkony u každého bytu a dřevo pro obložení stěn, podlah i stropů interiéru. Vysoká štíhlá hmota přiléhá pak zadní částí ke společnému dvoru.

Architekti zvolili dřevěnou konstrukci stavby (cross-laminated timber) tvořenou vrstvami laminovaných dřevěných profilů – v podstatě se jedná o ekologičtější variantu železobetonu. Konstrukci pak pouze přikrývá samonosný plášť z cihel, který chrání konstrukci před deštěm a zároveň představuje vizuální spojnici mezi domem a jeho okolím.

Pozornost si zaslouží i jednotlivé nenápadné detaily – krásné je například zasazení ocelových okenních rámů, jednotný plášť fasády i střechy bez přesahu nebo skryté okapy.

  • Ateliér: Amin Taha + Groupwork
  • Země: Velká Británie
  • Realizace: 2016
  • Město: Londýn
  • Realizace: 2016
  • Plocha pozemku: 635.00m2
  • Materiál: cihla
  • autor: EARCH.CZ *
  • publikováno: * 3. 11. 2017
  • zdroj: * Riba Awards

Mohlo by vás zajímat

Generální partner
Hlavní partneři