Architektura / industriální a technické stavby

Horská bouda zářící jako maják

„Maják“ ve Fagarašských horách vyrostl v krajině krásné i nebezpečné zároveň. Bouda poskytuje přístřešek výletníkům a zároveň se vyrovnává s extrémními klimatickými podmínkami ve svém okolí. K její stavbě přitom bylo zapotřebí přesně jednoho architektonického týmu a jednoho vrtulníku.

Marius Miclaus , 27. 2. 2017

O tom, co znamená přijmout nabídku na vybudování horského přístřešku ve výšce 2100 m a s omezeným rozpočtem, jsme zpočátku měli jen velmi mlhavou představu. A to jsme ještě požádali o to, abychom ji mohli vybudovat vlastními silami. Na základě desetileté zkušenosti se studentskými workshopy v platformě Sky Hill jsme si přitom přišli připravení dost.

Předmětem studie byl maják u plesa Călțun v rumunských Fagarašských horách. Při navrhování stavby bylo třeba vzít zřetel na všechny možné rizika a aspekty: na její zamýšlený transport na místo helikoptérou, který se stal určujícím prvkem designu stavby (bylo třeba více jak 4hodinového rozhovoru s piloty, abychom si vyjasnili technologie přepravy a umístění projektu); na způsob realizace v extrémních přírodních podmínkách; bylo třeba pečlivé volby materiálů, určených pro stavbu na tak delikátním místě; a konečně zvážení naší pozice… naší nadmořské pozice… Každý, kdo se projektu účastnil, se z této krajní zkušenosti měl co naučit. A každá chyba moha znamenat selhání… tlak byl nesmírný.

Vzhledem k rozpočtu, umístění a době (říjen) jsme se ve věcech konstrukce rozhodli spolehnout na energii dobrovolníků a na lehké, ale zároveň dostatečné bytelné materiály pro více jak hodinový transport stavby helikoptérou, to vše s pečlivou koordinací příprav. Naším cílem byl maják v horách, který by navrhl i vlastnoručně postavil jeden tým lidí. A náš tým svého cíle dosáhl.

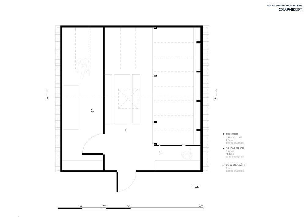
Smyslem stavby bylo poskytnout nocleh pro až 19 výletníků a místnost pro první pomoc a záchranářský tým se třemi místy. Oblast patří k těm částem Rumunska, kde se ročně přihodí jedno z největších množství nehod a úrazů. Umístění novostavby se oproti původnímu 40 let starému přístřešku liší, hlavně z důvodu ochrany plesa před znečištěním a z čistě funkčních důvodů (nyní je v okolí i dost místa pro případné nouzové přistání helikoptéry). Zároveň stojí v závětří, chráněná před větry vanoucími z Caltunského údolí.

Fotovoltaické panely poskytují turistické stavbě energetickou nezávislost. Jsou umístěné na střeše, u paty věže, a v interiérech po celý den rozehrávají světelné představení. Objekt sám o sobě tak funguje jako světelné znamení, jako signál či maják…

Jako materiál byly zvoleny CLT panely, jelikož se vyznačují hned několika příhodnými vlastnostmi – vydrží tíhu silné vrstvy sněhu, ve srovnání se svou robustností jsou relativně lehké, mají přátelský a pohledově příjemný povrch a v neposlední řadě i úžasnou dřevěnou vůni. Dynamický design tvaru stavby je uzpůsoben místním silným větrům a barvy pokryvu z hliníkových plátů se zase inspirovaly barvami všudypřítomných lišejníků.

  • autor: Marius Miclaus *
  • publikováno: * 27. 2. 2017
  • zdroj: * Mies van der Rohe Award

Mohlo by vás zajímat

Generální partner
Hlavní partneři