
Odpočívadlo s výhledem na fjordy
Dokonce i odpočívadlo u parkoviště se může stát turistickou událostí, jak o tom svědčí subtilní turistická stezka při norském ostrůvku Edhusøya. Ten je součástí oblíbené pobřežní vyhlídkové trasy a zároveň v blízkosti ikonického mostu Storseisundet, díky čemuž na něj proudí davy turistů. Architekti potom dostali za úkol vybudovat zde pouze parkoviště, okružní cestu a nějaké ty záchody – výsledkem je ale finalista ceny Miese van der Rohe.
Ghilardi+Hellsten Arkitekter , 15. 3. 2017
Atlantická turistická cesta na západním pobřeží Norska, otevřená roku 1989, je dnes jednou z nejnavštěvovanějších skandinávských destinací. Ostrůvek Edhusøya se stal díky své blízkosti k ikonickému mostu Storseisundet oblíbeným cílem turistů téměř okamžitě po jejím otevření.
Projekt architektů spočívá v integraci vyvýšené stezky, parkoviště a menší provozní budovy do jediného infrastrukturního zařízení. Cestujícímu autem nabízí pohodlnou pěší procházku kolem ostrova, odkud se naskýtají panoramatické pohledy a místa k posezení a kontemplaci. Fakt, že 700 m dlouhá stezka je na vyvýšené konstrukci, znemožňuje přímý kontakt mezi návštěvníkem a přírodou. Propustná mostovka naproti tomu umožňuje větru i vodě, aby pronikaly skrze celou konstrukci a vyživovaly floru pod ní. Zároveň se tím stezka udržuje suchá a celoročně přístupná.
Návrh stezky kolem ostrůvku Edhusøya vychází z její dopravní funkce a nechává ji vlnit kolem jejího přirozeného prostředí, přičemž si vypůjčuje postupy a techniky známé z námořnictví. Geometrie stezky reaguje na možnosti a omezení terénu komplexem trojrozměrných křivek, jež jsou na míru celkové topografii, to vše s maximálním stoupáním kolem 6 %. Turistické služby byly umístěny v rámci pěší infrastruktury a nabízejí úkryt před nepříznivým počasím, informační kiosek a záchody. Jejich 150metrová fasáda zároveň zadržuje auta na plácku, který se díky prostorově úspornému provedení stavby uvolnil. Rozmístění oken se nechalo inspirovat místní rybářskou tradicí, jež si libuje v abstraktních vyobrazeních sledích hejn.
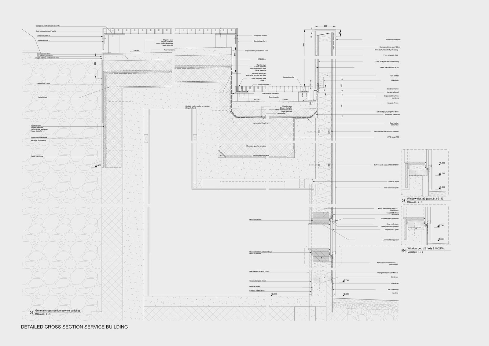
S ohledem na celkovou odlehlost, drsné podnebí a celoroční intenzivní užívání jsou všechny materiály a technická řešení projektu bezúdržbová a s nominální trvanlivostí až 50 let. Konstrukce stezky je z prefabrikátů z nerezové oceli a funguje jako skládačka; jako systém zásuvných částí, které je možno sestavit a rozebrat na místě s pomocí běžně dostupného nářadí. Díky tomu mohly být přesně navržené části namontovány až na místě a bez nutnosti sváření, jež by mohlo vést ke korozím.
Mostovka byla vyrobena z prefabrikátů běžně dostupných na ropných plošinách. Je pojata jako modulární systém, který pasuje na konstrukci pod ním a jehož příčné spáry byly vyřezány až namístě. Plášť fasády kiosku turistických služeb byl vyroben z lehkých kompozitních panelů a vyřezán CNC frézou, díky čemuž vznikl onen precizní dekor v rybím vzoru. Zábradlí je též z nerezové oceli, geometrie madla kopíruje výšku mezi stezkou a terénem podél celé cesty. Její profil a výškové rozdíly tak prochází přímo rukou a hmatem návštěvníka.
Více k tématu
- Autoři: Ellen Hellsten, Franco Ghilardi, Erik Stenman
- Ateliér: Ghilardi+Hellsten Arkitekter, Ghilardi+Hellsten Arkitekter
- Země: Norsko
- Realizace: 2015
- Poznámka: foto © Roland Halbe, Rolf Ørjan Høgseth