
I na okrajích měst mohou růst kultivované bytové domy. Tři takové stojí v Praze-Kbelích
Bytové domy Bleriot v Praze-Kbelích jsou příkladem zdárné developerské výstavby. Oproti mnoha jiným nehýří divoce tvarovanými objemy a samotné fasády se neztrácí za změtí zavěšených balkonů.
EARCH.CZ , 9. 2. 2023
Tři samostatně stojící bytové domy Bleriot navrhla pražská architektonická kancelář MACHAR & TEICHMAN pro developerskou společnost REALISM Development. Ačkoliv stojí v okrajové části Prahy, konkrétně mezi kbelským a letňanským letištěm, nerezignují na městský charakter.
Více k tématu
„Snahou ateliéru bylo v rámci omezeného rozpočtu soudobé developerské výstavby vytvoření nadčasové, jednoduché a účelné architektury sloužící svým uživatelům a zároveň nabízející kvalitní prostředí sdílené zeleně,“ uvádí architekti Pavel Machar a Radek Teichman.

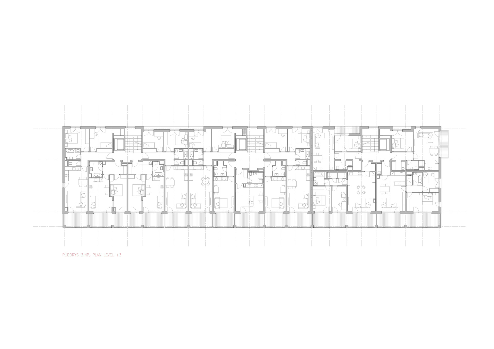
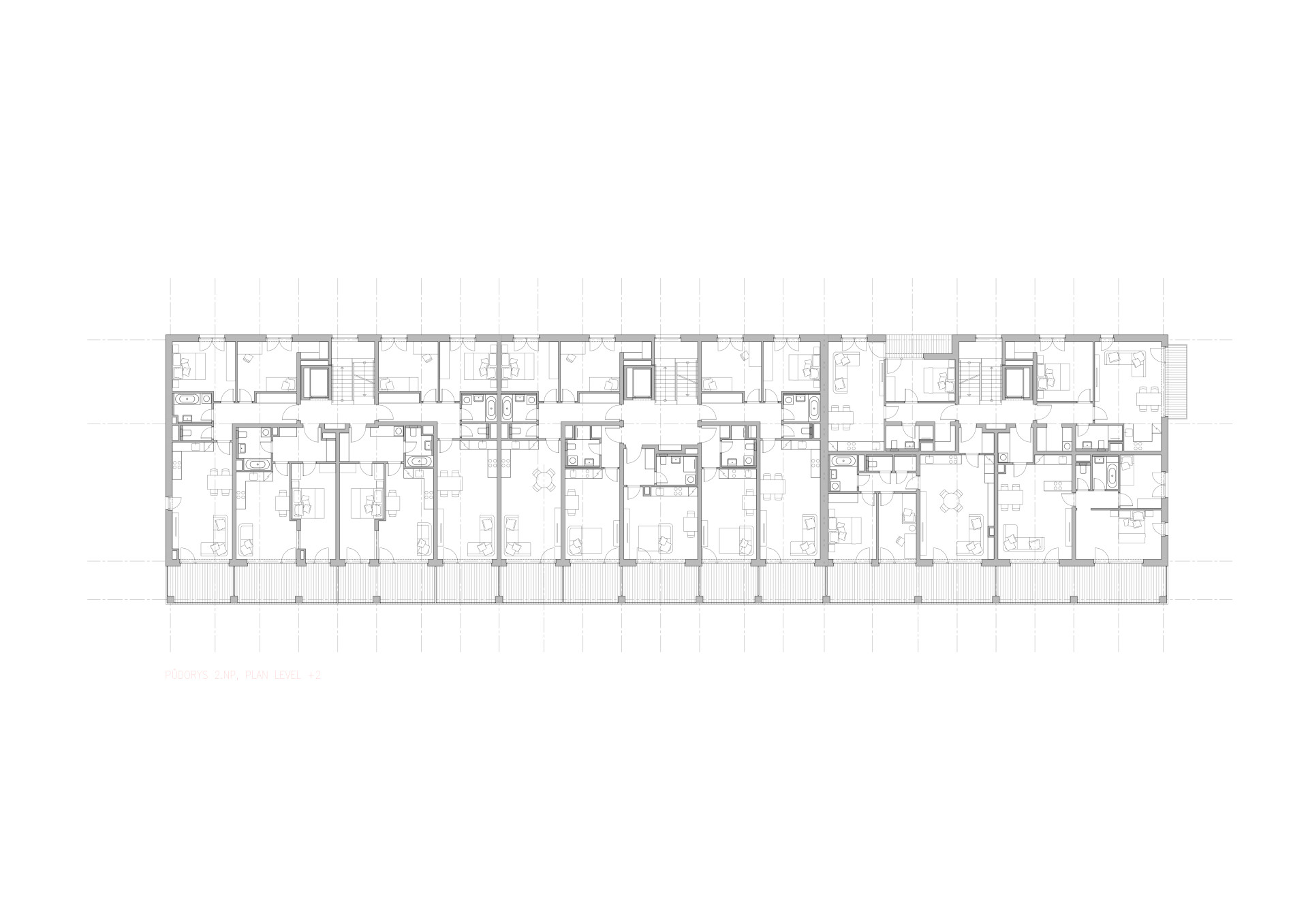
Všechny domy mají čtyři nadzemní podlaží, poslední patro bylo navrženo jako ustupující, domům tak zůstalo příjemné měřítko. Že se nejedná o vysoký bytový dům ocení i obyvatelé přízemních bytů, ke kterým jsou připojené předzahrádky. Dispozičně se v domech nacházejí byty od 1kk po 3kk, největší se rozkládají na ustoupených patrech.
„Domy jsou diferencovány doplňkovou barvou ve zlatavém, niklovém a měděném odstínu, která se uplatňuje jak na perforovaných stínících panelech západních fasád, tak na zábradlích balkonů a vnitřních schodišť veřejných prostor jednotlivých domů,“ popisují architekti.

Všechny bytové domy mají horizontálně členěné fasády. V průčelích se táhnou průběžné lodžie vtažené do hmoty staveb. Ze stran jsou domy omítnuté bílé a doplněné šedivými pruhy v místech stropních desek.
„Konstrukčně se jedná o příčný nosný systém s keramickými vyzdívkami, okna jsou dřevěná, fasáda světlá v kombinaci s ručně drážkovanými vodorovnými pásy a barevnými akcenty v rámci ustoupených podlaží, kde vznikají velkorysé terasy střešních bytů,“ dodávají architekti. Za realizaci bytových domů Bleriot obdržela kancelář MACHAR & TEICHMAN cenu společnosti Central Group za inovativní přístup k řešení nového bydlení v rámci České ceny za architekturu 2022.
- Autoři: Pavel Machar, Radek Teichman
- Ateliér: Machar & Teichman
- Země: Česká republika
- Město: Praha
- Adresa:: Praha-Kbely
- Realizace: 2019