
Architektura
/
interiér
Jemně výstřední minimalismus
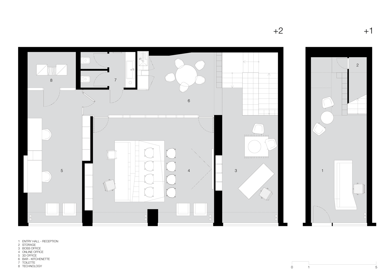
Pod tíhou známého citátu Ludwiga Miese van der Rohy by mnoho architektů podlehlo jakési výrazové askezi, ne tak plusminusarchitekti. V interiéru bratislavského studia Framehouse na jedné straně najdeme „čisté“ materiály jako beton, dřevo a kov, na druhé však neformální prvky v podobě roxorové kreace nebo originální prosklené příčky.
plusminusarchitects , 29. 7. 2016
Více k tématu
- Autoři: Maroš Fečík, Filip Kandravý
- Ateliér: plusminusarchitects
- Země: Slovensko
- Město: Bratislava - Ružinov
- Ulice, číslo: Miletičova 99/5
- PSČ: 821 02
- Datum projektu: 2015
- Realizace: 2016
- Užitná plocha: 145.00m2
- Poznámka: Foto © Maroš Fečík