
Konverze staré továrny v Rožnově pod Radhoštěm přinesla ateliéry i bydlení
Kdysi se tady barvil textil, dnes se tu scházejí ke kreativní práci i kulturnímu vyžití místní obyvatelé. Bývalý objekt barvírny se totiž díky návrhu studia henkai architekti proměnil na ateliéry, dílny a kanceláře.
EARCH.CZ , 13. 9. 2022
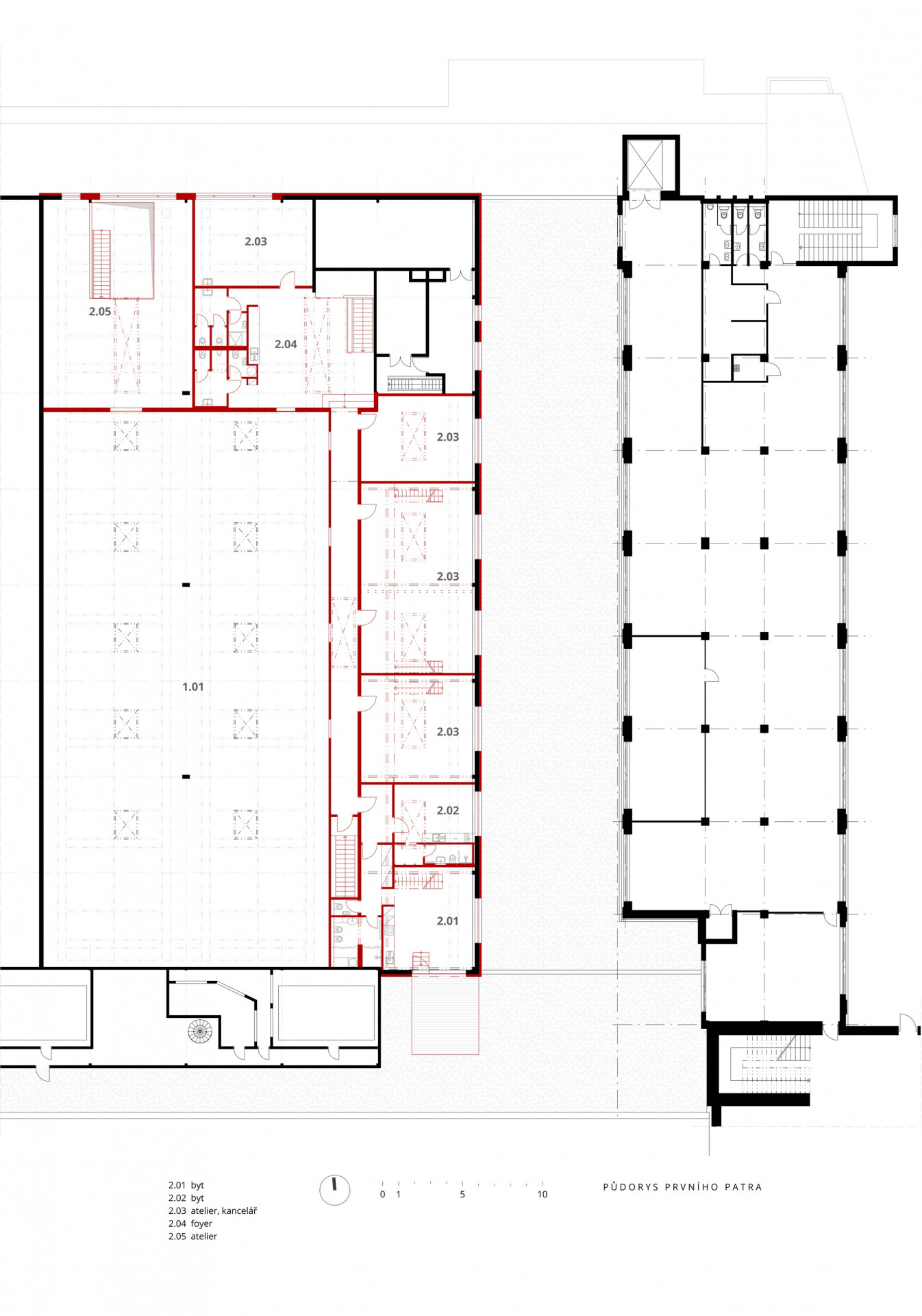
Už od roku 2014 se mohou obyvatelé beskydského městečka Rožnov pod Radhoštěm těšit z kreativního a kulturního prostoru 3. Etáž, který vznikl přestavbou jednoho patra vysloužilé textilní továrny ze 30. let minulého století. Za projektem, který do bývalého průmyslového areálu Loana přinesl ateliéry, dílny a kanceláře, stálo lokální studio Henkai architekti, které jej navrhlo pro dnešního majitele fabriky, firmu Stroza.
Se stejným investorem se architekti před pár lety pustili také do dalšího podobného záměru. Protože firmě stávající prostory již kapacitně nedostačovaly, zakoupil investor sousední halový objekt bývalé barvírny ze 70. let. „Kontinuita přístupu ke konverzi přinesla rozhodnutí, nejen rozšířit výrobu a v nevyhnutelném rozsahu upravit stávající objekt, nýbrž také využít nabízenou možnost a doplnit prostor o další funkce. Obohatit a probarvit tak život další části areálu,“ přibližují záměr architekti.
Více k tématu
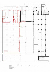
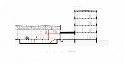
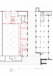
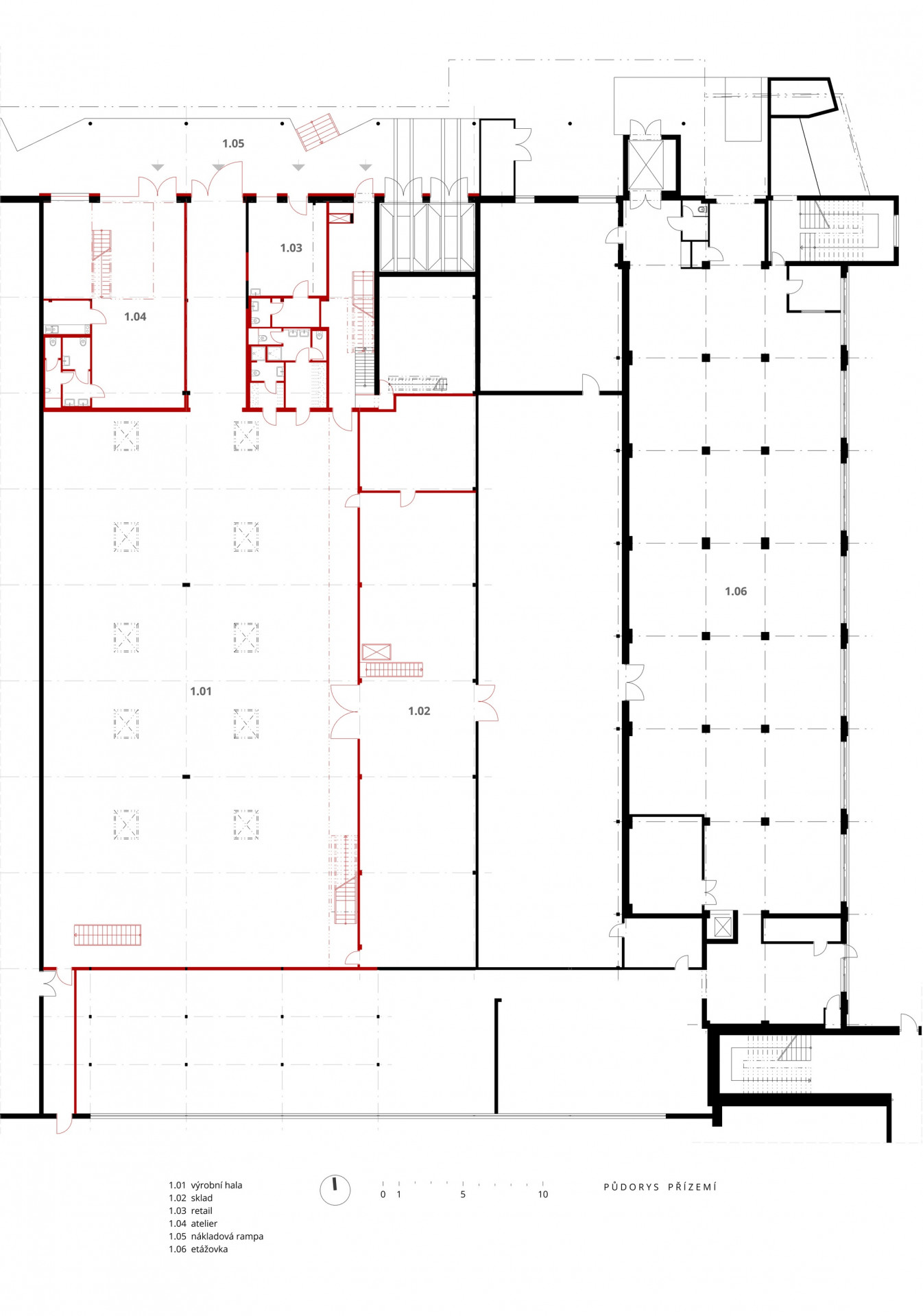
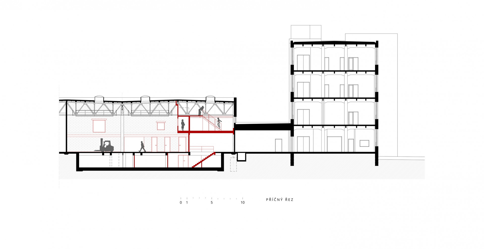
K návrhu architekti přistoupili v podobném dubu jako v případě 3. Etáže. Východiskem bylo zachování industriálního charakteru objektu a jeho doplnění o nové, jasně přiznané vrstvy. „Budova nezískává úplně novou tvář. Zvenčí se jen mírně přizpůsobuje novými otvory ve fasádách. Hlavní scéna se odehrává uvnitř,“ popisují autoři návrhu.

Barevna, jak zní název nových prostorů, zahrnuje stejně jako její starší sestra ateliéry, dílny a kanceláře. Novinkou je v tomto případě bydlení. Kromě fasádních oken se do objektu dostává denní světlo také pomocí střešních světlíků. Po estetické stránce prostorům dominují přiznané materiály hodné industriálnímu duchu místa, jako je ocel a beton.

Díky všem těmto zásahům dochází k postupnému otevírání průmyslového areálu městu a díky pestrému mixu funkcí a služeb se z něj pomalu stává živá část Rožnova pod Radhoštěm.
- Autoři: Daniel Baroš, Michal Vašek
- Ateliér: henkai architekti
- Země: Česká republika
- Město: Rožnov pod Radhoštěm
- Adresa:: Bezručova 2902, 756 61
- Realizace: 2020
- Zastavěná plocha: 1710 m²
- Užitná plocha: 2775 m²
- Rozměry: nová vestavba podlaží na půdorysu cca 530 m²
- Investor: Stroza s.r.o.
- Foto ©: BoysPlayNice