
Koprovka i ústřice, štuk i železné rošty. Nový podnik Alma nabízí rozmanitou gastronomii v proměnlivém interiéru
Býval tu biograf, ale teď se tu po celý den otáčí gastro provoz. Je tu kavárna, restaurace, vinárna a bar. Spojují je zemité odstíny, sofistikovaný výběr materiálů a důraz na kvalitu občerstvení.
EARCH.CZ , 8. 2. 2024
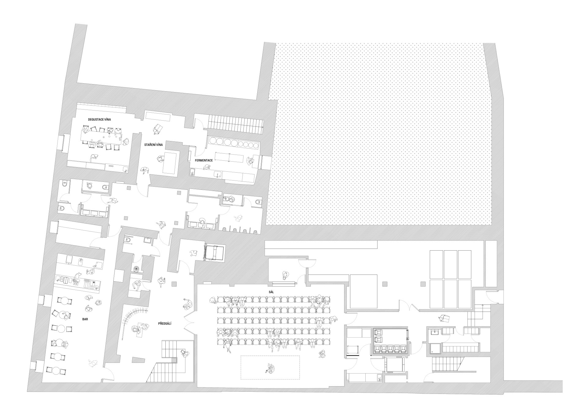
Dostat do několika objektů – historické budovy s klenbami, betonové novostavby a prvorepublikové tiskárny – na ploše bezmála 800 m² kavárnu, restauraci, vinárnu, obchod s vínem, konferenční sál, bar, degustační místnost a fermentační laboratoř by bylo pro „zelenáče“ oboru hodně velké sousto. Ne však v případě „ostřílených pistolníků“ gastronomických provozů.
Těmi jsou studio NEUHÄUSL HUNAL a gastro tým Vojtěcha Václavíka a Petra Němce. Začalo to podnikem Kro Kitchen na pražských Vinohradech, dokončeným v roce 2019, následovala další „króčka“, a nyní spolu oba týmy dokončily zatím nejambicióznější projekt – podnik Alma na místě stejnojmenného biografu.
Více k tématu
„Prvním tématem naší práce tak bylo zformulovat adekvátní, jednotný jazyk, který propojí a zároveň odliší charaktery jedinečných prostorů i provozů. Druhým tématem pak bylo nalezení správné míry mezi luxusem haute cuisine a neformální, uvolněnou atmosférou vlastní všem Kro podnikům,“ doplňují autoři podniku.

A jak toho dosáhli? Sofistikovaně, decentně a s důrazem na kvalitu provedení. Vytvořili jakousi scelující koláž, která zároveň nechá promluvit odlišnosti jednotlivých vrstev. Hlavními aktéry tohoto konceptu, jež sami autoři popisují mottem EU „Jednotná v rozmanitosti,“ jsou zemitost, tlumená barevná paleta, decentní osvětlení a neokázalé materiály.
Od rána do noci
Na Almě je specifický především její provoz, funguje totiž od rána do noci, k čemuž jsou uzpůsobeny jednotlivé prostory, z nichž některé jsou samostatné a některé vzájemně prostorově navazují. Scelujícím prvkem je zemitá barevnost keramického obkladu, nábytku a ostatních prvků, která se proměňuje v gradientu jednotlivých odstínů podle toho, v jaké části dne funguje.
Přes ranní a dopolední provoz kavárny v světle krémovém odstínu se tak přes stále tmavší odstíny v příjemných nuancích dostáváme do „večerního“ sklepa k odstínu sieny v baru či tmavě kaštanové na toaletách. Podobný princip si možná návštěvník nevědomky spojí s výzdobou stanic pražského metra, která skrze barevnost a materiály přirozeně evokuje o jakou linku a stanici se jedná.

Odlišná je také práce s původní stavbou: „Z logiky věci se chováme rozdílným způsobem ke zcela novým konstrukcím a k těm historickým. Zajímavý problém vzniká v přechodech mezi těmito prostory, kde jsme zvolili abstraktní, technicistní výraz formulovaný pororoštem. Použitá svítidla se také liší podle toho, zda se nacházejí v historických částech, novostavbě či tranzitních prostorech,“ vysvětlují autoři projektu.
Celková materiálová paleta – keramický obklad, dřevo, heraklit na stropě, pororošt a cíleně poškrábaná nerezová ocel v baru a otevřené kuchyni – vytváří příjemnou, teplou atmosféru „decentního luxusu“ podniku haute cuisine.

Posledním prvkem, který doplňuje gesamtkunstwerk celého projektu, je informační a navigační systém, který s dávkou vtipu a efektivně provází celým podnikem. Na tom autoři projektu úzce spolupracovali s typografem Janem Horčíkem z písmolijny Heavyweight.
„Klíčovou součástí procesu byla vzájemná důvěra a komunikace s klienty, stavební firmou, grafikem a jednotlivými řemeslníky i dodavateli, bez nichž by projekt takového měřítka nemohl vzniknout v takové kvalitě,“ uzavírají projekt autoři.
- Autoři: David Neuhäusl, Matěj Hunal
- Ateliér: Neuhäusl Hunal
- Spolupráce: Veronika Zelenáková, Jakub Zelenák
- Země: Česká republika
- Město: Praha
- Adresa:: V Jirchářích 150/8, Praha
- Projekt: 2022
- Realizace: 2023
- Investor: Alma bio s.r.o.
- fotografie: Radek Úlehla
- Stavební firma: Avers
- Projekční kancelář: L.Z. atelier
- Grafický design: Jan Horčík
- Dodavatel osvětlení: Bulb
- Dodavatel keramických obkladů: Keraservis
- Gastro: Kitchen Plan
- Rostliny: Pokojovky