Koupat se s výhledem do parku a v centru města. Takový aquapark teď mají v Kyjově
Místo na novou plaveckou halu včetně zábavních bazénů se našlo hned u venkovního koupaliště. To je situované v parku v centru města. Novostavba proto dostala městskou podobu, do ulice se obrací okny a projedete kolem ní na kole.
Adéla Vaculíková , 27. 11. 2023
V Kyjově postavili nový aquapark, takový, který nehýří všemi barvami a ani není do sebe uzavřenou krabicí. Naopak pracuje s průhledy a výhledy a je přístupný i těm, kteří zrovna plavat nejdou. A taky ho navrhli architekti, konkrétně studio SENAA z Brna.
„Stavba zapadá do kontextu okolní zástavby a nenarušuje její celkový charakter,“ říkají o novostavbě Václav Navrátil a Jan Sedláček. Klást důraz na pochopení místa bylo důležité, nejedná se totiž o stavbu odsunutou na okraj. Naopak se nachází kousek od centra města, na okraji parku, za kterým už následuje zástavba z rodinných domů.
Více k tématu
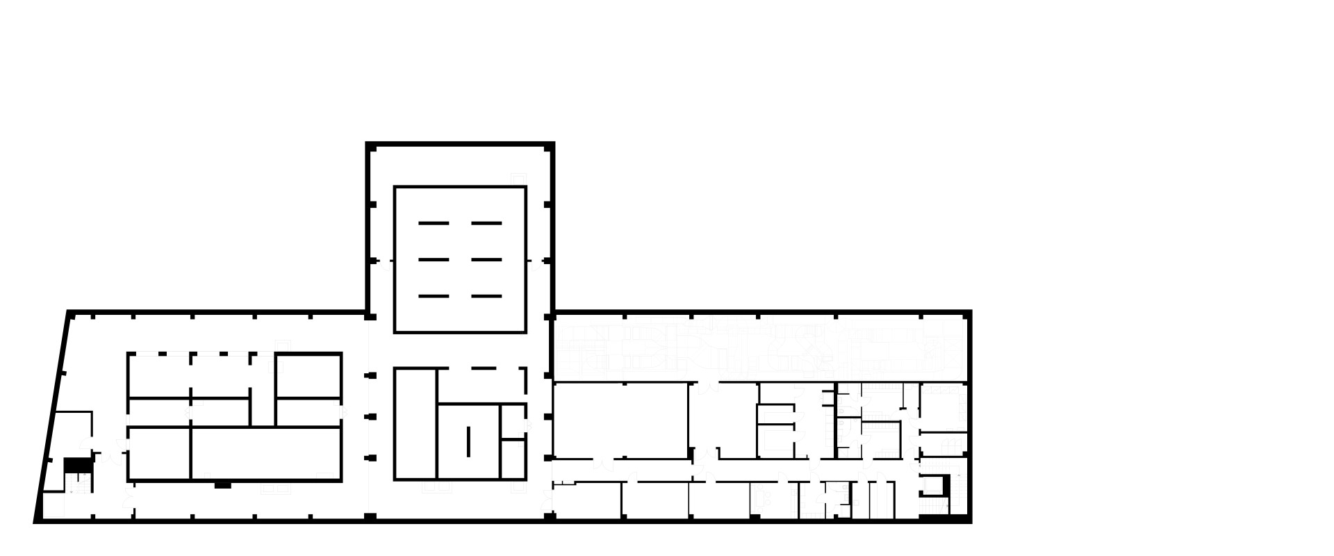
Objekt s bazénovou halou je proto hmotově rozdrobeny. Parter je pevný, tvoří ho táhlá stěna obložená cihelnými pásky. Vyšší podlaží jsou pak směrem do ulice pojatá pavilonově – jako tři (téměř) samostatné kvádry. Velká stavba se tak zjemňuje a nepůsobí jako nepatřičný monoblok. Podél průčelí akvaparku pokračuje cyklostezka, kterou se přes park projede až do centra Kyjova.

Zařízení, kde se dá sportovat i relaxovat, se jmenuje Aquavparku. V parku tady totiž už původně fungovalo venkovní koupaliště. To je dnes pohledově skryté za novostavbou. Prošlo kompletní revitalizací, jeho původní uspořádání zůstalo, bazény ale nově mají nerezové vany.
Do Aquavparku se dá jít v létě i v zimě. Bazénů je uvnitř dost: plavecká „pětadvacítka“ i bazén zvaný „zážitkový“ s tobogánem a masážními hlavicemi. Relaxovat se pak dá ve vířivce, malé děti zase využijí brouzdaliště.

A kdyby se vám do vody nechtělo, můžete zamířit do wellness k saunám. Anebo navštívit objekt jen tak, funguje v něm kavárna, která má i vlastní venkovní terasu. Architekti říkají, že chtěli maximálně propojit interiér s exteriérem. To se jim podařilo, za rozsáhlými prosklenými plochami se otevírají pohledy do zeleně parku. Současně ale dosáhli dalšího a neméně důležitého efektu. Aquavparku dali parametry městského domu a dokázali, že se podobné provozy nemusejí umisťovat jen na okraj obcí a měst. Snad u nás bude podobných realizací přibývat.
- Ateliér: SENAA
- Autoři: Václav Navrátil, Jan Sedláček
- Země: Česká republika
- Město: Kyjov
- Adresa: Mezivodí 2029, 697 01 Kyjov
- Projekt: 2018
- Realizace: 2023
- Zastavěná plocha: 2430 m²
- Užitná plocha: 4630 m²
- Plocha pozemku: 18000 m²
- Náklady: 325 mil. CZK
- Investor: Město Kyjov
- Fotograf: BoysPlayNice
- Zhotovitel: Sdružení Metrostav a.s. a Metrostav DIZ s.r.o.
- Generální projektant: CENTROPROJEKT GROUP a.s.