Architektura / občanské stavby

Lesní komunitní dílna jako malovaná

Českého čtenáře může překvapit, když uslyší francouzského architekta stěžovat si na přístup veřejné správy k architektuře. Aby architekti z Boidot Robin architectes svým klientům celý proces plánování a stavby usnadnili, uchýlili se k těm nejtradičnějším metodám: ručním výkresům a modelům z balzy. Výsledkem je jednoduchý, čistý a funkční lesní areál veřejných služeb.

Boidot Robin architectes , 20. 3. 2017

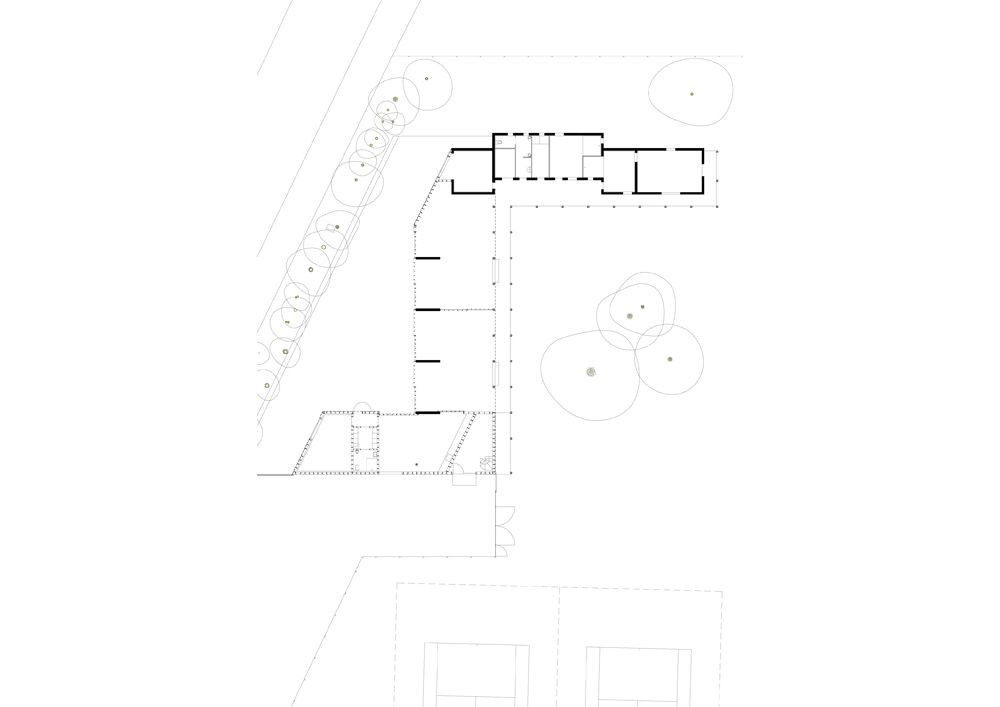
V Rambouillském lese se z houšti dubových stromů noří dlouhá, tmavá a štíhlá linie střechy: jedná se o budovu nového místního oddělení veřejných služeb. Poblíž se nachází ještě sportovní areál a stárnoucí pavilon. Celý projekt, nacházející se v území chráněné krajinné oblasti, spojuje staré i nové budovy do jednoho celku.

Nová stavba se s dosavadními zařízeními spojuje bez toho, aby narušovala ráz krajiny, a zároveň vychází vstříc potřebám místní komunity. Místní zastupitelstvo si přálo přemístit obecní dílnu a příslušné úřady mimo městské centrum, právě na zalesněný pozemek Rambouilského lesa. Architekti sice měli možnost na pozemcích vybudovat zcela nový komplex, zvolili ale cestu inkluze a novostavby začlenili do jednoho celku.

Postupovali jsme ,poziční technikou‘, zhotovili jsme si modely a s těmi jsme následně posouvali po plánu, abychom dokázali zvážit přesnou polohu a objem budov,“ uvádí architekti. Novostavba leží mezi chráněnými stromy a s již stojícím pavilonem ji spojuje hřeben střechy. K silnici se otevírá svými utilitárními částmi, tedy dvorem, širokou přístupovou cestou a velkými posuvnými dveřmi.

Rozhodli jsme se pro jednobarevné provedení, takže nové i již stojící budovy tvoří jediný celek, vizuálně spojený dlouhou, sjednocující a až abstrahující střechou.“ Stejná černá malba pokrývá dlažbu a fasádu starého pavilonu, plášť dílny z douglasky tisolisté i střešní krytinu. Venkovní krytý chodník spojuje technickou, sportovní i obytnou část budovy a podtrhuje její prostorový rozvrh. Zároveň dává prostor k setkávání mezi různými uživateli areálu – i vprostřed lesa tak vzniká vcelku městská, uliční atmosféra.

Architekti stavby dodávají, že veřejná správa ve Francii obecně nemá příliš velké nároky na architekturu. Místní zastupitelstvo v Poigny-la-forêt, jehož prvotní motivací bylo zřídit své vlastní veřejné služby a nespoléhat se na poskytovatele, se ale obrátilo na místní „Centrum pro architekturu, urbanismus a životní prostředí“ a v součinnosti s ním si potom formulovalo své základní požadavky. S těmi se nakonec obrátilo na ateliér Boidot Robin architectes.

Abychom zastupitele přesvědčili, uchýlili jsme se k ručním malbám a výkresům. Těmi jsme je mohli provést celým procesem stavby, od projektu po řešení objemu, povrchů a organizace budov.“ Ruční výkresy se ukázaly jako názorný, ale i efektivní nástroj pro udržení nízkého rozpočtu. Ještě ve fázi ručního výkresu tak mohlo dojít k podstatným změnám v uspořádání projektu. Díky modelům zase bylo snadnější představit si celou situaci. Sportovci, zaměstnanci i vedoucí žijící na dotyčném území si mohli snadno přestavit sami sebe, jak kráčí a potkávají se po chodnících.

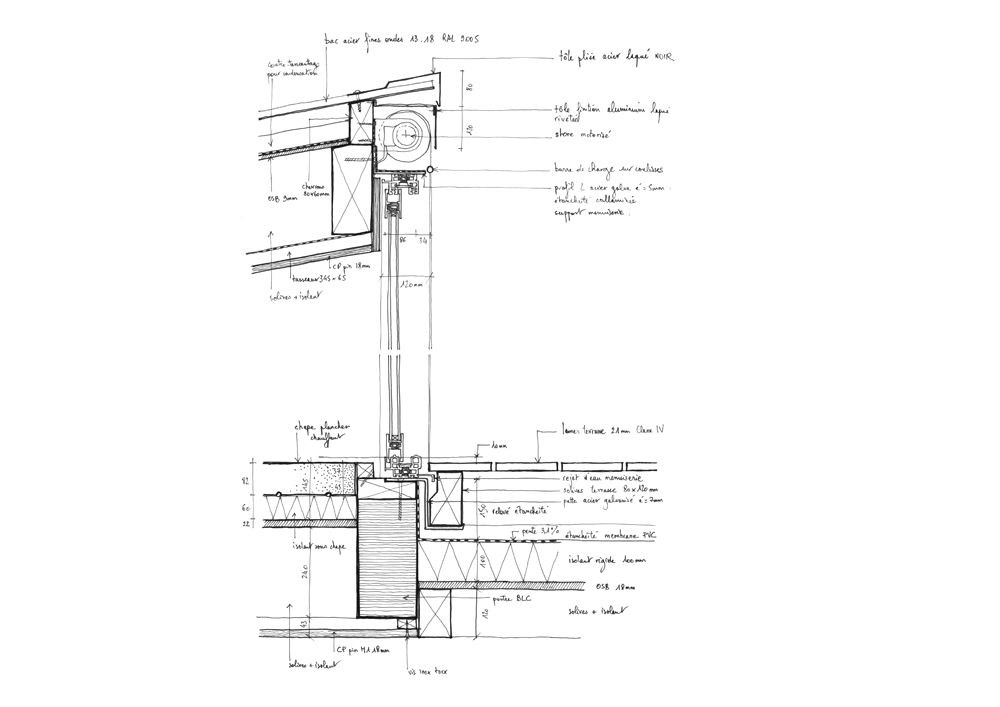
Architekti sami potom přiznávají, že v architektonickém detailu spatřují spíš společenský a ekonomický otisk komunity, pro niž navrhují, než estetizující účel stavby. Možná i proto privilegují užití prefabrikovaných a průmyslových materiálů, jež spojují i v nečekaných použitích a vždy s ohledem na zkušenosti profesionálních stavebníků. Každý jednotlivý materiál je uvážen, aby co nejlépe vyhovoval cenou i funkcí.

Nakonec bylo zapracováno několik rysů, jež mají projekt přeci jen architektonicky pozvednout. Laťové krytí dílny propouští přirozený sluneční svit a zároveň slouží jako ventilace. Dřevěný rám částečně přiléhá ke zdivu, některé jeho části jsou pohyblivé a dá se s nimi posouvat. Okap je veden tak, aby tvořil čistou střešní hranu. Aby se překližkové panely mezi trámy neprohýbaly, krytí chodníků podporuje ocelová konstrukce.

  • Autoři: Emilien Robin, Julien Boidot, Boidot Robin architectes
  • Země: Francie
  • Město: Poigny-la-Forêt
  • Realizace: 2016
  • Užitná plocha: 500.00m<sup>2</sup>
  • Plocha pozemku: 16 860.00m<sup>2</sup>
  • autor: Boidot Robin architectes *
  • publikováno: * 20. 3. 2017
  • zdroj: * Mies van der Rohe Award

Mohlo by vás zajímat

Generální partner
Hlavní partneři