Architektura / bytové domy

Levitující bytový dům Josefa Pleskota ve strmém svahu

Bytový dům Vápencová v Praze Podolí nejznámějšího českého architekta současnosti Josefa Pleskota představuje v rámci tuzemské architektonické produkce zcela výjimečné dílo. Výrazně vertikální pětipodlažní stavba o dvou bytových jednotkách vychází z topografie pozemku: natahuje se do výšky, aby z horních úrovní mohla poskytnout daleký výhled na Prahu. Architektura domu se inspiruje modernismem, ve vyvýšené části objemu, který nadnáší řada subtilních pilířů, můžeme také rozpoznat slavnou Villu dall´Ava holandského mistra architektury Rema Koolhaase z počátku 90. let.

EARCH.CZ , 4. 12. 2017

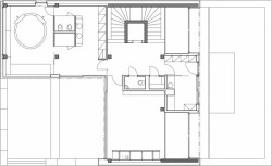
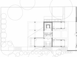
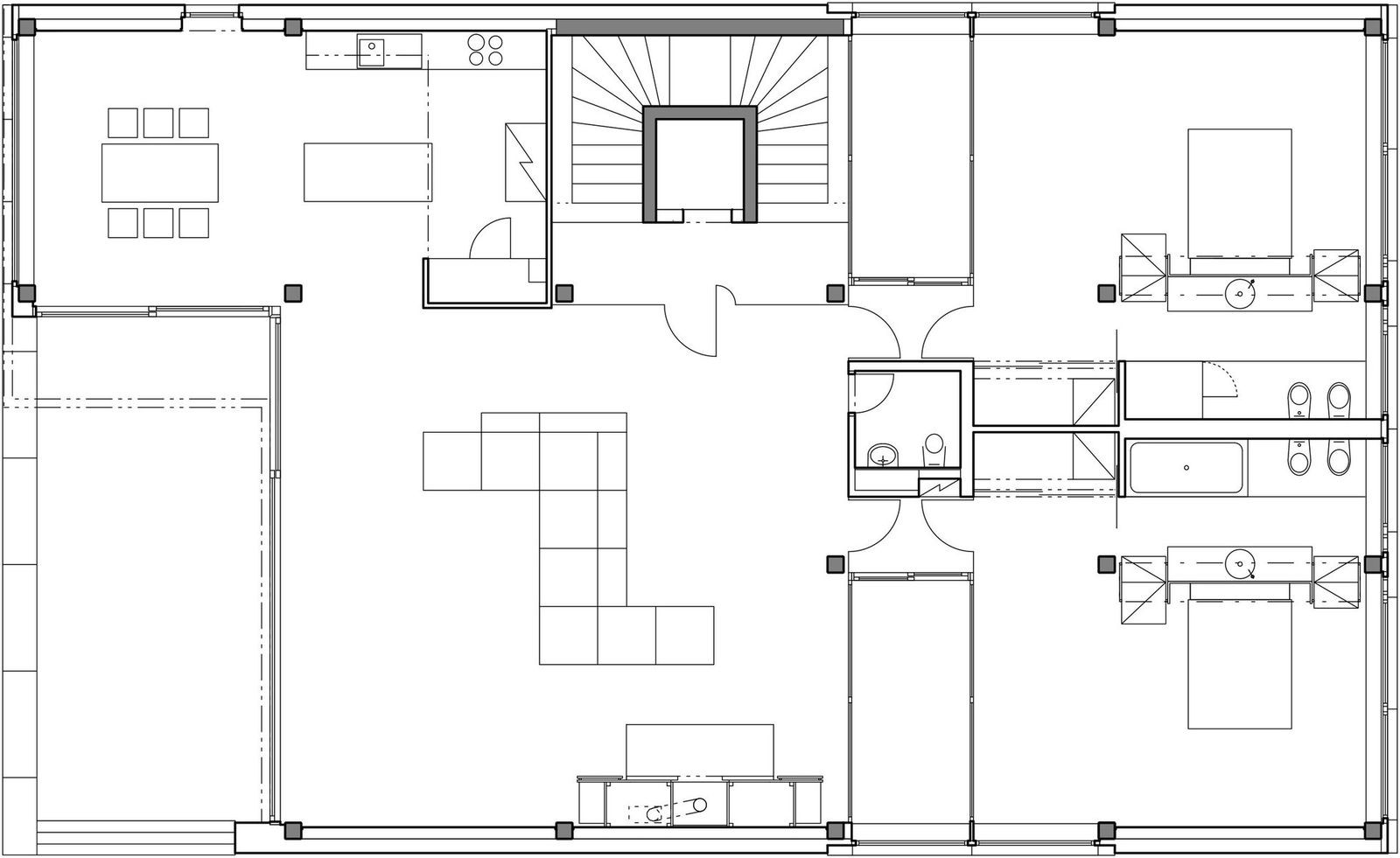
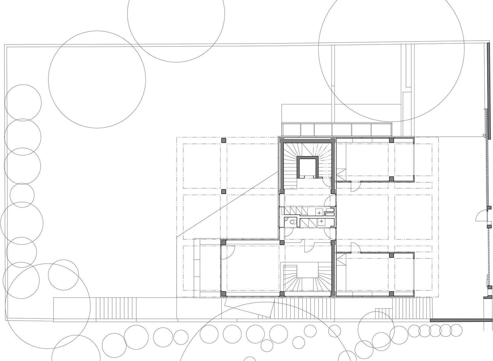
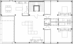
Projekt Vápencová je dílem, jež se vymyká všeobecně přijímané představě o rodinném domě, a přitom do okolní zástavby přirozeně zapadá. Dvojdům je rozdělen na dvě zcela samostatné bytové jednotky o v dispozici 6+1 se společným vstupem z ulice. Obě podlaží jsou citlivě začleněna do terénu a kopírují jeho profil. První z domů, tzv. „Dům na nohách“, rozkládající se ve druhém a třetím nadzemním podlaží, se pyšní rozlohou vnitřního prostoru 348 metrů čtverečních a plochou teras 121 m². Druhý „Dům v zahradě“ o velikosti 260 metrů čtverečních zabírá dvě spodní terasová patra. Podlaží s největší ložnicí přímo ústí do rozlehlé zahrady se vzrostlými stromy. Obě jednotky mají společný pouze volný parter umístěný v části prvního podlaží, který slouží jako vstupní hala s úložnými prostory a zároveň je určen pro parkování čtyř vozů. Nejen pro exteriér, ale i pro interiéry a jejich vybavení je typická jistá strohost a uměřenost bez zdobných detailů.

Společenská místnost s terasou a výhledem na Prahu vítá hosty při vstupu do „Domu v zahradě“. Schodištěm z haly parteru se dostaneme do netradičně řešeného obývacího pokoje s vyhlídkovým pódiem, který navazuje na jídelnu s kuchyňským koutem. Dva další samostatné pokoje jsou propojeny en-suite koupelnou. Spodní patro domu je intimnější a představuje soukromou zónu ložnic a koupelen. Prostor přirozeně přechází ve třicetimetrovou zimní zahradu. Z ložnice na východní straně domu je, stejně jako ze zimní zahrady, přímý vstup na terasu navazující na zahradu kolem domu. Koupelnu s toaletou v chodbě doplňuje řada vestavěných skříní.

Projekt Vápencová je situován v zástavbě rodinných domů a vilek, z nichž mnohé byly postaveny již ve dvacátých letech minulého století. Prvorepublikový šarm a lehký závan nostalgie se tak mísí v nevídané harmonii s ryze moderní zástavbou starou jen několik let. Pleskotův dvojdům z roku 2011 do místního koloritu přirozeně zapadá a důmyslně jej dotváří. Vápencová ulice, podle níž je projekt pojmenován, končí ve svahu přímo nad plaveckým stadionem Podolí. Z teras i ze zahrady domu je proto nádherný výhled na podolské údolí, Vltavu a na horizontu hrdě se vypínající Pražský hrad.

  • Autoři: Josef Pleskot
  • Ateliér: AP ATELIER
  • Země: Česká republika
  • Realizace: 2011
  • Město: Praha 4
  • Ulice, číslo: Vápencová 1
  • Datum projektu: 2008
  • Realizace: 2011

Klíčová slova:

AP ATELIER Josef Pleskot

Mohlo by vás zajímat

Generální partner
Hlavní partneři