 
					
                    				Michal Palaščák postaví v centru Ostravy zlatý bytový dům
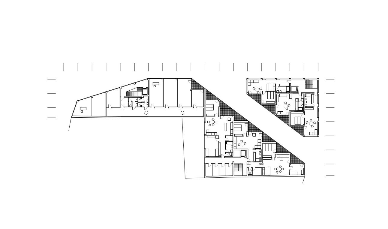
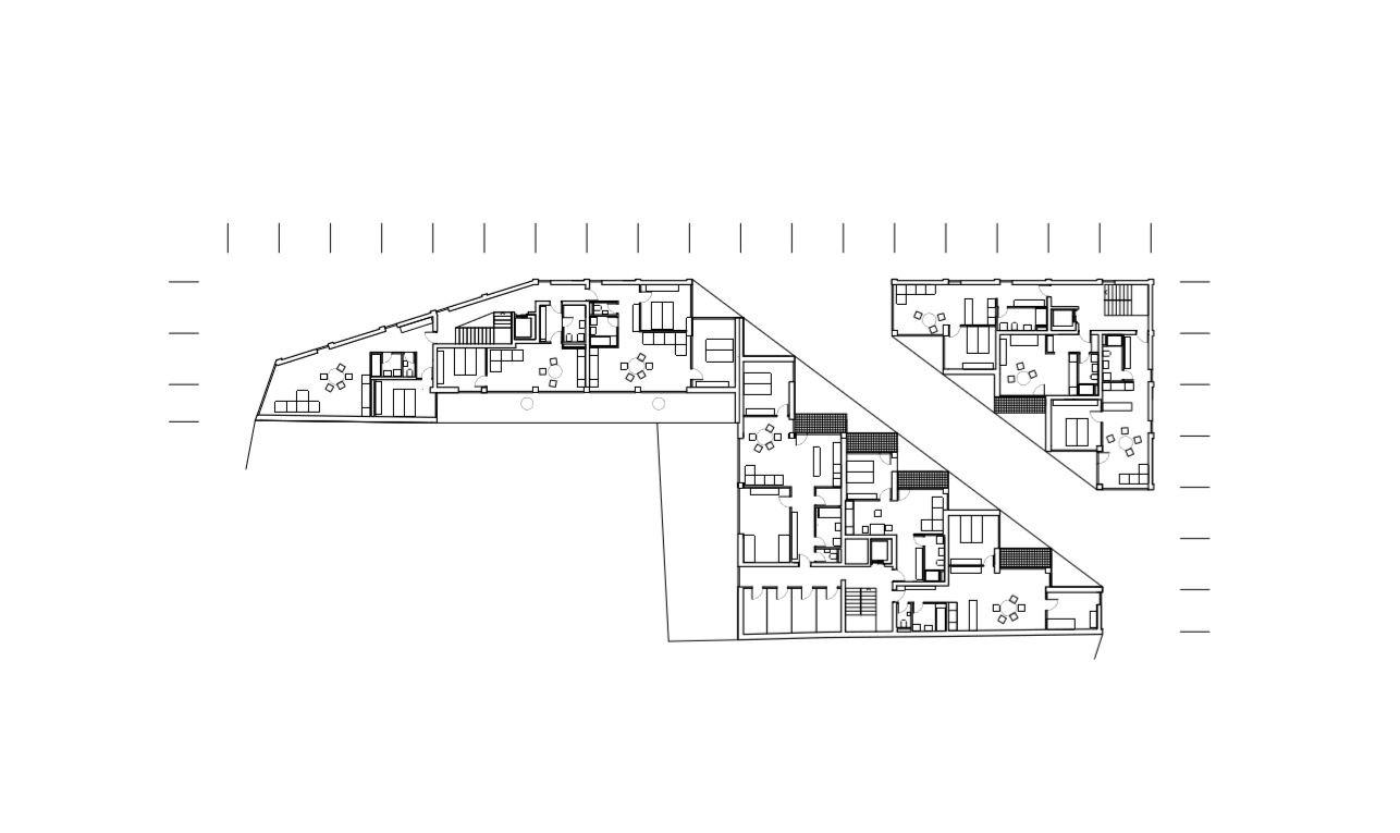
Architekt Michal Palaščák se svým architektonickým studiem dílna zvítězil v jednofázové otevřené architektonické soutěži na novostavbu bytového domu v centru Ostravy. Palaščák navrhl dům na křížení ulic Kostelní a Biskupské jako kompaktní hmotu rozdělenou do menších objektů, které navazují na sousední domy. Dům má prosklenou dvorní fasádu členěnou terasami bytových jednotek. Palaščák navrhl stavbu v jednotném barevném provedení – ručně tahané probarvené omítky spolu s eloxovanými hliníkovými rámy a zábradlím vytvářejí zlatou tvář budovy.
dílna , 6. 6. 2018
- Autoři: Michal Palaščak, Michal Polaš, Jan Flídr
- Ateliér: dílna
- Země: Česká republika
- Město: Ostrava
- Ulice, číslo: Kostelní
- Poznámka: Projekt 2018
 
                             
                             
                             
                             
                             
                                 
            
         
            
         
            
         
            
         
            
         
            
         
            
         
            
         
            
         
            
         
                             
                             
                             
                             
                             
                             
                             
    
	 
            		 
            		 
            		 
            		 
            		 
            		 
            		 
            		 
                     
                     
                     
            		 
            		 
            		 
            		 
            		 
                     
					 
                                                                                                             
                                                         
                                                         
                                                                                                             
                                                         
                                                         
				 
				 
				 
				 
				 
				 
				 
				 
				 
				 
				 
				