 
					
                    				
					
                                                    Architektura
                                                /
                                                    rodinné domy
                                            
					
			Molo architekti kompletně obalili rodinný dům do modřínových prken
Na rohovou parcelu v Brandýsu nad Orlicí navrhlo studio molo architekti rodinný dům, který je v celé ploše fasád obalen do modřínových prken. Kontrastní barva i různé kladení obkladu odděluje přízemní hmotu od patra. Architekti dům navrhli jako kompozici jednoduchých kubických hmot, které se navršily kolem původní garáže a vytvořily tak bariéru pro soukromou terasu v jihozápadní části pozemku.
MOLO ARCHITEKTI , 11. 12. 2018
- Autoři: Mária Horecká Nalevanková, Patrik Zamazal
- Ateliér: MOLO ARCHITEKTI
- Země: Česká republika
- Město: Brandýs nad Orlicí
- Realizace: 2018
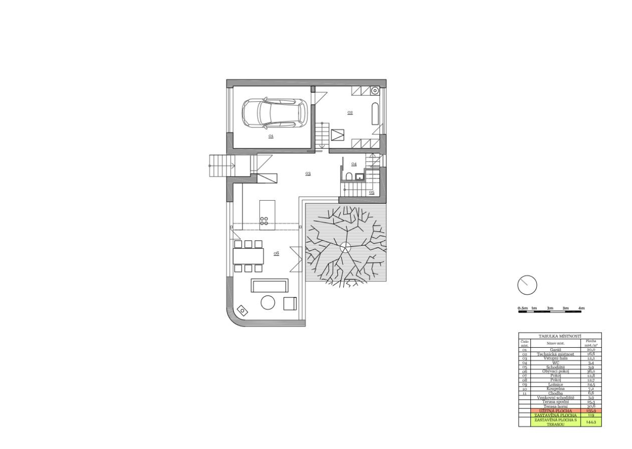
- Užitná plocha: 156.00m2
- Zastavěná plocha: 119.00m2
 
                             
                             
                             
                             
                             
                                 
            
         
            
         
            
         
            
         
            
         
            
         
                             
                             
    
	 
            		 
            		 
            		 
            		 
            		 
            		 
            		 
            		 
                     
                     
            		 
            		 
            		 
            		 
            		 
                     
					 
                                                                                                             
                                                         
                                                         
                                                                                                             
                                                         
                                                         
				 
				 
				 
				 
				 
				 
				