
Architektura
/
rodinné domy
Na svazích Jizerských hor vyrostla vila od studia ov-a
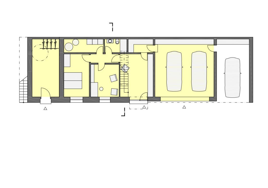
Dvoupodlažní vila od pražského studia ov-a stojí ve svahu nad severočeským Jabloncem nad Nisou. Dům nazvaný Tajmova vila se svým charakterem a hmotovým řešením začleňuje do okolní přírody tak, aby nenarušoval krajinný ráz okolí. Hmota domu je rozdělena do dvou úrovní, kdy na spodní část obloženou kamenem navazuje dřevěné patro s ložnicemi a velkým obývacím pokojem.
OVA , 26. 6. 2018
- Autoři: Jiří Opočenský, Štěpán Valouch, Vojtěch Kratochvíl
- Ateliér: OVA
- Země: Česká republika
- Město: Jablonec nad Nisou
- Realizace: 2017
- Užitná plocha: 296.00m2