Nejlepší stavby Evropy: Klášter s pláštěm z mědi lesknoucím se pod paprsky korsického slunce
Dříve to byl domov františkánů, potom se z něj stala ruina. Při rekonstrukci chtěli architekti kouzlo chátrajícího areálu zachovat. Proto konzervovali, ale i doplňovali. Díky tomu teď v klášteře může fungovat kulturní centrum pro místní i turisty. Rekonstrukce je mezi sedmi finalisty letošní evropské ceny za architekturu.
Adéla Vaculíková , 17. 4. 2024
Místo, kde jsou ze všeho nejdůležitější olivy. Tak by se dala popsat vesnička Santa-Lucia di Tallano v jižní části Korsiky. Minulý týden tu proběhly tradiční oslavy na zahájení nové olivové sezóny. Jsou proslulé po celé Korsice a říká se jim A festa di l'Oliu Novu, obec při nich zaplní trhy, hudba, veselí.
Důvody k oslavám možná ve vesnici budou i v týdnu příštím, 25. 4. totiž dojde k vyhlášení vítěze evropské ceny za architekturu Mies van der Rohe Award, na kterou je nominovaná i zdejší rekonstrukce františkánského kláštera. Ten na vesnici shlíží z protějšího kopce, původně byl totiž obranným hradem, pak se v něm usadili řádoví bratři a dneska funguje jako kulturní středisko.

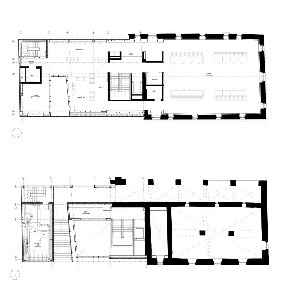
Současné podobě kláštera ovšem předcházela velká rekonstrukce. V novodobé historii byl dlouho opuštěný, postupně zarostl a jeho zdivo se začalo rozpadat. Projekt na záchranu areálu vypracovalo studio korsické architektky Amelie Tavelly v roce 2021. Staré navrhoval očistit a zakonzervovat, přibýt ale měla taky vrstva nová – přístavba z mědi, která se teď po dokončení pod slunečními paprsky načervenale leskne.
Amelie Tavella o konceptu říká, že v něm nemá nic bít do očí. Takový přístup je příznačný i pro její další práci. Domy, které pro Korsiku navrhuje, jsou stavěny z lokálních materiálů a tak, aby zapadly do místního architektonického rázu a krajiny. V případě dostavby kláštera se ale velkému gestu nevyhnula – rozhodně ho nelze přehlédnout.
Více k tématu
Klášter Saint-François byl v 15. století postaven ze žuly, měď se k němu teď přidala proto, že se architektce líbí, jak ji koroze v čase proměňuje. Může se kvůli ní dokonce úplně rozpadnout. „Líbila se mi myšlenka možného návratu ke zřícenině,“ dodává k tomu s nadsázkou.
Měděná část přísně navázala na původní stopu a hmotový rozvrh stavby. Oproti historické části kláštera je ale odlišná svou materialitou. Plné plechy se místy mění v kovové mřížky, kterými dovnitř proniká světlo. „Je to něco jako virtaje v oknech kostelů,“ říká k tomu architektka. Mezi kameny touto cestou dostala odhmotnění.

Opravený klášter má dnes kulturně-společenskou funkci. Jeho program je dimenzovaný tak, aby nalákal jak místní, tak turisty. Konají se tady výstavy, koncerty, slavnosti. Poslání realizace se v těchto aspektech podobá dalšímu finalistovi letošní ceny Mies van der Rohe Award, konkrétně revitalizaci návsi a vybudování turistického informačního střediska v horské vesnici v Portugalsku. Zatraktivnění vesnice má zamezit jejímu vylidňování, případně dokonce nalákat obyvatele nové. Na Korsice v Santa-Lucia di Tallano by to mohlo být podobné, počet jejích obyvatel totiž taky kontinuálně klesá – v současnosti jich má kolem 380.
- Ateliér: Amelia Tavella Architectes
- Autoři: Amelia Tavella
- Země: Francie
- Město: Sainte-Lucie-de-Tallano
- Adresa: 20112 Sainte-Lucie-de-Tallano, Francie-Korsika
- Rekonstrukce: 2021
- Plocha: 1000 m²
- Fotograf: Thibaut Dini
- Dodavatel měďených prvků: TECU®