Architektura / rodinné domy

Nízkoenergetickou dřevostavbu od Archcon atelier podpírají masivní kmeny douglasky

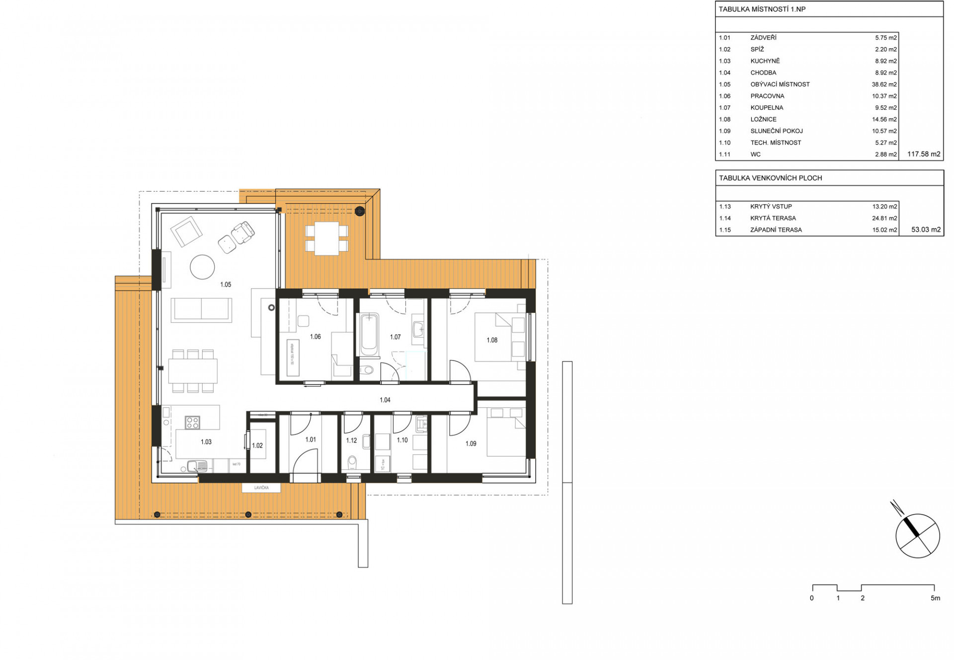
Pěkná chata, řeklo by se při příchodu na pozemek. Vstoupíme-li však výrazně červenými vstupními dveřmi dovnitř, ocitneme se v prostorném rodinném domě, který svým majitelům poskytuje komfortní prostředí pro trvalé bydlení. Dominantu domu představuje bezesporu velkoryse pojatý prostor obýváku a jídelny s okny na celou výšku místnosti, která propojují interiér se zahradou a blízkým březovým hájem.

EARCH.CZ , 24. 6. 2020

  • Ateliér: ARCHCON atelier, s. r. o.
  • Země: Česká republika
  • Realizace: 2018
  • Generální dodavatel: DŘEVOSTAVBY BISKUP, s. r. o.
  • Datum projektu: 2017
  • Realizace: 2018
  • Užitná plocha: 117.58m2
  • Zastavěná plocha: 175.60m2
  • Poznámka: Foto © Martin Zeman
  • autor: EARCH.CZ *
  • publikováno: * 24. 6. 2020
  • zdroj: * Autorská zpráva

Mohlo by vás zajímat

Generální partner
Hlavní partneři