Útulná rybářská chata
Asi ne každý má náturu na to, aby si postavil chatu na ostrůvku – nebo spíš na útesu –, a navíc na místě někdejšího rybářského skladu, který spláchla bouře. Chata na ostrůvku Sildegarnsholmen je ale malou dřevěnou pevností se zázemím pro rybaření i s pohodlím víkendového domu. A zatímco již dříve jsme psali o boudě, kterou na místo určení přepravil vrtulník, tahle rybářská chata se pro změnu musela přeplavit na lodi.
Knut Hjeltnes , 7. 3. 2017
Stavit v pobřežních oblastech Norska je obecně výzvou, ale v tomto případě se celá věc ještě zkomplikovala dvojitým architektonickým zadáním: nová stavba měla nahradit starší skladiště, které bylo odplavené během bouřky v roce 1992, ale také měla sloužit jako moderní chata se vším komfortem. Záměrem architektů bylo, aby stavba přes týden, kdy je prázdná, vypadala jako jakýkoliv jiný přímořský sklad v okolí, ale aby s příjezdem svých víkendových obyvatel zároveň uměla převléknout šaty a stala se přívětivým obydlím.
Sildegarnsholmen je ostrůvkem, který může mořský příliv zmenšit až na polovinu. Drsné přírodní podmínky a bouře, které by do budoucna ještě měly nabývat na intenzitě, byly základními východisky pro návrh, a to do té míry, že přízemí bylo navrženo tak, aby do něj mohla proniknout voda bez toho, aby byly na domku napáchány větší škody.
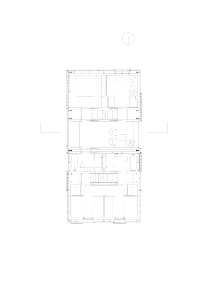
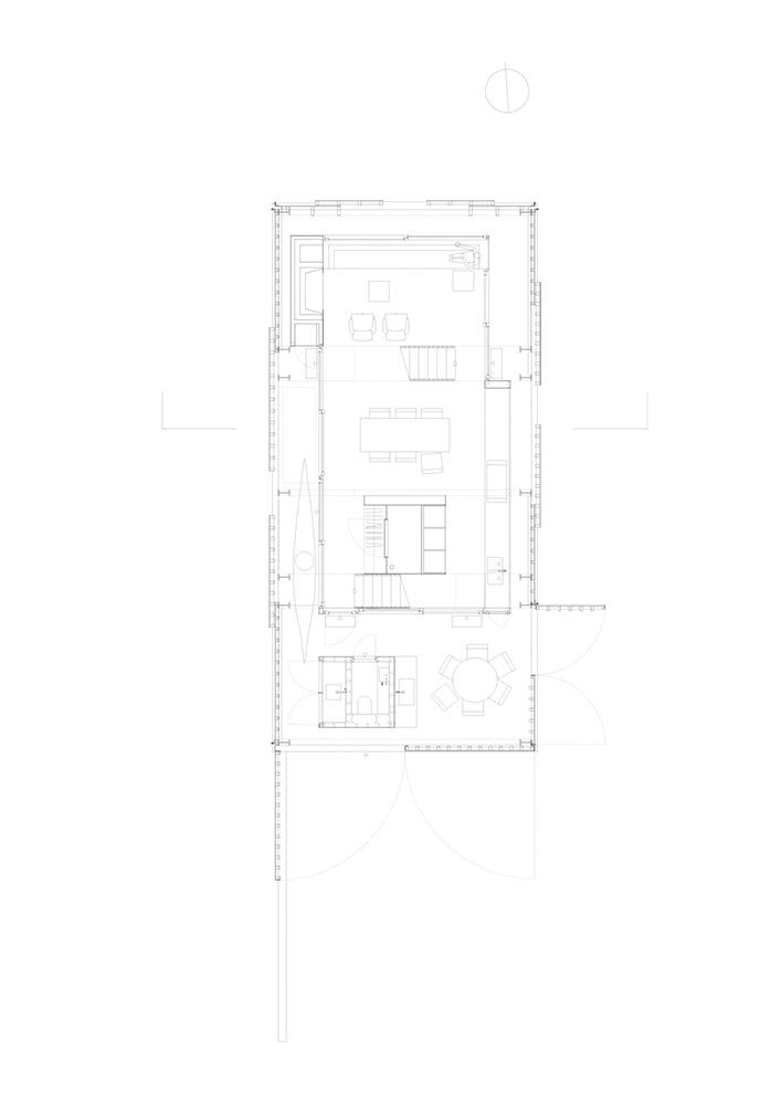
V přízemí jsou prostory jak ostrovního, tak „pevninského“ charakteru. Je zde místnost pro skladování vlhkých oděvů, rybářských sítí, plachet atd., místnost, kde se dají očišťovat ryby a připravovat jídlo; ale také místnost, kde se lze schoulit v pohovce před krbem a pozorovat a poslouchat moře za oknem. Vnitřní přízemní prostory jsou potom spojeny ocelovou a skleněnou zdí.
Horní patro bylo rozčleněno hned čtyřmi dřevěnými přepážkami, což dalo vzniknout většímu počtu malých intimních prostor: čtyřem ložnicím, dvěma koupelnám a jedné společné místnosti. Pod střechu se vešel ještě podkrovní prostor, do něhož se vstupuje po odděleném schodišti. Jedná se o velkou nedělenou místnost, která může hostit jak návštěvy, tak večírky.
Hlavní konstrukce sestává ze sedmi ocelových rámů zakotvených v betonovém soklu na starých kamenných základech. Ocelovou konstrukci chrání dřevěná fasáda, nesoucí několik posuvných panelů. Část panelů na té straně, která se obrací k pevnině, je připevněná panty a dá se odklopit, čímž poskytuje ochranu před neustále dujícím větrem. Budova sama o sobě potom byla sestrojena ve městě Ulsteivik, tj. na pevnině, přepravena dvě námořní míle na lodi s jeřábem a nakonec usazena na ostrově.
- Ateliér: Knut Hjeltnes AS Sivilarkitekter MNAL
- Autoři: Knut Hjeltnes
- Země: Norsko
- Město: Herøy
- Realizace: 2016
- Užitná plocha: 161.00m<sup>2</sup>
- Plocha pozemku: 710.00m<sup>2</sup>
- Foto ©: //www.earch.cz/cs/knut-hjeltnes">Knut Hjeltnes