Architektura / rodinné domy

Pasivní rodinný dům u Českých Budějovic

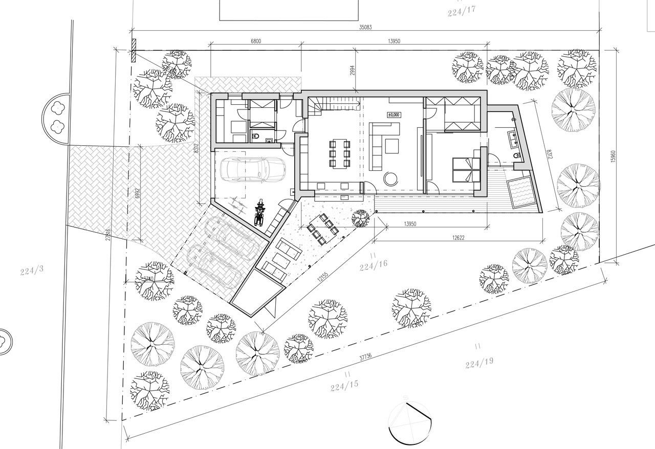
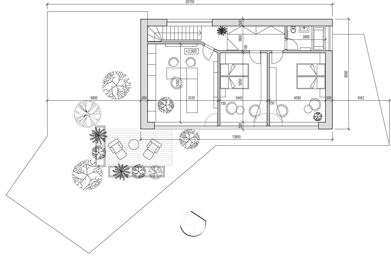
Moderní rodinný dům v pasivním standardu vyrostl letos v létě v Borku u Českých Budějovic. Dům na sebe v okolní zástavbě nijak nestrhává pozornost, současně však na první pohled ukazuje na promyšlenou čistotu celku i detailu se střízlivou kombinací barev a materiálů.

Karolína Řeháčková , 21. 12. 2017

  • Autoři: Josef Vostracký
  • Ateliér: ATELIER Vostracký
  • Země: Česká republika
  • Realizace: 2017
  • Město: Borek u Českých Budějovic
  • Suma: 8 000 000.00
  • Měna: CZK
  • Datum projektu: 2016
  • Realizace: 2017
  • Užitná plocha: 240.00m2
  • Zastavěná plocha: 189.00m2
  • Plocha pozemku: 774.00m2
  • Poznámka: Foto © Petr Zikmund

Mohlo by vás zajímat

Generální partner
Hlavní partneři