
Pokorná, přesto sebevědomá. Rekonstrukce bytu v pražské secesní vile zvýšila míru soukromí svých obyvatel
Mladé architektonické studio svobodová blaha navrhlo rekonstrukci bytu, jemuž nově dominují dřevěné prvky tmavých odstínů. Projekt si kladl za cíl zvýšit míru soukromí obyvatel a zároveň celý byt výrazově sjednotit, aby byl plně podpořen jeho prostorový potenciál.
Jan Bureš , 2. 6. 2023
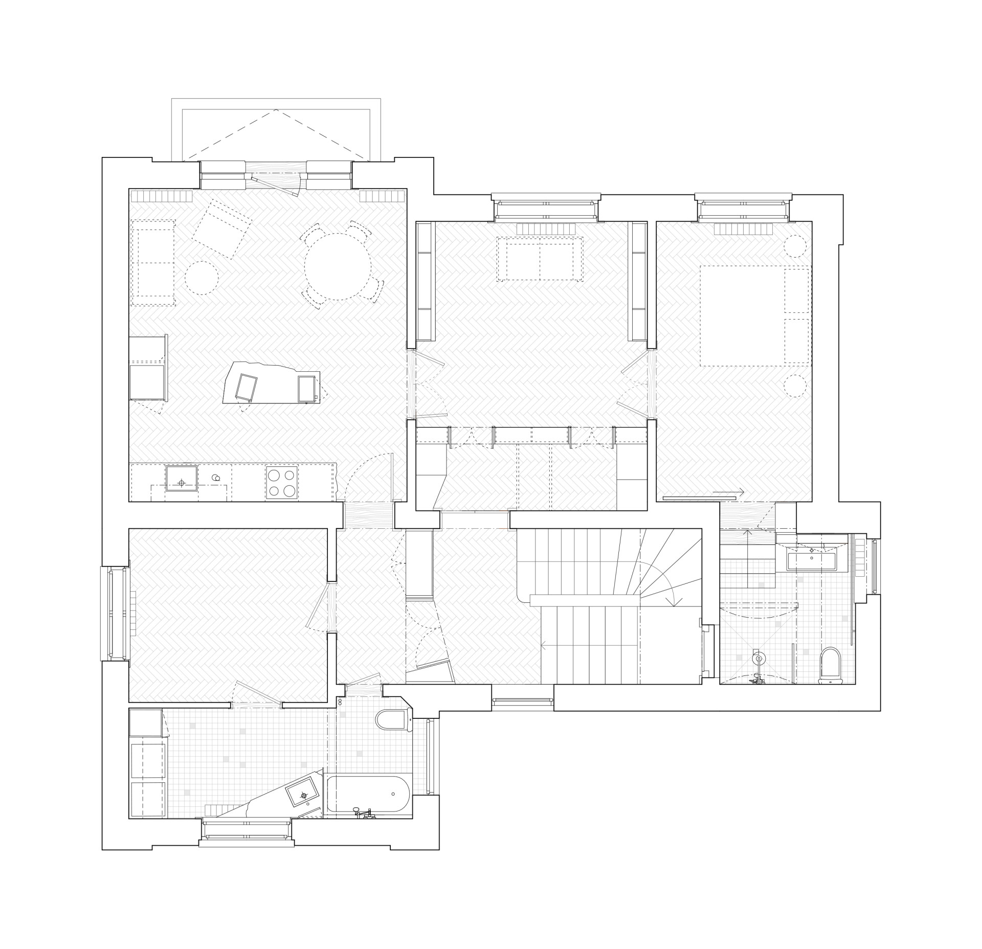
Rekonstrukce bytů jsou zajímavým architektonickým zadáním. Autoři totiž mají přesně vyznačeny hranice a prostorový objem, uvnitř kterých se mohou „pohybovat“. V rámci rekonstrukcí bytových prostorů je pokaždé klíčové vyhodnotit si jejich silné momenty, které stojí za to zachovat či podpořit a společně s požadavky klientů je skloubit do nového a redefinovaného funkčního celku. Mladé pražské studio architektů Anny Svobodové a Ondřeje Blahy se ve svých projektech snaží navazovat na stávající kontext a interpretovat jej současným způsobem.
Více k tématu
Autorská dvojice stála před zadáním rekonstrukce interiéru bytu, který vznikl vyčleněním samostatné bytové jednotky na jednom podlaží vícegenerační secesní vily v Praze. Hlavním požadavkem klientů bylo zvýšit míru soukromí a dostatečně jej oddělit od společného schodiště. Autoři zde umístili nový prvek dělící stěny s horním světlíkem, která v sobě ukrývá vstupní dveře a úložný prostor. Tento dominantní objekt redefinuje logiku schodišťové haly a pomocí zešikmení a zrcadlové plochy, která odráží konstrukci stropních trámů, už na první pohled dává najevo, že se jedná o nepůvodní objekt vytvářející nové vazby uvnitř prostoru.

„Dělící stěna je hluboká a zajišťuje dostatek potřebného úložného prostoru při vstupu do bytu. Její geometrie je mírně zešikmená a natáčí zrcadlovou plochu do těžiště podesty. Stává se objektem, sochou, která sebevědomě a zároveň s pokorou ke stávajícímu interiéru vytváří prostorové napětí a zachovává velkorysost haly,“ upřesňují architekti.
Prostorová sekvence
Dispozice bytu byla z velké části zachována, především koncepce třech hlavních průchozích místností vytvářejících plynulou enfiládu. V první místnosti vznikla nově obytná kuchyně, které dominuje centrální kuchyňský ostrov nepravidelného organického tvaru. Tento objekt balancující na pomezí sochy a užitého designu je umístěn přímo na centrální osu dveří, čímž posiluje motiv enfilády a prostorové sekvence třech místností. V dalších místnostech se uprostřed nachází pracovna s novou knihovnou a dvěma oddělenými šatnami a ložnice s nově přístupnou koupelnou se sprchovým koutem. Sekundární zóna bytu obsahuje prostornou koupelnu s pračkou a rezervní pokoj pro hosty nebo budoucí potomky

V tmavých odstínech dřeva
Po stránce materiálů i barev dominuje interiéru a vestavěnému nábytku dřevo tmavých odstínů, ve škále od tmavě modré po tmavě hnědou. Tyto odstíny autoři nezvolili samovolně. Vychází jednak z odstínu původních dřevěných trámů patrných ve schodišťové hale a zároveň navazují na odstíny nábytku a dřevěných prvků používaných v secesních interiérech. Tím dochází k jasné čitelnosti nových vstupů do stávající struktury bytu, mezi kterými vzniká zajímavý kontrastní vztah světlých a tmavých ploch. Prvky z kamene a mosazi v kuchyni a koupelnách citlivě doplňují materiálovou paletu interiéru. Jedinečným dojmem působí v interiéru vrstvy původních stropních výmaleb, které se objevily během realizace a byly částečně restaurovány. Ty dodaly interiéru určitou dávku patiny a sentimentu, který propůjčuje různým místnostem vlastní specifický charakter a náladu.

Dobré staří
Architektům Anně Svobodové a Ondřeji Blahovi se analogickým přístupem k projektu rekonstrukce bytu podařilo vytvořit příjemné místo pro život s autentickou atmosférou. Citlivým výběrem kvalitních materiálů s výraznými texturami a barevnými odstíny navazujícími na patinu původních vrstev vytvořili harmonický celek propojující nové se starým.
- Autoři: Anna Svobodová, Ondřej Blaha
- Ateliér: svobodová blaha
- Země: Česká republika
- Město: Praha
- Projekt: 2021
- Realizace: 2021
- Užitná plocha: 133 m²
- Hrubá podlahová plocha: 148 m²
- Náklady: 1 750 000 CZK