
Architektura
/
interiér
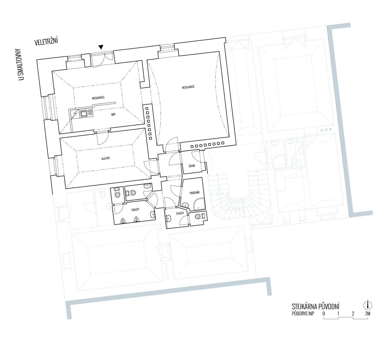
Příběh jednoho steaku
Každé jídlo v sobě ukrývá dlouhý příběh, který předcházel jeho servírování na talíř. Architekti se při návrhu interiéru pro pražský podnik se specializací na steaky inspirovali prostředím, ve kterém příběh této oblíbené speciality začíná – zákazníci restaurace tak kromě skvělého gastronomického zážitku získají kultivovanou esenci z dobytčí farmy.
skutek architecture , 2. 1. 2017
- Autoři: Ondřej Dvořák, Jiří Matys
- Ateliér: skutek architecture
- Spolupráce: Marek Václavík, Zdeněk Pech
- Země: Česká republika
- Město: Praha 7 - Holešovice
- Ulice, číslo: Veletržní 246/5
- PSČ: 170 00
- Datum projektu: 2016
- Realizace: 2016
- Užitná plocha: 147.00m2